大师梁志天曽经在采访中说到:“在我的设计想法里,平面布局和功能布局是非常重要的,没有一个完整且功能齐全的平面设计,效果图再漂亮也没用!”

平面图是整个方案设计的灵魂,它不需要做过多的修饰,而是应该考虑得全面和系统,那怎么才能做到大师级别的平面布局方案呢?扬叔来教你!
01-平面布局规划 设计之前的平面布局规划必须要有!我们在做平面的布局设计之前,要考虑清楚自己想要想表达什么,想要向居住者传递什么信息,这些都是在做平面方案设计之前必须要考虑的问题。


其次我们在规划时必须要让自己的思路清晰,使其贯彻整个规划之中,坚持规划的一致性和连贯性!
02-方案落地 很多新人设计师在做设计时,为了追求所谓的个性,开始不考虑后果的去做一些个性的平面布局方案,完全抛弃落地性,这是非常不负责的行为,一个不能落地的方案,除了能感动自己之外没有任何作用!


方案的落地性是非常考验设计师对专业知识的掌握的,如果你的专业知识不够,那你的设计永远只能停留在图纸之中!
03-风水禁忌 在室内设计中,风水禁忌是非常重要的一部分,也属于环境心理学的一部分,好的环境也会给人带来好的心情,不好的环境也会影响人的心情。

所以我们在做平面规划设计的过程中要注意的是方案中是否存在风水禁忌, 毕竟还是有不少人对此有些忌讳的!

说到这里,小伙伴们可以看出来,想要做出一个好的平面方案还是需要时间的打磨和经验的累积的,那有没有捷径呢?我可以很负责的告诉大家,有!多看,多思考,勤动手!!!下面这套大师专属cad图集送给迷茫的你~
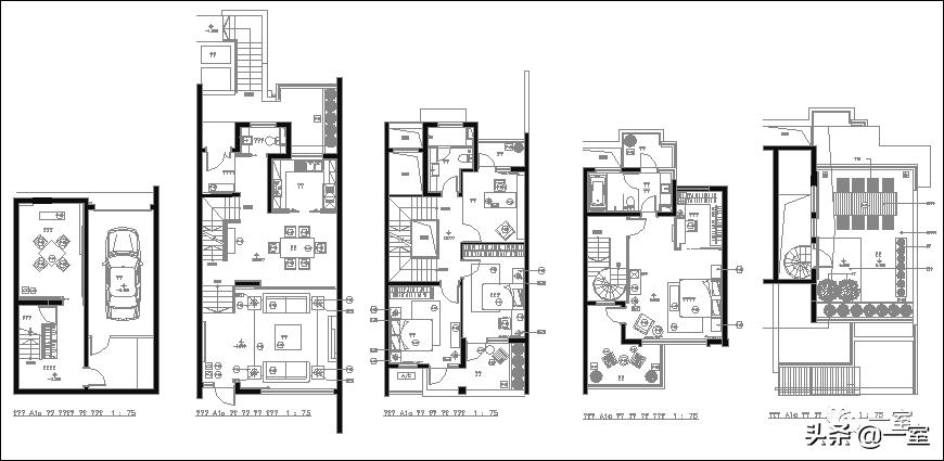
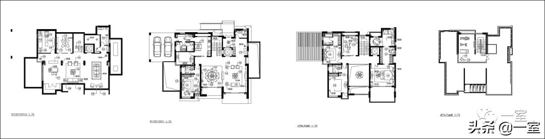
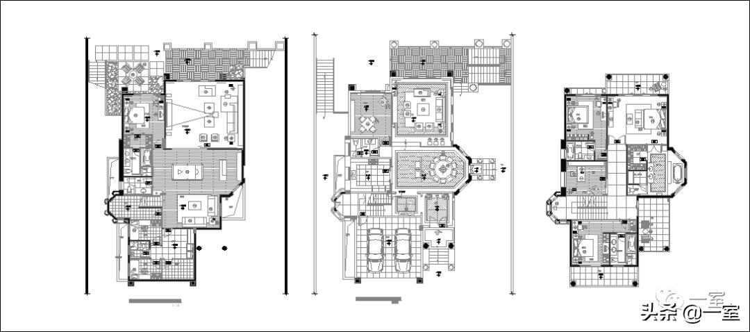
梁志天家装案例平面CAD合集
部分展示/内含梁志天70套CAD平面案例/

▲梁志天—重庆东和园别墅

▲梁志天—依云听香园售楼处

▲梁志天—苏州水巷邻里E型公寓

▲梁志天—香蜜湖一号样板房

▲梁志天—中山凯茵新城

▲梁志天—无锡太湖国际社区样板房

▲梁志天—上海董生私宅
【免费领取】
【梁志天家装案例平面CAD合集】关注+转发 后私信“素材”
版权声明:我们尊重原创。文字美图素材,版权属于原作者。部分文章推送时因种种原因未能与原作者联系上,若涉及版权问题,敬请原作者联系我们,立即处理。