
今天我们要分享的是常见户型的神级改造案例,通过一个长走廊就能打开健身室,使得带娃健身两不误。常见的卫生间也能通过划分格局,使得主卧多个衣帽间。
内附超详细版教程,供各位设计师或家居爱好者参考,快搬小板凳来学习吧!

房子是三居室,一家三口居住,女屋主杨小姐是一名健身教练,这次重新装修希望家中有一间健身室,偶尔会有会员或朋友一起来家里健身。
入住三个月之后,和王先生聊天谈到,这次装修最满意的设计是健身室:用一个小卧室换来了大人、孩子、朋友、会员的开阔活动空间。
格局改造
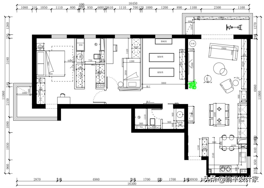
原始平面图:

整体点评:
很标准的手枪户型,三室一厅一厨两卫,全屋几乎没有承重墙,看似改动性很大,但有7个窗户,基本由窗户来决定空间功能的划分。三个卧室并排一列,造成过道过长;主卧没有放衣柜的位置;门厅没有收纳空间。
最终平面布局图如下:

客厅以沟通交流为主,厨房、餐厅、客厅、阳台四个空间打通,相当于把活动区的所有的空间都打开了,虽然空间是敞开的,但每个空间又是独立的。四个空间可以相互对话,又相互独立,逐渐过渡,形成整体。
格局改造
1 .巧用空间:主卫一分为二,打造衣帽间

卫生间外移0.25米,主卧多出一间衣帽间。

方正的卫生间,完全利用人体工程学最小尺寸。做了小浴缸、淋浴、马桶、洗手台,卫生间标准四件套一样也不少。
2.把过道融入健身室

原始户型仅仅是一个通往主卧的过道就有5.8米长(心里默默的算了算又浪费了6平米)。设计师把进入健身室的一面墙拆掉,并把镜子安装在过道墙上,这样就把过道融为健身室的一部分。在儿童房对面过道的墙上刷了黑板漆,儿童房的过道也被利用起来了。
3 .改变厨房入口方向,增加门厅柜

原始户型,没有门厅柜的位置。厨房改为半开放厨房,并且改变厨房入口方向,给门厅留出独立空间。
4.阳台弥补客厅收纳

阳台内墙做了一排进深200mm、长3.9米的收纳柜,全家人的鞋都放在这排柜子里;阳台左侧做了600mm进深的长靴收纳柜。这两组柜子高度都与窗台齐平。
实景效果
1 . 门厅

在落尘区选择了一款黑白条纹的地毯,颜色和空间相呼应,柔化了造型硬朗的门厅。
2 . 餐厅——既不同又相似的餐椅

王先生很喜欢温莎椅,所以找到了风格一致,但又有微小差别的椅子,总共买了6把风格相似的椅子,其中一把放在卧室。

餐厅与客厅之间,放了红酒展示柜,也是客餐厅的视觉隔离。
黑色酒柜、两把黑色餐椅、冰箱上方黑色吊柜,这三处做了颜色呼应。

3 . 厨房——半开放


厨房包完烟道多出480mm宽的墙垛,并顺着烟道做了与之宽度相等的吧台,吧台下面柜子进深是300mm,留有180mm放腿空间。

整个厨房以白色为主,黑色、木色作为点缀,水槽和水龙头也选择的黑色。

4. 客厅——非常规摆放客厅三件套

沙发倾斜10°摆放,躺在沙发上看电视,角度很舒服。沙发背后是餐厅。

客厅区域用沙发、坐垫围合了一个小空间,朋友聚会时可以坐在地毯上喝茶聊天。整个空间以交流为主,而不是以电视为中心。

电视上方的吊顶内做了投影幕的凹槽。



平时也可以围着小桌,坐在地毯上,背靠着沙发,看书休息。

5 . 健身室——卧室改为开放的健身室



用一间卧室做健身室,可同时容纳2-3人健身。

站在健身室窗户方向看向卫生间。
6 . 过道——利用视错觉破解狭长走廊

设计施工改造前的走廊——5.8米幽暗狭长。


改造后的走廊——视觉上增大了不止一倍,开阔明亮。健身室对侧的过道做了一面镜子。
站在健身室看向主卧,左边镜子里的通道把我们的视线引入了另一个空间。右边健身室镜子里看到的开阔的健身室全景。

空间迂回右转,仿佛能通向无尽远方。

从健身室看向主卧。
儿童房过道墙上刷了黑板漆,这里已经不是暗黑狭长过道了,变成了儿童画画玩耍的小天地。#蝴蝶椅
7 . 主卧

走进主卧,可以通往生活阳台(也是晾衣区),过道处做了4盏筒灯,床上是一盏吊灯。主卧带有生活阳台,主要是休闲和晾晒衣服,生活阳台也做了长1080*进深600mm的通顶收纳柜。主卧床头方向做了长1500*进深600mm的收纳柜,面向床一侧是开放柜,可以做床头柜使用,放一些日常随手用品。


纯实木定制柜,纹理清晰可见。

床头柜上方的吊灯看不到光源,只有一团柔和的暖橘色。
8 . 主卫——主卫外面是小型衣帽间
从主卫看向衣帽间方向。把原主卫一分为二,外面衣帽间,里面是卫生间,中间用磨砂玻璃门隔开。

布局紧凑的卫生间,造型和颜色非常极简克制。

9 . 次卫——干湿分离

进门是干区,门后没有拍到的角度是洗衣机,在这里洗衣服,去主卧生活阳台晾晒衣服。

设计机构:JORYA玖雅 设计师:景森
设计面积:106㎡
房屋位置:海淀区太月园户型:三室一厅
装修花费:47w(硬装10w+主材26w+软装11w)

最后附上带尺寸的完整平面格局图
版权归作者JORYA玖雅所有
如需转载本文请联系“JORYA玖雅”账号
希望今天的装修干货对你有帮助,大家喜欢的话记得给小躺儿评论点赞,点亮在看哟!