近期给大家分享了一些农村别墅效果图图集,评论里有些意见。第一就是只发效果图,不发平面图都是耍流氓。第二种就是面宽太大了,咱农村宅基地一般也就10米宽,这占地600平米的四合院,三合院好看不好用啊。第三种就是,能不能多点简欧式,农村建房子不想太与众不同。读者就是小编我的上帝,大家的意见必须要听,今天汇总了5套3层农村别墅户型,都是10米面宽左右,全部是简欧式,看看大家喜欢不?
还有意见尽管提,你说几米面宽就几米,你说真石漆就真石漆,你说简欧式就简欧式,你说几层就几层。很多朋友问预算,这个真要看建房地点。最近红砖水泥天天涨,听说海南有地方红砖1.5元一匹了,300平米毛坯房,30万你们村还能建么?
户型一:3层简欧式农村别墅,面宽9米,带露台。




户型二:3层简欧式农村别墅,面宽9.8米,堂屋加客厅,带露台。




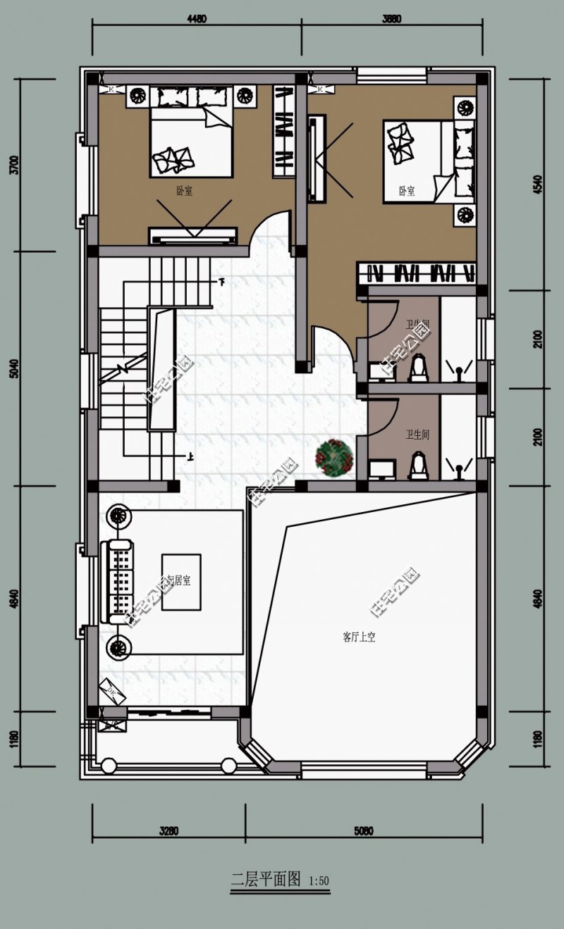
户型三:3层简欧式农村别墅,面宽10米,玄关加挑空客厅。




户型四:3层简欧式农村别墅,面宽不到9米,挑空客厅带露台。




户型五:3层简欧式农村别墅,面宽10.5米,老人房套间带露台。




微信公众号:住宅公园,500套农村自建房图纸,乡村别墅户型定制,施工技术问答