

文末附三里屯通盈中心洲际酒店全案图纸
香港郑中设计事务所CCD又出大招了,由其事务所设计的北京通盈中心洲际酒店终于开业啦!作为三里屯的网红打卡点,如果你想了解其中的奥秘,就跟随小编的视线一步步解开它神秘的面纱吧~


六边形钻石的元素是酒店设计的灵感来源,通过对元素的研究分析:由粗犷的原石不断提炼萃取,最终打磨成精美的钻石。运用钻石独有的切割感和光泽感来塑造独特空间感。这一元素贯穿了整个设计的平面立面,甚至于到各个微小的细节。




“新雅皮”风格
CCD希望洲际酒店是一个不同于以往的“雅皮”风格,之所以说不同,是希望人们摆脱以往对“雅皮”的定义——温文尔雅、追求时尚,但在色彩上却只有黑白灰的呈现方式。大胆选用宝石蓝作为整个设计的主色调,营造极具未来感的科技氛围。


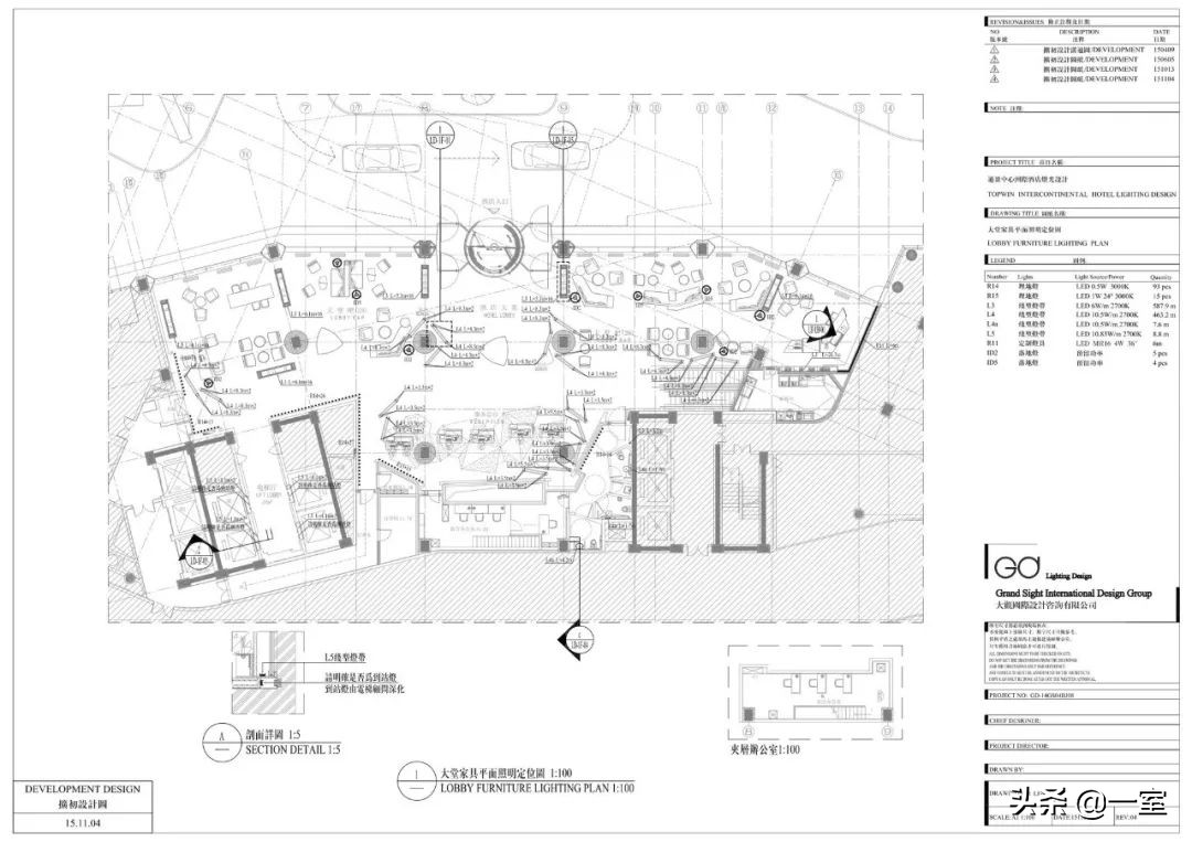
设计以空间场景为出发点,运用建筑的手法来划分空间,使室内设计不止于表面装饰。各个空间交错呼应、相互渗透,营造出虚实多变的视觉体验。


植物墙同样运用钻石切割拼法的设计,绿植错落有致地置于其上,如神来之笔,让空间顿时有了活力和生机。大堂的设计也延续了钻石切割的处理手法。


七家风格迥异的餐厅
酒店7家餐厅风格迥异,“盈”中餐、“盈”料理、“热点”吧和“热点”西班牙,“怡”扒房,啤酒吧以及甜品店,每个餐厅都拥有个性化的用餐空间和前卫的美食概念。







各个餐厅的灯光也是依据其室内设计风格量身定制的,灯光设计的重点弱化了功能性,而在于强调灯光与环境的配合。经过精心雕琢,打造出七种不同氛围、不同风格的餐厅情调。




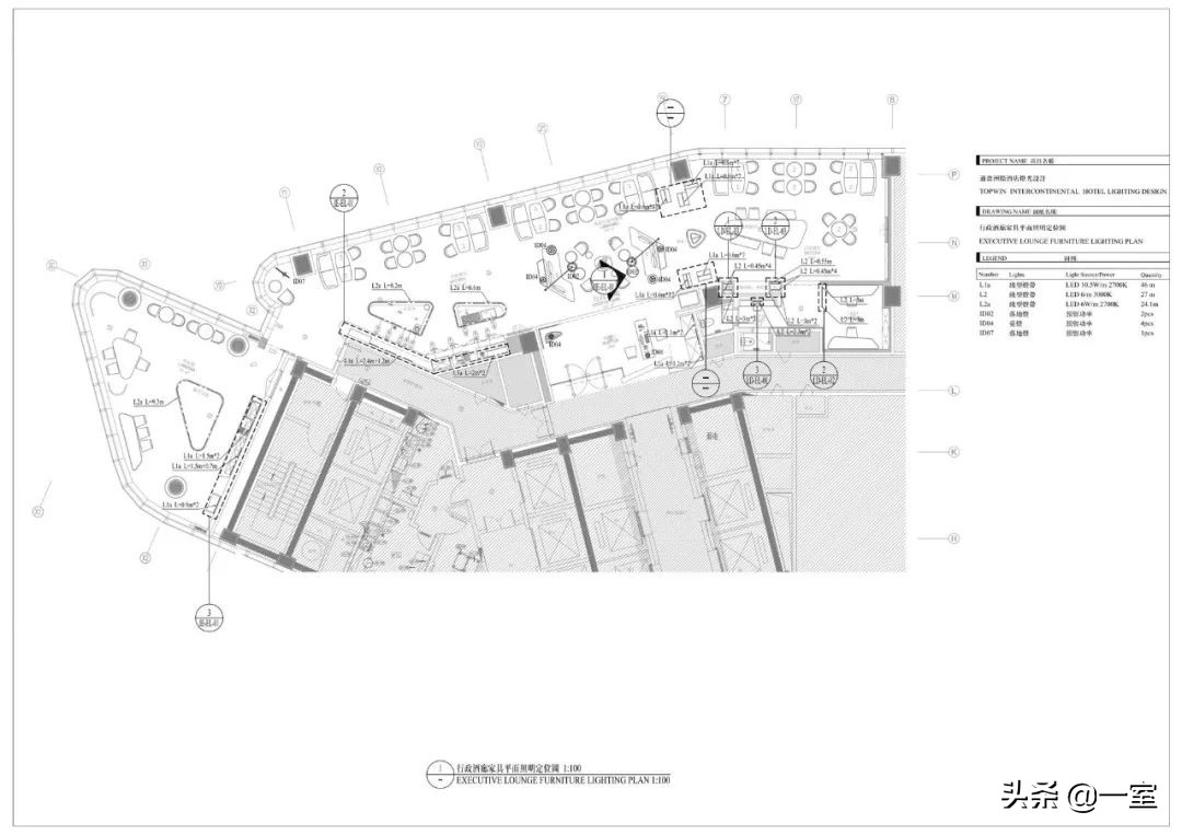
摩登的行政酒廊
位于22层的行政酒廊被打造成一个摩登空间,明丽跳跃又不失优雅的撞色,唤醒了雅皮士们本真的青春,也让这里成为了私人party的不二之选。


暖色且富有层次的光将整个酒廊笼罩在微醺的环境中。灯带装饰的酒架,以及远处霓虹闪烁的休息区,与屋顶的线光混合在一起,让人在品酒的同时也在沉浸在香醇的灯光里。




典雅的客房及总统套房
酒店的300间客房主打现代前卫的风格,最具特色的是圆形布局,将原本方正的45㎡变得非常前卫且兼具艺术感,空间上也更加开敞舒适。



总统套房的设计选择了优雅典雅的DIOR品牌元素,代表性的金色和白色被运用到墙壁、屏风、灯具等设计中。艺术品也多选用“纸、钢、木”等材质,定制专属此酒店的艺术文化。







空间细节




说了这么多,相信大家都对CCD洲际酒店的项目有了初步了解吧,但是毕竟篇幅有限,小编不可能面面俱到都说完了,这里就要划重点了!!本次解说的洲际酒店全案设计资源给大家献上啦~自己探索可能会有更不一样的灵感迸发哦~
以下为资料展示内容
北京通盈中心洲际酒店全案图纸
资源总预览

部分资料展示——实景高清大图








部分资料展示——概念方案











部分资料展示——平面效果图














以上仅为部分作品
就不在这里依次展示了
是不是没看够?
赶快去关注领取吧!
由于篇幅有限,室长送给大家这套完整资料你一定会喜欢!
想要获取的设计师注意!关注+私信:“CCD”,即刻获取!