18款新福克斯近光灯常亮
1
车辆信息
2018年3月出厂的全新福克斯
搭载1.6排量发动机,代号 C6
匹配6AT变速箱
行驶里程约19360 KM

2
故障现象
该车为事故车,修复后检查发现大灯不受开关控制。
即使大灯开关处于关闭档位时,只要打开点火开关,近光灯便会自动点亮,且无法关闭。

3
初步检查
接车后使用元征X431诊断仪进行全车快速测试,发现BCM系统中储存有如下故障码

该车系维修厂对事故修复后,检查发现的大灯故障。
由于维修组员工对汽车电路诊断能力及原理较为薄弱,一下没有了思路。
于是便求助技术部,希望给予相关的技术支持。
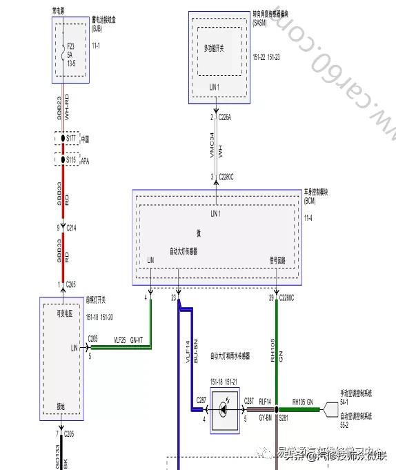
笔者接车后,查阅电路图得知,此车大灯开关通过LIN线与BCM连接。

这也正与上图中的故障码相符合,LIN线或大灯开关相关线路故障时,BCM则无法与开关进行通讯,便会生成以上相关故障码。
分析认为该故障可能的原因如下:
1:大灯开关本身故障
2:大灯开关相关供电发生短路、短路
3:大灯开关至BCM的LIN总线故障
4:BCM自身故障
5:相关电磁干扰LIN总线通讯
4
干就完了
根据电路图及以上分析,由简到繁,先对开关线路进行检查。

使用万用表进行测量
7脚 搭铁端子对地电阻0.3欧姆,正常。5脚 LIN线端子电压为9V,正常范围内。
1脚 30+供电端子电压0V,不正常。
根据电路图测量机舱保险盒的F23保险丝,发现保险丝上有电,但是开关插头处却没有电压。

至此故障明了,证明故障点在保险盒至开关之间的线路可能出现了断路。建议维修组员对线路进行检查,最终锁定故障点,故障排除。

5
故障总结
现代车型功能越来越多,传统的控制方式一直在淘汰。
多数开关都采用了LIN线等单线通讯,这大大减少了不必要的资源浪费。
在维修通讯类相关故障时,因结合故障码、电路图、故障现象对系统分析后再进行检查。这样才能快速判断故障点,以便快速排除故障,提高客户满意度。
1.1
易学通技术团队