
The VietNam Hostel / 85 Design
来自建筑事务所的描述:岘港是越南著名的海洋旅游城市,这里不仅有美丽的海滩,也有极其美妙的Han River以及山茶半岛(Son Tra Peninsula)。岘港也是通往Hoi An世界文化遗址的必经之路。由于旅游业的兴盛,因此岘港市也得到了迅速的发展。许多度假村和酒店在这里建造,服务着来自世界各地的游客。然而,这些酒店仅仅在4、5年前才开始设计建造。这种住宿方式在岘港并不流行,所以并不是非常符合游客的需求。
Text description provided by the architects. Danang is a famous sea-tourism city in Vietnam. It has not only the beautiful beaches, but also the extremely wonderful Han River and Son Tra Peninsula. Danang is also a destination on the way to the World Heritage site of Hoi An. Therefore, thanks to Tourism, Danang has developed very quickly. Resorts and hotels are built to serve tourists from many countries in the world to Vietnam. However, the type of hostel has just been noticed and built in 4-5 years ago. This type of accommodation is not popular in Da Nang, so there is not enough demand to cater to tourists.

越南旅舍就建在Han Market对面,这里是岘港最著名的地方,Han Market是城市的心脏。每天都有成千上万的游客来这里参观和购物,特别是购买当地的特产。此外,从越南旅舍走到浪漫的Han 河用不了一分钟。从这里,游客可以便捷地在城市中旅行。
The VietNam Hostel is built opposite to Han Market, the most famous place in Da Nang for all residents and tourists worldwide. Han Market is regarded as the heart of the city. Every day, thousands of visitors come to visit and go shopping here, especially buy the local specialties. In addition, it takes less than a minute to walk from the VietNam Hostel to the romantic Han River. From here, tourists can easily travel around the city.




越南旅舍的设计风格为极简主义,它消除了复杂的元素,降低投资成本,同时又最大限度地保证了使用功能。所以,建筑师使用了简单又便宜的材料。特别是避免使用会对环境造成负面影响的材料,如油漆、石膏等。建筑师更倾向于使用环保的解决方案,比如使用免烧砖施工,来代替抹灰墙面,以此来减少水泥的使用。此外,建筑师还引入了大量的植物和光线来获取自然采光与通风,使空间感到更加轻盈友好,同时降低了材料的硬度。
The VietNam Hostel is designed in a minimalist way, which eliminates all complicated elements to reduce the investment cost as low as possible but still ensures the maximum use factor. So, we use a lot of simple and inexpensive materials. And especially, we limit the materials that damage the environment such as paint, gypsum, etc. We prefer to use environmentally friendly solutions such as construction of unbaked bricks, not plastered walls in the house to limit the use of cement. In addition, we also use a lot of trees and sunlight to get the sun and wind for the purpose of making the space airier and friendlier, which reduces the hardness of the materials.

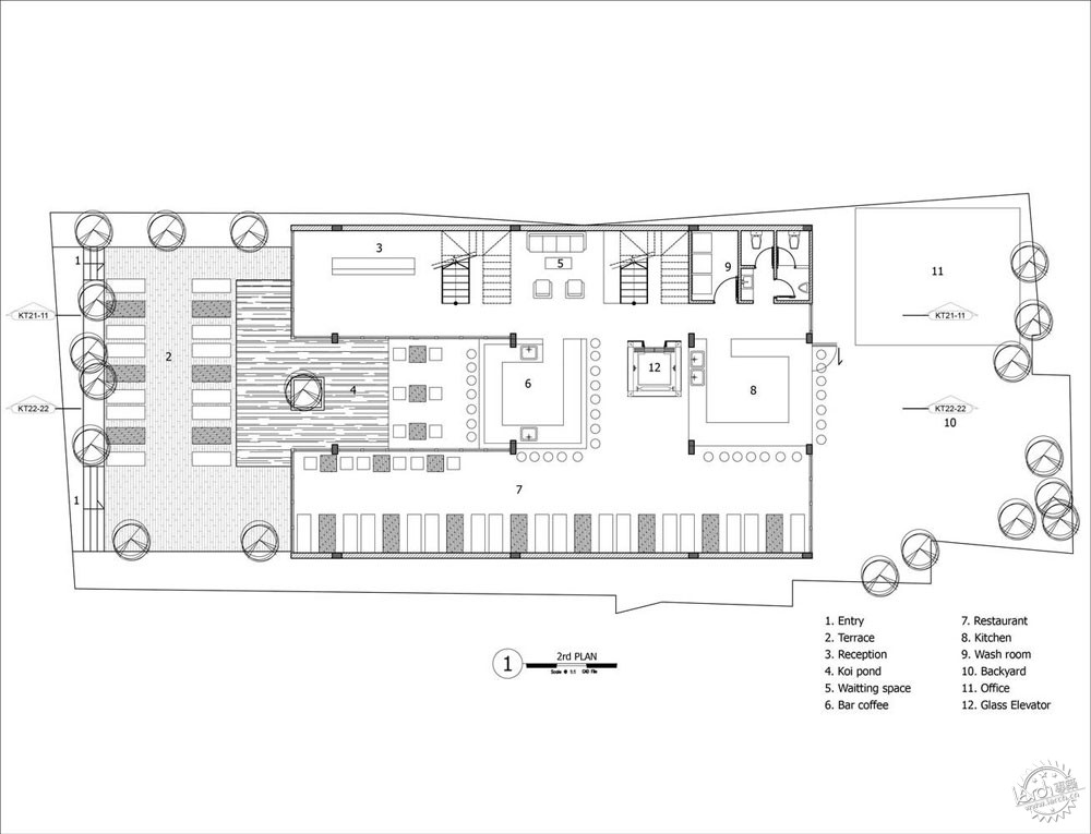
一层:建筑师将整座建筑进行退让,留出停车场地及花园,同时隔离了Han Market以及街道喧闹的噪音。此外,这个区域还可以用来喝咖啡以及欣赏街道风景。在室内,接待空间偏向一侧,其余的空间用作餐厅和咖啡店,既服务于旅馆住宿的客人,也服务于普通顾客。大楼的后面是办公室和花园。电梯采用玻璃材质设计,给人宽敞轻快的感觉。
On the 1st floor: We pushed back the whole building back to the back to reserve a space for parking and garden to isolate the riotous noise of the Han Market and the streets. In addition, the area is used to enjoy coffee and watch the streets. Inside, the reception area is one side. The rest is used to make restaurants and coffee shop to serve both the guests of the hostel and frequent guests. The back of the building is office and garden. Elevators are designed with glass to provide a spacious and airy feeling.





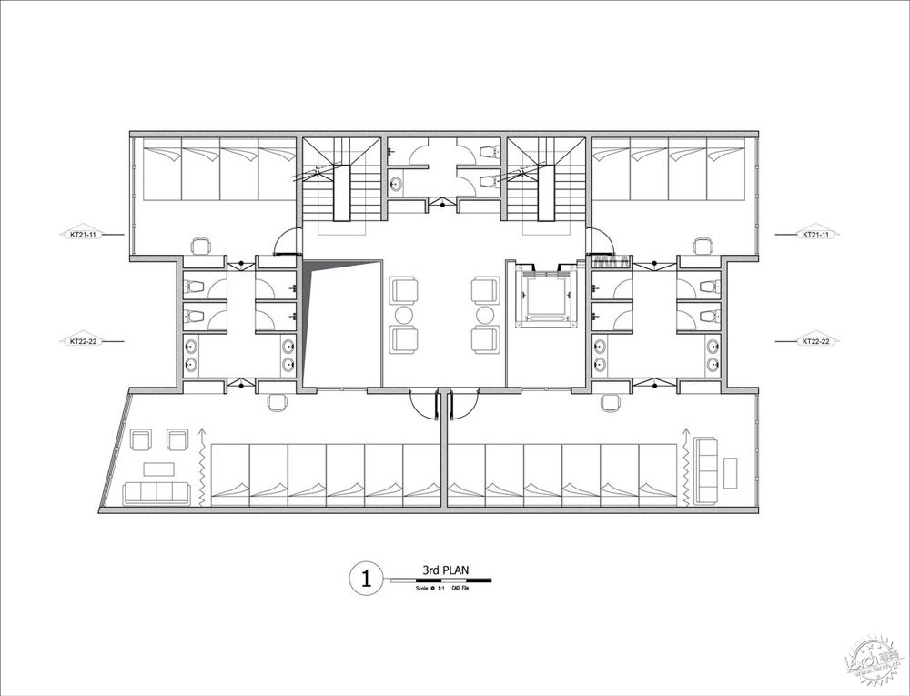
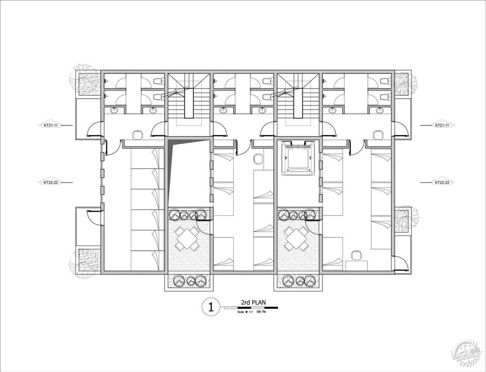
二层和三层:从这两层开始是居住层,其中有宿舍。房间之间的天井空间布置有绿化景观,人们可以步行到这些区域工作、放松、交谈、吸烟,而不打扰室内的其他人。
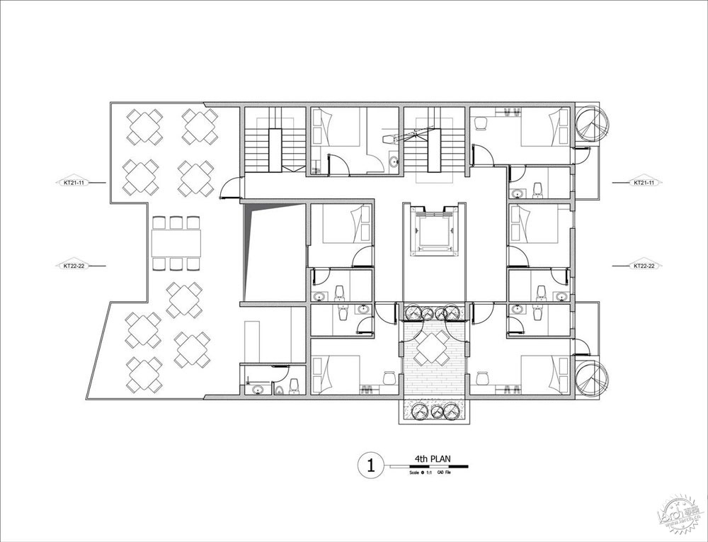
四层:这一层包括私人房间、游乐区、咖啡厅以及共享厨房。
On the 2nd and 3rd floors: They are the beginning of the residence floor, including the Dorm rooms. Between the rooms is a well and the space has green trees, people can walk to these areas to work, relax, talk, and smoke comfortably without disturbing the other on the inside.
On the 4th floor: This floor included Private rooms, playground, coffee shop and shared kitchen.



五层:建筑师设计了两套公寓。为什么要这么做呢?原因有两点:首先,这片土地用于租赁,所以业主需要财务保障计划。如果在上部建造公寓,很容易就能以比旅馆更高的价格租出去。其次,是由于这个地区对旅游公寓的需求非常大,但是周边地区却没有那么大的需求。
On the 5th floor: We designed two apartments. Why do we do that? There are two reasons: firstly, this land is rented for construction, so the owner needs a financial security plan. If we construct the apartment above, it is very easy to rent for a better price than the Hostel. Secondly, due to the demand for tourist apartments in this area is very large, however, the surrounding area is not enough to serve.

越南旅舍设计和建造的目的是为游客带来令人兴奋的岘港旅行体验。通过这个项目,建筑师也想向人们传达这样一个信息,即可以完全以低成本建造,尽量使用对环境危害较小的解决方案,但同时仍然能够保持建筑的品质。最重要的是,它们满足了用户需求。
The VietNam Hostel is designed and built with the purpose to bring visitors exciting experiences when coming to Danang. And through this project, we also want to send messages to people that: We can completely build the works at low cost, preferably use less harmful solutions to the environment, but they are still beautiful. Most importantly, they satisfy the users.







建筑事务所:85 Design
位置:越南,岘港
主创建筑师:To Huu Dung
面积:600.0 m2
项目时间:2018
摄影:To Huu Dung
制造商:VinPro
客户:Mac Bao Gia Co.Ltd
Architects: 85 Design
Location: 22 Hùng Vương, Hải Chau 1, Hải Chau, Đà Nẵng 550000, Vietnam
Architect: To Huu Dung
Area: 600.0 m2
Project Year: 2018
Photographs: To Huu Dung
Manufacturers: VinPro
Client: Mac Bao Gia Co.Ltd
由专筑网邢子,李韧编译
【专筑网版权与免责声明】:本网站注明“来源:专筑网”的所有内容版权属专筑网所有,如需转载,请注明出处