小区:国风美唐
户型:三居室
面积:88平米
造价:18万
风格:北欧

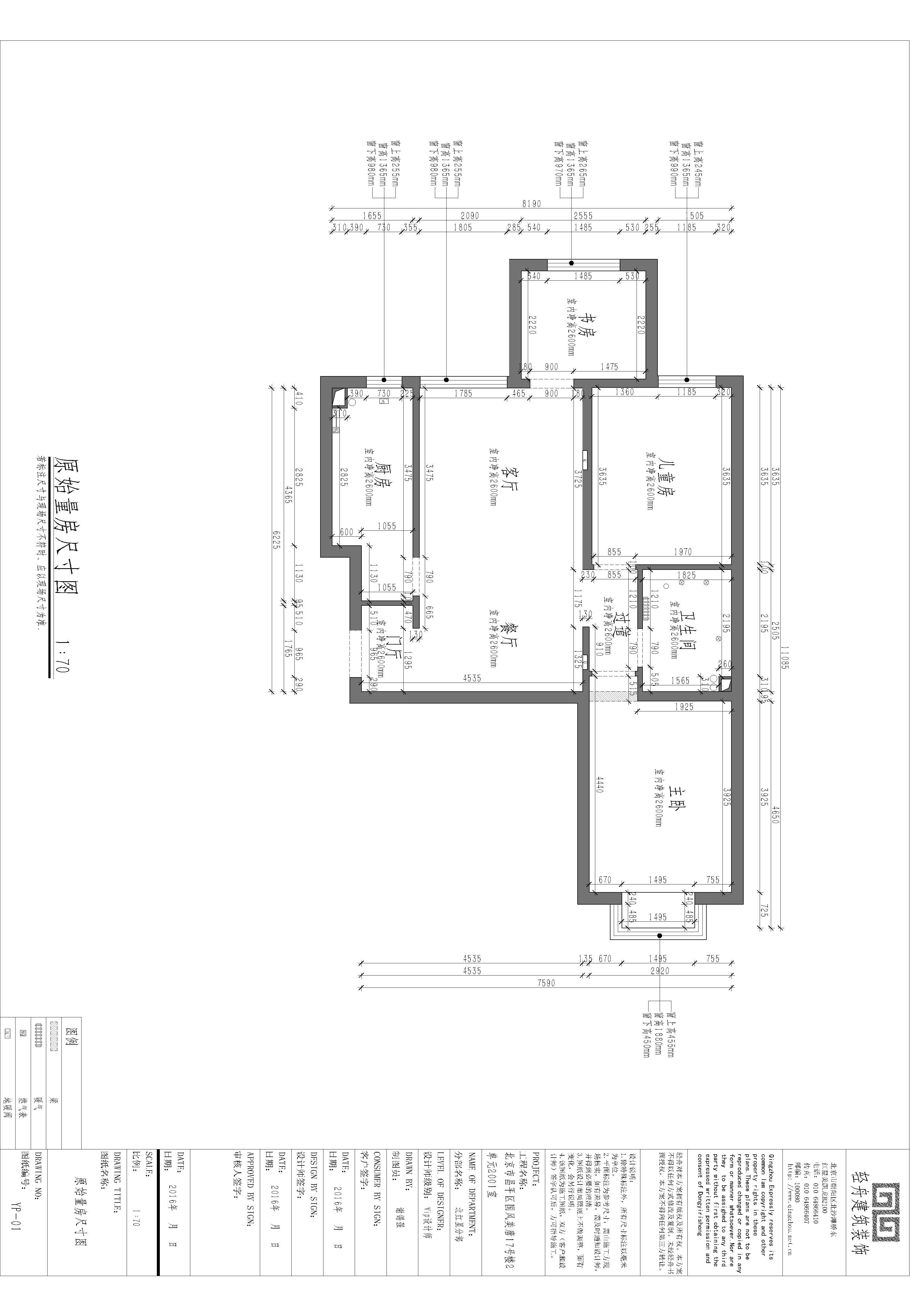
1.卧室间挨着卫生间,通过过道与公共区域的自然划分,形成完整的私密空间。
2.主卧格局完整,卫生间和厨房面积也足够使用,并且方正。基本不需要改动。
3.门厅与餐厅相连,没有相对独立的功能区域划分。
4.门厅位于暗角,采光极低。
5.厨房入门处利用率极低,基本使用不上,格局有待改进。
6.书房空间狭小,用传统的设计方式不适用,空间容易浪费。
原始水泥飘窗台使用功能单一。

1.考虑到门厅和餐厅的直接连通,没有单独的区域划分,所以将门厅与餐厅之间做了玄关,使得区域功能型增强,提高了装饰性,并且入户也有了独立门厅区域。将厨房与门厅的墙打掉,借用厨房的自然光弥补门厅采光的问题,流动性也更加流畅了。
2.此设计将客厅和厨房连通,打掉之间的墙体,用吧台代替原始墙体,并且保留了原始地暖开关。这样避免了阳角的干扰,也使得主人行走动线更为流畅,增加了客厅与厨房之间的活动性,这样使空间更为活泼,感官上也会柔和很多,采光效果因为吧台的设计增强了,并且厨房的空间也增大了。这样一来门厅的区域就形成了,设计了入户门的垭口和玄关,这样整个空间更为独立性,完整性。
3.将面积狭小的书房,使用榻榻米的个性设计,墙边采用定制的储物柜,并采用实用性高的推拉门设计。使得整个空间拥有了储物,休闲,娱乐,办公,住宿,五位一体的多功能个性化空间。
4.将餐厅设计为卡座形式,既可以储物又可以坐在卡座上享受二人的烛光晚餐时光,墙面后期可做一些层板放置书籍旅游纪念品。朋友来了也能容纳得下,展示及使用都满足,也是一道不错的风景。
5.除了卡座的餐厅,主卧室也有一个可以享受闲暇时光的飘窗。将原始的水泥飘窗改为木制飘窗,既可以储物又可以坐在飘窗台上享受二人的下午茶时光,做了一个垭口,墙面做装饰,充分的把这个小资的区域利用好。
6.客厅取消了传统的主灯,换上了轨道灯,使得客厅的光源有了更多可能性的变话,时尚活泼。




