↑ 点击上方“暖通风向标”关注我们

本文来源
网络
风机盘管是空调系统常用的末端设备,通过机组内的冷水或热水盘管将冷却或加热后的空气送入室内,使室内温度降低或升高,以满足人们的舒适性需求。

1、风机盘管的组成
由热交换器、水管、过滤器、风扇、接水盘、排气阀、支架等组件组成。

2、风机盘管的工作原理
机组内不断的再循环所在房间或室外的空气,使空气通过冷水(热水)盘管后被冷却(加热),以保持房间温度的恒定。通常,新风通过新风机组处理后送入室内,以满足空调房间新风量的需求。
3、风机盘管的类别和型号
风机盘管按形式分可分为卧式安装、卧式明装、立式暗装、立式明装、卡式五种。

按有无冷凝水泵可分为普通型和豪华型。
按照排管数量可分为:两排管和三排管。
注:风机盘管所说的几排指的是风机盘管表冷器铜管的排数,一般两排就是铜管两排,每排8根,一共16根铜管;三排就是铜管三排,每排8根,一共24根铜管。铜管根数越多,制冷效果越好。
按制式可分为两管制和四管制。两管制:普通风机盘管夏季走冷水制冷,冬季走热水制热。四管制:多用于一些比较豪华的场所,可以同时走冷水和热水,即可以根据需要有的房间制冷、有的房间取暖。
左右式判断方式:面对风机盘管出风口,冷热媒进出水管在左侧即为左式,反之为右式。

4、简易设计
1、确定风盘型号:
风机盘管请参考厂家的产品型号,注意盘管的排管数量和接管方式。当较大规格的风机盘管噪音不能满足房间要求时,应取多台小容量盘管。风机盘管容量按照下表选择。

风机盘管的规格以下为风机盘管国标型号,供参考:

2、风盘接管管径:
风机盘管接管管径根据末端风机盘管的冷量累计值,按下表确定

3、风盘冷凝水接管管径:
风机盘管冷凝水接管管径根据末端风机盘管的冷量累计值,按下表确定

5、风机盘管的安装
1、基本常识
(1)室内风机盘管要水平安装。
(2)用直径Φ10mm吊杆吊装,吊杆做防锈处理,与内机的固定螺母紧固不松动。
(3)吊装位置符合室内空气循环和图纸要求,与楼板之间要有一定的间距。
(4)使用分集水器的安装方式:水模块与分水器之间主管采用Φ40或者Φ32的PPR管,分集水器与风机盘管之间使用铝塑管连接,流量分配均匀不易发生泄漏。水压试验压力0.6Mpa保持2小时无泄漏。
(5)管路必须保温,保温层厚度20mm,冷凝水管路保温层厚度为10mm。
(6)用U型卡或者其它方式固定,对保温材料的压缩量不大于2至3毫米。
(7)冷凝水管路要保持一定坡度,对于自然排水的风机盘管的排水出口的坡度不小于1%,确保排水顺畅。满水试验不漏水,排水试验不存水。
(8)管路用吊支架固定。
2、风机盘管安装注意事项
1、 当吊顶高度超过3米时,不宜选用天花式机型。
为什么:吊顶太高选用天花机,暖风吹不下来,影响制热效果。
2、冷凝水管与机组之间应用软管连接。
为什么:不使用软管连接机组运行时产生的振动将导致水管脱落漏水,管路振裂及噪音等故障。
3、当房间高度超过3米时,不宜采用顶吹风散流器风口,应采用双层百叶风口下吹风口。
为什么:冬季暖风吹不下来,影响制热效果。
4、室内气流组织要合理,避免气流短路、断路。
为什么:短路主要是指出风口和回风口布置不合理,送风未到达人活动的范围就通过回风口回到了机组。断路主要是指出回风不在同一空调区域或出风达不到空调区域,短路及断路都将严重影响制冷、制热效果。
3、风管安装注意事项
1、风机盘管必须安装回风箱。
为什么:没有回风箱,空调区域室内空气不能有效循环,导致制冷、制热效果差。
2、出风口、回风口及风管尺寸、材料符合规范要求。
为什么:风口、风管过小,必然导致风速偏高或风量不足,产生噪音、制冷制热差果差。一般以出风口风速不大于2m/s确定出风口尺寸,回风风速不大于1.5m/s确定回风口尺寸。
3、风管与出风口之间必须采用帆布等软性连接。
为什么:如不是软连接,机组运行时的振动将沿风管传递,导致震动噪音。
4、当采用软风管时,软管长度不应超过4米。
为什么:一般是FP-136WA至238WA机组用软风管较多,且软风管的阻力大,而机组静压小,若接管太长,会使最远的风口风量小和各个风口间风量不均匀。
4、水系统安装注意事项
1、风机盘管与水管连接时必须使用不锈钢软接管。
为什么:可以防止机组运行时振动传递到水管,减少噪音和管道振动松脱、开裂漏水等故障。
2、风机盘管与水管相连的软接管安装必须是水平直接,不得弯曲。
为什么:因为软接管弯曲过度时,薄弱处会导致破裂漏水。
3、水管与风机盘管相连时,应在进水管上安装“Y”形过滤器。
为什么:防止水系统杂质、赃物进入风机盘管损坏和堵塞换热器。
4、在有节能要求的系统安装电动二通阀时,必须将其安装在回水管上。
为什么:保证风机盘管所需求的正常水流量。
5、电气系统安装注意事项
1、机组必须安全接地。
为什么:无安全接地易导致触电事故发生。
2、电源线规格必须符合机组要求。
为什么:电源线规格不符合要求机组不能正常运行,电源线烧毁甚至引发火灾事故。
3、一个控制开关只能控制一台风机盘管,不允许同时控制多台风机盘管。
为什么:一个控制开关同时控制多台风机盘管,会导致风机盘管电机烧毁。
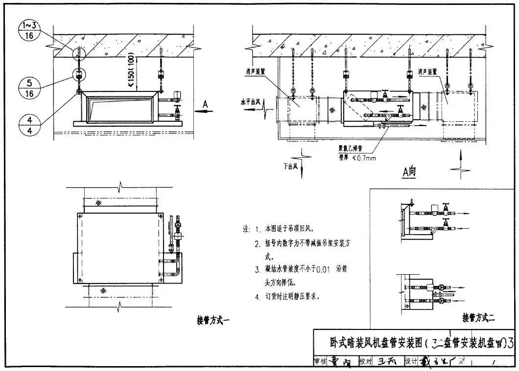
接管安装图:

6、风机盘管出风口方式
下出下回:
图1:不带回风箱
图2:带回风箱(优点是节省能源,干净清洁,减少噪音)

侧出下回:

7、风机盘管容易出现的问题
1)、风机出风量小,制冷量差
原因:风机正常运转的情况下,除了进风量小就是风道漏风,风道漏风的情况很少出现也很好处理,而进风量小的原因多事由于回风口过滤网堵塞造成的,解决办法就是经常清洗过滤网,如果清洗不及时,灰尘和杂物就会进一步粘到盘管翅片和风轮叶片上,翅片被脏物堵塞会导致风机通风能力下降。灰尘还会堆积到风机叶轮上,致使叶片角度变小从而风量减小、风机电流增大。因此即使清理回风口过滤网是非常必要的。一般至少每个季度清洗一次否则堵塞越来越严重,维修也越来越难。
2)、盘管噪音大,随着风速高噪音加大
此现象一般有几个原因:
(1)安装施工过程中减震措施差,运行中产生共振;
(2)风道内有异物;
(3)风机叶片变形或者电机轴承损坏,动平衡变差。遇到此现象先检查盘管支吊架是否松动,然后打开风道检查并清除异物。
3)、盘管电机不转;
4)、出风量正常,送风温度有偏差;
5)、设备和管路滴水。

微信号:hvacfxb
暖通风向标 订阅号
长按 识别 关注
