这是一个起源于“西安人在北京”的故事,
故事的主人公是屋主顾老师和两位设计师。
几年前,在北京奋斗的两个年轻人,
于一个寒冷冬日与顾老师结识,
同为西安人又有相近的爱好,双方一见投缘。
他们常常相聚在顾老师的书房,
看外文书籍,讨论文学、艺术与美。
后来设计师回到西安创业,不久后,
顾老师也回来了,买下一套房,
请来两位老朋友设计,于是这个故事,
以一套文雅、艺术又个性的新家画上句号。

初始平面图
这套房子使用面积约 117㎡ ,
客厅、主卧、主卫上方有 近九米的挑高 ,
虽然土建没做二层与三层的结构,
但是依然让整个空间具有极强张力,
改造可发挥的余地很大,
可以说是设计师都喜欢的那种户型了。

改造后平面图
对挑高空间的改造、对死角的利用,
是大家硬装改造上考虑的重点。
与顾老师多次沟通讨论后,达成共识,
在挑高区域搭建二层与三层空间。
为便于看清细节,喵喵截取了每层平面图
进行一一的设计思路详解。

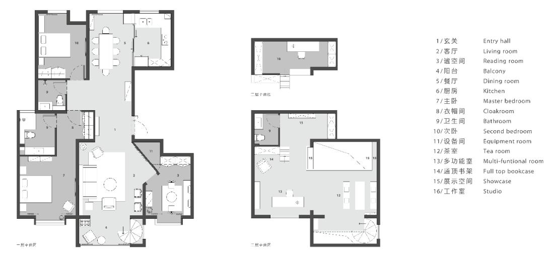
改造后 一层平面图
一层为 三室两厅一厨两卫 户型,
主要改造围绕扩大客厅空间来进行。
1、 将原主卧衣帽间适当压缩,增加玄关面积,减少客厅死角;
2、 改变书房门位置,将电视墙斜向搭建,增加客厅面积,墙后面作为储物间进行收纳。

二层+三层 改造后平面图
二层与三层均为后期新搭建的空间,
由阳台处的旋转楼梯拾级而上。
二层是顾老师的 多功能空间 ,
可喝茶可办公可会友,兼顾展示作用;
三层则是作为 工作空间 来使用。

改造后实拍图
爱看书、收藏多的顾老师夫妇,
把自己的家装得犹如 私人艺术馆 一般,
满是独具个人气息的“心机”,令人羡慕!
玄关

书籍是顾老师生活中不可或缺的伙伴,
设计师提议将书融入到设计中,
顾老师对此欣然接受,
于是正对入户门就有了这一面独特的端景。

找了些不常用的书和亚克力搭起框架,
中间搭配几个透明 亚克力板 ,
后面设计了一条 LED灯带 ,
让灯光可以从书缝扉页中洒出。
五颜六色的书与白墙形成有趣的对比,
顶部放一块木板可作为 置物台面 ,
摆上好看的瓷器和工艺品。
客厅

将原有的一面墙改为 斜向 之后,
客厅空间更大也更富有个性。
手工羊毛地毯、Cubes的布艺沙发、
充满异域风情的美国导演椅,
让整个空间充满了慵懒的感觉。
在自己的家里,没有固定的风格,
只有独一无二的私人记忆。

顾老师喜欢席地而坐,
设计师将电视高度放在低处,
电线和设备都放到了墙后的储物空间中,
看上去更显 整洁素净 。
另一边特意露出了 线浇结构墙体 ,
搭配顾老师自己做的装饰画和他的竹子,
让自然风和硬朗的工业风形成混搭。

从二层俯瞰一层
做了挑高空间的二层没有封起来,
当顾老师在二层工作的时候,
还可以随时与一层的家人交流。

空间因互动和流通而更有温情,
工作不会置身于生活之外,
同样生活也可以容纳于工作之中。
会客室


作为小型会客室使用的原始书房,
以纯净的 绿松石蓝 为底色,
加入不同比例的 黑、黄、红色块 搭配,
明快又不失沉稳。

收纳柜采用了低饱和度的莫兰迪色,
配合铜拉丝复古拉手。
长椅是顾老师不知从哪收集的木头,
设计师花了三天时间抛光打蜡上釉,
DIY成一个长凳,虽然累但是非常有趣。
墙上是一根 复古窗帘挂杆 ,喷了黑漆,
又是装饰又可以挂客人的外套,
“上海名媛”抽象画是从跳蚤市场淘到。

入口右手边是一款20年前的收纳柜,
设计师进行了维修打蜡,让它重焕生机,
上方摆着顾老师做的根雕艺术,
墙上的装饰画是一副在冰岛的摄影作品。

开关是淘来的 复古拨片结构开关 ,
在由电工维护保证安全性之后,
装载了混凝土墙体上。

顾老师买回来不知道放哪里的红鼓,
设计师在上面放了一块木板作为小茶几。
丝质窗帘挑选了三种荧光色对撞,
流光溢彩,如梦似幻。
置物柜旁是一款房车用的冰箱,
上世纪八十年代产自美国,
二十年后飘洋过海来到了西安。
餐厅

边柜用于储存一些茶具与艺术品,
顶部放着的烛台和复古音响
都是顾老师从英国买回来的。
餐厅的餐桌依然由设计师手工打造,
利用顾老师收藏的四块松木和一块胡桃木,
自己设计自己制作的。
(顾老师经常以吃饭为由叫设计师帮他打蜡,
抑或是设计师以打蜡为由过去蹭饭。)

墙上的开关依然是定制的复古开关,
并且设计了一个 IPAD架 ,
后面有充电接口和磁吸设备,
便于就餐时浏览一些新闻时事。
厨房

厨房做成了 开放式 ,
将操作台从6米增加到了9米,
可操作空间更大更舒适,
并给女主人留下了摆放插花的空间。
厨房空间向外的延展区域里,
内嵌了洗衣机,小酒柜以及复古烤箱。
主卧

屋主夫妇都毕业于美术院校,
于是床头选用木板装裱亚麻布,
做出了类似 油画布 的肌理效果,
后方还隐藏了灯带作为氛围灯使用。

定制的开关和油画布般的背板对比,
一张羊毛小椅用于充当床头柜。
阳台

阳台选用了白色的纱帘,
与 白色旋转楼梯 搭配,温柔而浪漫。

去市场挑选了造型合适的竹子放在夹角,
另一边则做了一个绿植空间,
绿色和白色的搭配让空间清新灵动。
工作区

二层横梁考虑了几种弱化方案,
最后决定采用和客厅墙一样的处理方式,
砸掉表皮露出混凝土结构。
一款仿制安迪·沃霍尔的《玛丽莲梦露》装饰画,
让空间色彩丰富活跃了起来。
五米多高的 通顶书架 足够收纳屋主的藏书,
并且三层位置做了双层结构处理,
一些工作用的书则储藏于三层的书架区。
通往三楼采用了木质楼梯,更舒适温馨,
利用一层会客室剩下的乳胶漆
在三层下方打造了一个 展示空间 ,
亚克力置物架尽量减少对物品的遮挡。

作为顾老师的会客空间兼工作区,
在此做了 茶桌横椅 ,满足他的喝茶爱好。
桌椅依然是用顾老师收集的木头打造,
旁边用亚克力做了一个置物架,
将顾老师收藏的茶壶茶盏展示出来。
设计师说,只要有合适的材料,
很多简单的家具及装饰品都可以DIY,
既节省成本又是有趣的体验。

二层的天井结构中设计了一些 展示平台 ,
利用顾老师的藏品做了一些装饰。
装饰画也是从屋主的手稿中挑出来的,
重新装裱加上框架而成。
黑色的是屋主自己做的葫芦工艺品,
喷了黑色,更符合空间的基调。


红色托盘加上一颗鹅卵石,
像是一种行为艺术,
与白色空间产生了奇妙的化学反应。
那些脑洞大开的各种设计,
会让看似平淡的物品以新的姿态重生。
卫生间

卫生间采用经典的小白砖,
壁挂式马桶上方的置物台利用起来,
摆了蜡烛、香薰和玩偶摆件,
让紧凑的卫生间也充满生活气。

在今天这个故事中,
设计师从顾老师的生活细节出发,
切身考虑到了具体的生活场景,
而不只是站在专业角度一味提出建议。
此外,对于有着众多藏品的屋主来说,
将看似“面临淘汰”的老物件
通过重新维护而 二次利用 ,
环保、有趣又省钱,
也让家充满了浓郁的个人风格,
是本案给我们的另一个启示。

设计不是把自己喜欢的东西强加于别人,
而是利用专业和知识,
帮屋主梳理和描绘自己的生活。
每个人的生活都是不一样的,因此,
每一次设计之旅,都是一场新的冒险。
房屋信息
项目地址: 陕西 西安
使用面积: 117㎡
项目总花费: 50w
设计机构: 集山也空间设计
设计费用: 400-600/平米