01
# EDGE Suedkreuz 办公楼 #

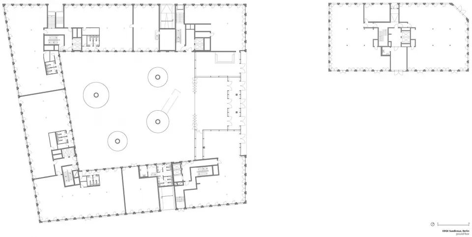
项目是一座七层办公综合体,由两栋建筑组成,总面积约32000平方米。综合体坐落在10100㎡的基地上,采用可持续、环保节能的模块化混合木构技术建造。两栋独立建筑中较大的那栋面积约20000㎡,是未来一段时间内德国乃至欧洲最大的独立混合木构建筑之一。自2022年5月起,它成为了能源供应商Vattenfall Germany在德国的新总部。

这座新办公综合体是新城的一部分。较小的那栋建筑名为“Solitaire”,是一座长条形的独立建筑,延续了较大的那栋办公楼的立面线条。后者名为“Carré”采用四边形结构,平面呈不规则的梯形。

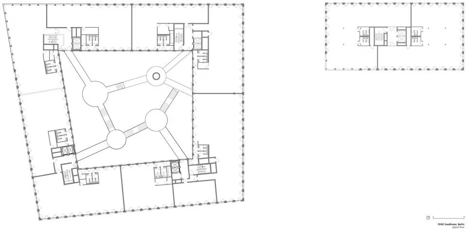
Carré大楼的核心是一个宽敞明亮的中庭。两层高的入口大厅净高7米,26米高的中庭顶部覆盖透明ETFE屋面,由木制桁架结构支撑。办公室中的整面玻璃窗,玻璃覆盖的入口区域,以及建筑休息区巨大的观景窗共同为空间带来了充沛的自然光照。四个不同高度的树状结构是空间的焦点,在透明屋顶下向上生长,给人一种身处温室的感觉。


在地面层,结构的主干周围形成宁静的绿岛。社区和餐饮区域进一步为中庭带来活力。结构顶部的“树冠”承载着休闲平台,在不同高度形成绿色的休闲和交流区。最大的树冠位于14.87米处,其中的平台直径6.2米;最低的树冠高4.28米,直径7.2米。




建筑五层的空中休息室设有全景玻璃窗和宽敞的室外露台。建筑是一个开放的生态系统。森林显然是建筑象征的焦点,它是木材的来源,而木材这种材料正是建筑的标志性特征。


Solitaire大楼拥有7米高的通高大厅,2~7层为办公室。一层为美食、商业和零售空间。人民可以通过新的城市广场进入建筑。建筑屋顶景观化的室外休闲区呈现出花园一般的品质。建筑内部可以根据不同人的使用需求改变布局,营造更具创造性的现代多功能工作空间。

立面采用常规的网格结构,由可持续的抗腐蚀玻璃纤维混凝土板组成。横向条带和竖向彩色面板突显了网格的存在。杆状结构在垂直方面上支撑立面。玻璃纤维壁柱在视觉上强化了柱脚截面。富有节奏感的立面用色严谨,窗户设置了防眩光保护和室外遮阳板。




自然的木材在室内和办公空间中随处可见,为使用者创造了持续健康的室内环境。项目中使用了约3500m³获得认证的杉木,比起其他材料,木材制成的房间内热量的留存时间更长,减少了对能量的需求。

项目将钢筋混凝土元素的使用量控制在最小,仅用在防火隔断部分,以强化建筑结构。承重框架——尤其是室内——由木材和混合木元素组成;混凝土被用在基础和地下室。建筑全部的垂直荷载由木制支撑构件和木梁承担。










02
# 科恩伯格中心 #

Promega 公司是一家国际生物技术公司,服务于生命科学研究和应用,其价值在于长期规划、创造性思维、关注细节、灵活性和转型发展。占地 28 万平方英尺的科恩伯格中心以诺贝尔奖得主生物化学家阿瑟·科恩伯格的名字命名,提高了研究能力和创造工具和技术的能力,支持研究、药物开发、法医科学、临床和分子诊断以及应用于测试的大多数新方法和技术。坐落在一片空地上,周围是林地,设计灵感来自自然、科学工作流程和以人为本的商业方法,促进前沿的科学发现。

Promega 的文化包含了幸福、情感和社会智能的原则,通过改善关系、管理压力和加强联系来帮助员工发展。该组织的情绪和社会智力项目包括 1:1 和小组指导、每日指导冥想、培训和作为全公司首创的新兵训练营。为了增强员工的能力和促进公司的发展,该建筑旨在培养创新、协作、创造性思维和个人发展。

Promega 的新工作空间体现了其包容、合作的文化,以人为本,创造了一个独特的环境,激发了发明。Promega 的实验室可以享受自然光线,并可以看到充满自然植物、水景和原始艺术的阳光中庭,创造一个支持个人健康的环境。其创造了一个独特的环境,在实验室环境中重塑模具。


为了确保 Promega 公司为未知的未来做好准备,整个实验室面积的 30% 是 “前沿空间”,为创新和探索尚未想象的新技术而预留。通风的中庭设有咖啡馆和 “第三”空间,以满足或只是交叉的路径,“漂浮”的木桥,加强各部门的联系,以激发和推进新的想法和新的方法。


科学家已经准备好使用实验室工具和设备,以消除障碍并帮助加快研究。由于实验室空间是公司现有实验室空间的两倍,Promega 为科学家提供了最佳的灵活性,以满足他们的实验需求,并确保研究不受空间或设备的可用性限制。



为了激发联系,实验室有内部的协作空间,用于快速深入的讨论。鼓励人们拥有新的视角,被艺术包围,独特的作品融入到建筑中,创造了一种画廊的感觉,激发了解决问题和发现的新视角。健康和活力的空间,从一个新的自助餐厅,提供新鲜的,本地种植的食物,从现场花园到体育馆和一个声音治疗工作室,员工在这里拥有新的生活。



03
# The Laszlo 办公楼 #

Laszlo 位于伦敦北部海格特附近的一条主住宅街上,与伦敦艺术大学相邻。这座 5 层楼的建筑于20世纪初建造。大楼原名 Batavia Mills,用于制造和印刷。二战期间,用于存放防毒面具。外墙是砖砌的,有突出的支柱和内嵌的拱形窗户,分层形成一个有深度和阴影的外墙。结构框架内部是钢。

大部分建筑被包裹在大象混凝土柱和梁中,但某些楼层的钢结构则暴露在外。当它在 30 年前最后一次翻新时——为了储存批发商品——增加了一层新的楼层,同时在东山墙重建了一个新的入口,后面有新的楼梯和电梯。2016 年我们第一次参观这座建筑时,楼层被单独隔开占用,隐藏了建筑的原始比例。

几十年来,办公楼的建设一直处于“外壳和核心”和随后的“装修”阶段。这反映了建筑作为办公楼的投机之处——外壳是一种基础设施的形式,而装修是为租户而设计的。这就导致,根据该租户的特定要求,内部设计成为了一次性的。随着办公室性质变得更加明显,内部设计的特殊性、品牌、装修的程度都被加强,变成了如酒店一般的效果。在这种情况下,我们试图使大楼暴露出具有 100 年历史的结构,并用低技术含量的建筑技术和材料对其进行调整,以此来说明办公室的建造有可能是多么初级。我们参考了许多艺术元素,以此来完整我们的设计。


首层平面图新的混凝土梁下方的一个简单的钢玻璃屏风形成了新的入口。在内部,砌块墙形成了一组相互连接的房间——大厅、电梯大厅、接待处和“客厅”。建筑原结构一般暴露在外。一些空间有木羊毛天花板和长度被精心设计的管道系统,掩盖了它们的功能。电梯、楼梯和厕所也使用了相同的砌块。在每一处,砌块都精确细致,精心铺设,带来真正的工艺感。整个门从 Josef Albers 的色彩研究中汲取灵感,它们的框架像挂在墙上的画布一样叠加在一起。每一层设计都运用了色彩研究,形成了一个门廊。这个房间,通向厕所的大厅,有发光的镶嵌天花板,让人想起二十世纪中叶的北美办公室内部。

Lazlo Moholy Nagy 的一幅画成为了我们对混凝土地板进行修复的灵感——在先前切入地板的隔板被拆除的地方镶嵌了大地色的熨平板。在顶层,新设计展示了 1980 年代的钢木托梁屋顶。家具设计与这两种风格一致,都与原始建筑进行了对话:接待处和书架是结构元素,体现了结构和家具一体的理念,而厨房旁边的梳妆台则是以结构的形象组成的一件家具,换句话说,“家具即结构”。

分割空间的裸露钢梁和电缆桥架为象牙色和浅灰色,颜料有助于日光和人造光落在其上,使内部空间具有绘画感,并投射阴影。新墙是温暖的浅灰色,与砂浆颜色相似,与砌块表面齐平。在升降机周围,砌块侧放以增加强度,带齿的担架与相邻的较窄的墙壁结合在一起。在新墙遇到障碍物的地方,例如横梁,混凝土块的薄瓷砖分别堆叠在砂浆床上。

与“外壳和核心”和“装修”的惯例不同,这项工作侧重于标准材料的仔细细节以及结构的最大元素和最精细的触觉细节之间的连贯性。材料——混凝土、砂浆、砂浆、木材和门上的颜料——构成了一个有绘画感和可持续的建筑,也是对快速时尚的挑战。对于室内设计来说,具有建筑完整性和不浮于表面的目标很重要。
