点上方蓝字可关注 微信号:装修33天

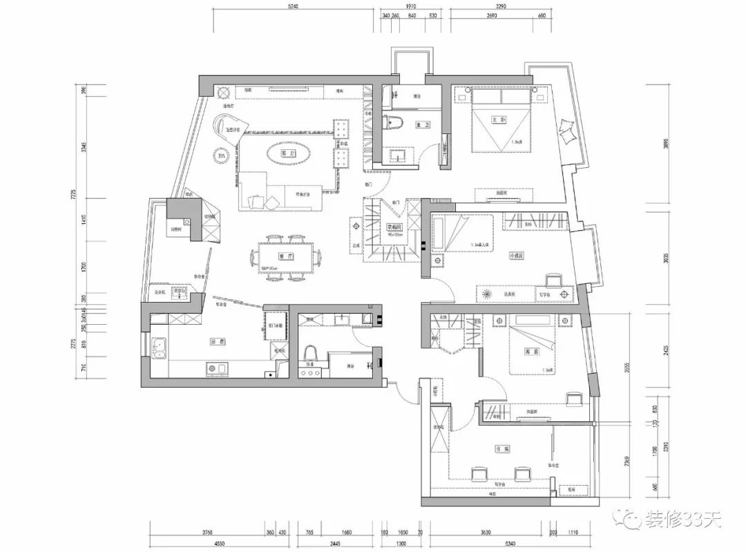
使用面积160平,造价66万(不含家电),整体玄关采用深色木面,大幅装饰画给人视觉延伸感

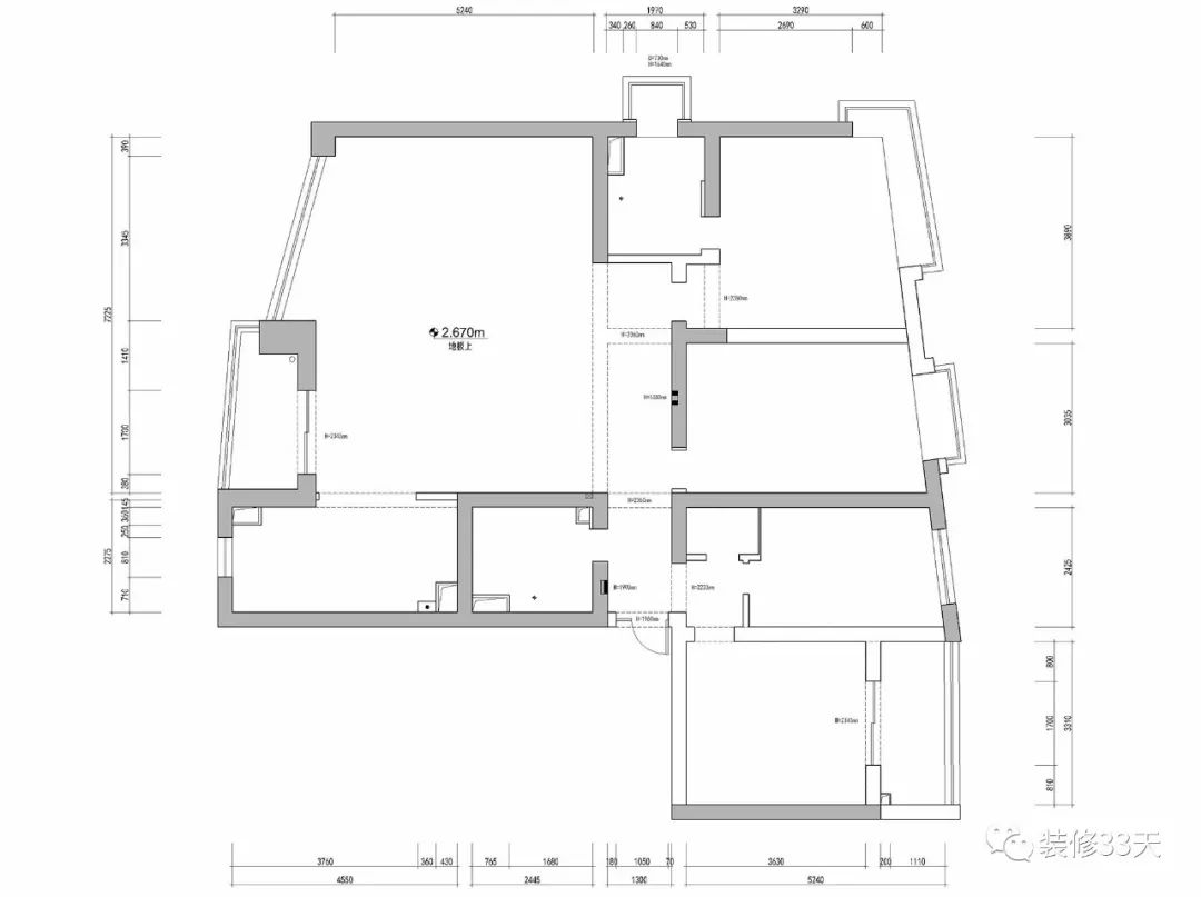
平面结构图

平面布置图

客厅地面通铺自然木色地板,极简顶面安装分子吊灯,斜角处理纳入阳台扩展空间

木饰面从门厅延续至客厅,并设计主卧的隐形门,浅灰色沙发配大理石面茶几,时尚大气

利用功能性家具将横厅合理划分出客餐厅场域

电视背景墙选用的布纹样式与沙发布纹相呼应,整体空间点缀脏粉色单人沙发与艺术装饰画

餐厅选用莫兰迪色调,结合时尚简约的家具与灯光修饰

千鸟格窗帘,个性独特

餐厅望向客厅视角

书房进门是一组收纳高柜,双人加长书桌结合大面积吊柜收纳,满足两人同时学习办公

次卧选用灰色与棕黄色搭配,床尾的电视梳妆组合柜采用水泥色与木色混拼

床的两边对称安装下垂式壁灯

利用入户小衣帽间,规划出一个内嵌衣柜

打开隐形门,在主卧入口打造收纳展示柜体

灰褐色墙面搭配木色地板,天鹅绒软包床成为空间亮点

L型飘窗为主卧提供绝佳的采光与视野,延续采用千鸟格窗帘,与整室风格相呼应

卫生间背景采用不同颜色的瓷砖作拼花处理,打造简约时尚的空间视觉
设计 | 独立设计师 董纬极(上海)
微信:13816517707
后台回复「董纬极」可以看更多作品
欢迎业主、设计师、装修公司免费投稿照片
装修33天商务合作微信:king194316
松爷店铺掌柜微信:yejia1702
独立设计师 董纬极其他作品推荐,点击下图查看

实用装修指南
装修33天 实用装修指南
喜欢我们的文章就随手转发到您朋友圈吧