有这样一种建筑,其院落宽绰疏朗,四面有房,游廊连接,起居方便;私密性强,关起门来自成天地;院内,四面房门都开向院落,一家人和美相亲,其乐融融;宽敞的院落中还可植树栽花、饲鸟养鱼、叠石迭景,让居住者尽享大自然的美好。
自元代以来,无论是王公大臣、富商巨贾,还是文人学士、普通百姓,都住在大大小小的四合院中。然而,在我们还来不及感受这建筑的美好之时,四合院便随着现代化的进程逐渐淡出我们的视线。
在哪里找寻,沉静、恬淡的氛围,淳厚亲切的人情味,以及悠然自得、乐天知命的生活?且远离摩天大楼的淋漓和宽阔街道的通畅,在最深处的窄街小巷中感受城市的别样风情吧!
【 第 一 篇 】
四合院常识
四合院是我国古老、传统的文化象征
“四”指东、西、南、北四面
“合”是四面房屋围在一起
形成一个"口"字形

四合院至少拥有三千多年的历史
是汉族的一种传统合院式建筑
其格局为一个院子四面建有房屋
将庭院合围在中间
故名四合院
▼
老北京正规的四合院
一般依东西向的胡同而坐北朝南
大门辟于宅院东南角"巽"位
四合院中间是宽敞的庭院
庭院中植树栽花
备缸饲养金鱼
是四合院布局的中心
也是人们穿行、采光、通风、
纳凉、休息、家务劳动的场所

而四合院做为中国最具乡土风情的
五大传统住宅建筑形式之一
并不是只有简单的"口"字形哦~
▼
“口”字形的称为一进院落
“日”字形的称为二进院落
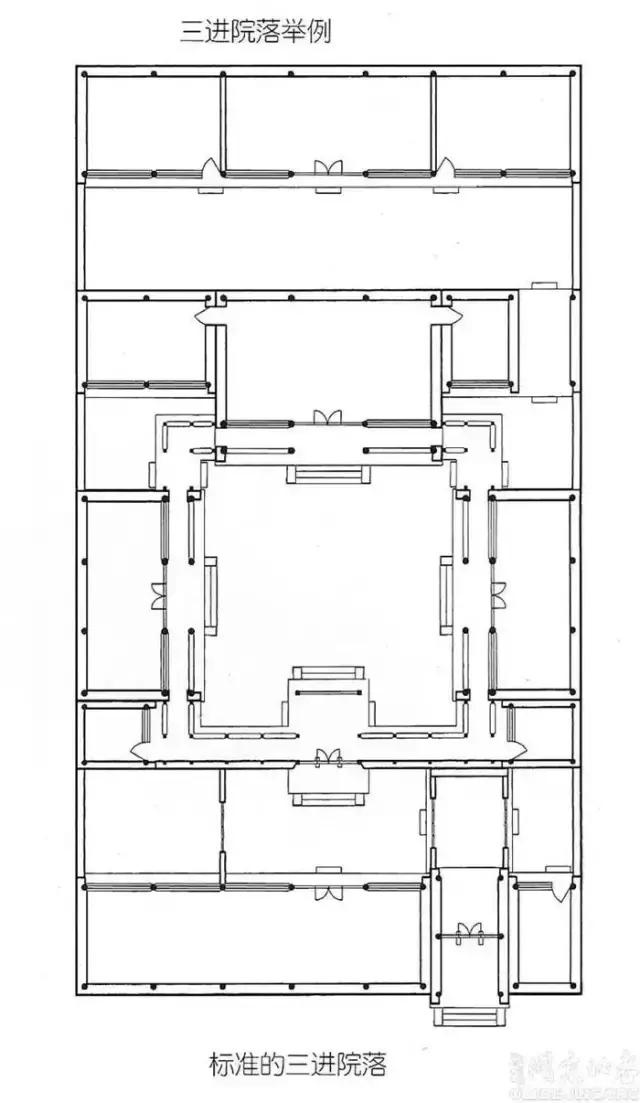
“目”字形的称为三进院落

在你以为“三进”就是满级了的时候
机智的中国古代劳动人民并不满足于此
▼

其中
三进院落是明清时期
最标准的四合院结构
其布局最为合理、紧凑
是民间大量采用的形式
▼

看了平面图
大家有没有发现了什么奇怪的地方?
▼
为什么四合院的大门
不开在正中而要开在东南角?

这个问题的答案
我们留到最后再揭晓!
有兴趣的朋友们可以猜猜看~
现在先来说说
四合院的大门有什么讲究
▼
其实中国的建筑向来等级森严
各种建筑单体
按照主人的身份分为不同等级
就连大门也不例外



✿
介绍完大门
让我们一起
走进四合院转转吧~
▼
从大门进去
迎面就是影壁

影壁有遮挡外人视线的作用
即使敞开大门
外人也看不到宅内
还可以烘托气氛
增加住宅气势
▼



看到影壁后再往里走
就到了第一进院和第二进院之间的一道门
——垂花门
▼
垂花门是整个四合院
最漂亮、最带感的一道门!





过了垂花门
就是第二进院了
若遇到雨雪天气
或无重要活动不开放垂花门时
想进入正院
就要经过抄手游廊
▼


四合院的参观就到这儿啦~
是不是很喜欢这样古朴的房子~
✿
哦对了
大家还记得前面说过的问题吗?
▼


【 第 二 篇 】
四合院建筑解析

垂花门

大门构造

带八字影壁广亮大门

带花园四合院

带花园四合院1

单卷棚垂花门

二进带游廊平面

房间透视

广亮大门

脊

贾府建大观园前总平面图

贾府建大观园前总平面图02

建筑构架

金柱大门点这免费*载下**施工技术资料

蛮子门

门墩

如意门

如意门砖雕1


如意门砖雕2

三进四合院

三进四合院平面图

山墙犀头

书房立面

书房平面

四进四合院

随墙门

堂屋家具陈设

堂屋家具陈设里面

堂屋家具陈设平面

五出五进

西洋门

巽门

一殿一卷垂花门

一进四合院和三合院平面图

一进四合院平面图

一主一次并列四合院

影壁花心