
设
计是工程建设的灵魂,如何保证此“灵魂”常驻,不致出现因图纸低级错误而导致按图施工产生的不良后果?
现阶段国家住房和城乡建设主管部门保证设计质量的一些规定和措施是基本到位的,但是,在工程现实中,总是存在一些这样或者那样的问题:如设计单位内部质量保证体系不健全,在设计的各个内部环节设计人员设计经验匮乏、缺少必要的审核流程等;图审单位,由于工作量大、审核不仔细,没有严格执行“强规”必须审核的要求;项目监理(代建)单位不作为,没有实施“图纸会审”制度,或者实施流于形式,看不出真正问题之所在……因施工图不符合相关要求造成施工后项目出现“质量与安全问题”的情况在工程建设项目中屡见不鲜。

本文从杭州市丁桥医院(以下简称“本项目”)门诊大厅采光顶钢结构屋面入手,详细介绍该部位施工图质量发生的一些情况,以此说明审图环节的重要性。
壹
项目施工图出图及施工开展
基本情况

本项目于2015年3月完成幕墙专项设计招标,同年9月设计单位提交幕墙施工图,同年12月完成幕墙施工图审查;2016年3月完成幕墙施工招标,同年11月开始幕墙施工,2017年3月开始门诊大厅幕墙采光顶钢结构施工。
贰
门诊大厅幕墙采光顶钢结构合拢后
出现的情况
2017年5月中旬,该部位幕墙采光顶钢结构所有焊接点全部焊接到位,整个结构合拢后不久,专业监理工程师平时巡检过程中发现,采光顶周边四个角部位,整个钢结构呈现“四个角上翘,中间下凹”的现象,原预埋在钢筋混凝土立柱中的钢筋被拉断(详见图1)。为防止出现意外,监理工程师立即下达停工令,对现场进行了封存,撤离采光顶下部所有施工点。

图1 预埋件受损现场情况
叁
原因分析
|
一 |
受力原理的合理性分析 |
1 原设计整个结构空间形状(详见图2)

图2 原设计采光顶大样图
2 深化设计后整个结构空间形状
承包人考虑,原设计整个结构顶部为水平状态,对于排水会有不良影响,根据其施工经验,经过深化设计,形成以东西向中间轴线为中心,中间高、两边低的横坡度达到5%的结构(详见图3)。

图3 深化设计采光顶大样图
3 钢结构与混凝土结构连接处全部为刚结点
钢结构与混凝土结构连接处全部为刚结点,如图4所示:设计师将所有竖向应力通过这个结构传递给立柱,立柱顶面钢板与预埋钢筋焊接在一起,浇筑混凝土之前,预埋钢筋深入混凝土,混凝土浇筑结束、硬化后,整个结构就形成了一个整体,将整个结构的重量通过交接部位,传递给大楼主要受力部件——立柱等。
各杆件在此点既不能相对移动,也不能相对转动(保持夹角不变),因此相互间作用除力以外还有力偶,符合《结构力学》中对于“刚结点”的定义。刚结点本身具备的特性:约束,构件间只有轴力,没有剪切力,没有沿着构件轴线方向的变形能力。

图4 钢筋预埋图
整个结构,施工期结束之后,受外力各种荷载的作用,风荷载、雪荷载、地震荷载等,都是显而易见的;由于刚结点的结构特征,限制了结构本身发生横向与竖向变形的能力。
除上述荷载之外,一旦其他因素引起结构发生的变形,如果结构本身内部强度不足以抵抗该作用力,结构内部或者在该结构与支撑结构的交界面发生开裂的概率就会不断增加。
4 主要构件轴力计算
根据上述两个设计方案,结合《钢结构设计规范》等相关设计标准,使用“同济大学3D3S软件”,建立两个设计方案的《计算简图》(详见表1),分析“共计44种荷载与组合(恒载+活载工况+风载工况+温度荷载)”基础上,得出“最不利内力(轴力)计算结果一览表”(详见表2)。
表1 两个设计方案计算简图一览表
|
原设计方案 |
深化设计方案 |
|
|
|
|
备注:圆表示支座,数字为节点号。 |
|
|
二 |
温度应力引起的变形分析 |
钢结构其结构内部,受温度的影响,易发生变形,合拢时间,正值春夏交接之际,地表温度逐步上升。查询当地气象资料,最高地表温度,达到60℃。在太阳暴晒下,整个钢结构发生“热胀”为主的变形,造成整个构件,发生下挠现象,尤其以跨中变形最甚,经过实测,跨中下挠度最大值为37cm。
表2 最不利内力(轴力)计算结果一览表
|
单元号 |
名称 |
组合号 |
序号 |
位置 |
轴力N |
|
177 |
N最大 |
22 |
1 |
0 |
1405.3 |
|
180 |
N最大 |
22 |
1 |
0 |
1405.3 |
|
153 |
N最小 |
43 |
1 |
0 |
-1452.3 |
|
156 |
N最小 |
43 |
1 |
0 |
-1452.3 |
|
备注:结构重要性系数取1.00;根据不同恒载、活载工况、风载工况、温度荷载情况,共形成44种荷载组合,其中:①22组合号内容:1.20恒载+1.40x0.60风载工况1+1.40温度荷载;②43组合号内容:1.20恒载+1.40x0.70活载工况2+1.40x0.60风载工况3+1.40温度荷载。 |
|||||

肆
后续改进情况
|
一 |
改进原则 |
鉴于上述问题出现,源于整个钢结构与土建结构之间的连节点,原设计成为刚结点,既不能移动,也不能转动,使得应力聚集处,在应力最薄弱的位置释放出来,使整个结构呈现不安全状态。故如何解决不合理部位的状态,使之成为,整个钢结构能够承受温度应力变化、适时具备变形的能力,且此变形可以控制在可控状态,是后期需要进行设计优化的主要着力点。
经商议,解除原刚结点,替换成为具备平面变形与沿重力方向变形的结构,比如盆氏支座,较易达到改进优化目的。
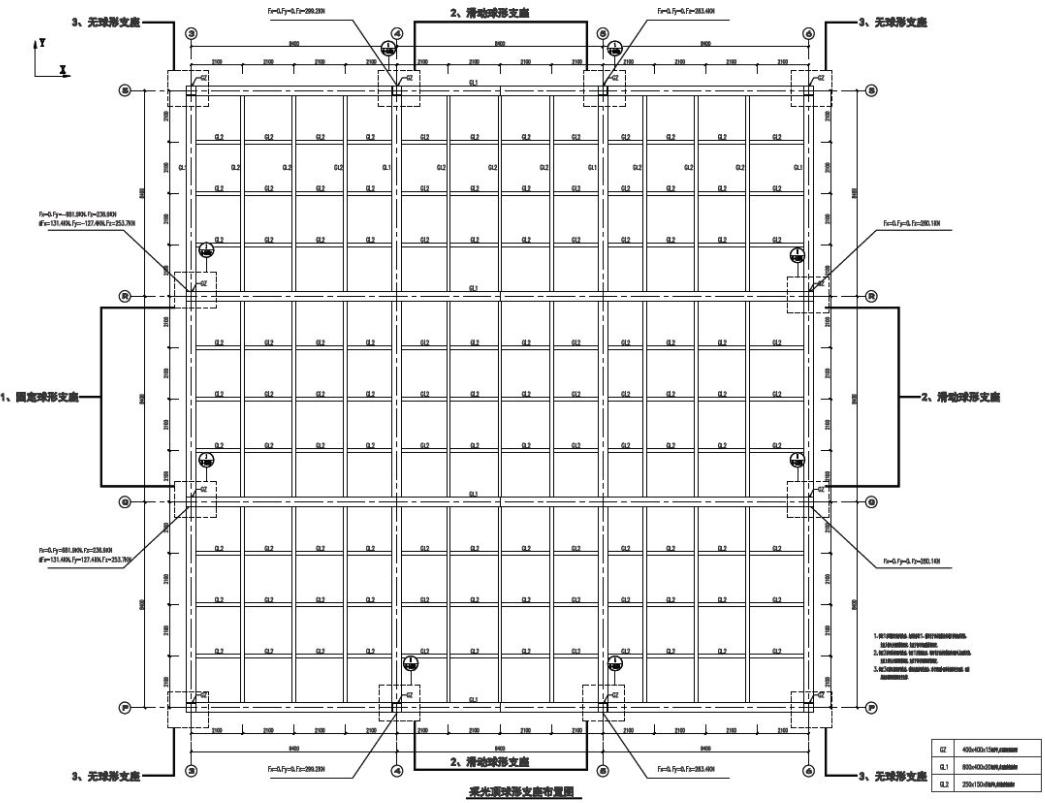
设计师优化后设计方案为:现行施工方案在原现场实际施工方案上进行改进,支座181、177采用固定铰支座,四个角部支点释放,其余支座采用双向滑动铰支座,详见图5。

图5 变更设计球形支座布置图
|
二 |
改进后受力情况分析 |
内力包络及统计情况,详见图6。

图6 按轴力N最大显示构件颜色(kN)
|
三 |
更改设计前后受力情况合理性分析 |
不难发现,经过重新设计,几个重要受力点如单元号177、178、179、180杆件轴力得到很大改善,从最大值1452.3KN,减少到365.5 KN,减少比例为75%,整个结构受力更加均匀、合理,没有再次出现某些结点杆件轴力明显偏大的情况。
轴力N最大(小)的前4个单元的内力(单位:m,kN,kN.m),详见表3。
表3 轴力N最大(小)的前4个单元的内力一览表
|
四 |
实体改进结果 |
经过重新设计并提供了变更设计后的施工图,承包人对部分重要部位重新进行了返工处理,按照设计要求增设了固定支座、滑动支座,于2017年11月顺利完成。经过2017-2018及2018-2019两个年度的冻融循环,以及2018年度夏季的高温考验,整个结构稳定,没有出现其他意外情况,顺利通过竣工验收。

伍
审图流程情况回顾
审图报告主要信息提示:并没有对此部位的受力合理性分析,指出其存在的问题,使得后续问题出现的概率,缺少了一层保障,没有严格贯彻国家住建主管部门相关审图要求。
设计单位内部,经过调查回访,主设计师设计经验不足,认为钢结构与土建主要承重结构只要能够正常固结就可以了,主任设计师等到发现问题,已经悔之晚矣,这是产生设计质量问题的组织层面原因之一。
建设单位,受制于人手少等制约,没有对主要构件受力原理进行充分复核论证,认为既然通过设计招投标,并且经过正规图审,图纸质量是值得信赖的,犯了经验主义的错误。
项目内部图审,没有意识到问题的严重性,没有对图纸进行认真分析复核,致使问题从设计阶段就“带病工作”,没有进行有效纠正。

陆
结 束 语
从发现问题,到开始分析问题产生的原因,最后重新找到解决问题的措施和办法,本项目幕墙采光顶钢结构前后共耗费了7个月时间之久,如没有上述问题存在,本项目的总体建设推进情况可以大大提前,反之成为了制约总体进度的一个致命因素,经验教训不可谓不深刻。
严格执行审图各项规章制度,对于设计单位自身来说,建立健全质量保证体系,不仅仅依据设计经验进行设计,尤其注重受力合理性分析,从设计角度进行自身严格把关,“总师室”等内部审图部门一定要充分履行审核职责;对于建设单位来说,善于发现问题,要经常性的用怀疑的眼光看待设计成果,在繁忙的工作中,保持清醒头脑,轻易不犯“经验主义”错误;项目代建、监理单位,必须认真执行“内部图审流程”,各专业监理工程师(代建工程师)各司其职,严格把关;审图单位,不仅仅严格审查强制性各项设计要求,对受力合理性进行充分论证,力求最后一关把控设计图质量。各方齐心协力,力保施工设计图质量,从源头上把控工程质量,造福社会。
参考文献
[1]
中华人民共和国国务院令第279号.建设工程质量管理条例[S].2000-1-30
[2]
住房和城乡建设部令第13号.房屋建筑和市政基础设施工程施工图设计文件审查管理办法[S].2013-4-27
[3]
张亮. 刍议建筑施工图纸会审的重要性[J]. 华夏地理.2014(8):152-153
作者:温向阳 梁拾念
本文为作者投稿,经作者授权发布。
|
✎ |
如何选择既节能又环保的医院热水供应系统?杭州市丁桥医院这样做 |
|
✎ |
中医院在新改扩建过程中应如何传承我国中医药文化?以杭州市中医院为例~ |
作者简介

温向阳
杭州市卫生事业发展中心规划发展和项目管理处处长,工程硕士,高级工程师,交通运输部监理工程师、造价工程师。
主持和参与浙江省、杭州市建设工程系列规范、标准和实施方案等文件的起草和编制工作。发表学术论文10余篇,参与编撰5部专著,参与2项浙江省地方标准、1项团体标准的制定。分管建设项目多次获得国家级及省级奖项。参与的科学技术项目研究共计8项,各有1项达到国际领先、国内先进水平,4项达到国内领先水平。
具有20多年交通土建工程管理经验,10年医院建设经验。熟悉各类规范,对医院工程前期策划、总体与医疗工艺规划、项目设计、工程造价、工程招标与政府采购、施工管理、信息化与节能建设等医院建设项目全流程方面拥有深厚的知识积累和丰富的工作经验。
END

筑医台资讯邀请行业专家,第一时间对最新防疫相关标准进行专业解读,供各位同行交流学习,请在本公众号对话框输入“标准”查看专题。
往期干货
国内案例 国外案例
医建资料 医建干货
医建前期筹备计划书
医院建设人进阶手册
查找更多您需要的内容请按以下流程操作!
