过来人的心得总是值得我们新手去参考和学习,装修的糟心事也不是一两件能说的清楚的;只有通过不断的学习和了解,总结他人经验,融合自己喜好,最后得出自己的“家装成果”。
这次小编总结的风格和小区都是马鞍山热门小区之一,风格也是各不相同,都是业主自己一步步打造成的家。
——中国古典文化的韵味
伟星蓝山
面积:145平
风格:新中式
装修形式:全包

设计亮点:业主自身很喜欢中式古典文化,这也是他们一家四口的第一个新家,想让孩子和他一样在生活中体会中国古典文化;而设计师也是一位爸爸,在与业主沟通时,体会了业主为了孩子和家人的心情,而在沟通中产生的契合,让业主选择了这家装饰公司和设计师。整体的风格规划是业主和设计师的沟通之下得出的成功,后期的软装搭配都是由业主亲力亲为一件一件添置而来的,有的是网购,有的是实体店中买的。




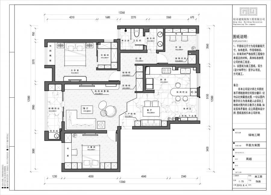
——独特的拼接设计
绿地三期
面积:130平
风格:简约风
装修形式:全包

设计亮点:说起来业主与设计师的相遇也是一种缘分,在经过多家对比之后,甚至是放弃其他家定金的情况而选择了这位设计师,其中最大的缘由是,业主被设计师的设计所征服,说起搭配很多人都可以侃侃而谈,但是把想法搬到现实来却不是谁都可以做好的;而这家的地板与瓷砖拼接,客厅的背景墙设计,用大理石取代了传统电视柜,餐厅的卡座与储物融合,以及儿童房的飘窗改成书桌;对于业主来说,实用性和美观性都是符合他们的需求,那才是业主所需要的设计。




——简约复古风
钟鼎悦城
面积:124平
风格:简约复古风
装修形式:全包

设计亮点:业主是一对90后小夫妻,他们热爱生活,享受文艺气息。这是他们的第一套房子,他们即将登上婚礼的殿堂,幸福从这里出发,女主人在设计师的建议下,选择了简约但充满复古色彩的美式轻奢风格,作为婚房的主基调。设计师以轻装修,重装饰的原则,通过家具及软装搭配,营造出温馨且具有时尚感的空间格调。




——去繁留简简约风
深业华府春天里
面积:123平
风格:现代简约风
装修形式:半包

设计亮点:将简约的核心利用到了最大化,屋内以白色调为主,就算阴天也可以看到阳光的照射,而储物空间的规划,对于普通家庭的日常来说,确实是非常实用和省心的。该户型的格局非常好,浪费的地方很少,对于设计师的规划和细节处理,业主是非常满意的。





小编总结:
好看的风格千万种,最主要还是要适合自己,但是也不要盲目的去选购,可以从“前辈们”的经验中得出适合自己的方案,省去了走弯路,花冤枉钱的步骤。