案例基本信息
☑ 占地尺寸:17x21米
☑ 占地面积:357㎡
☑ 建筑面积:322㎡
☑ 建筑情况:5室1厅3卫1餐厅1厨房1车库2杂物间
☑ 建筑结构:砖混结构
☑ 造价估算:29万
设计说明:
大部分农村家庭对于住宅外观的要求不高,甚至担心太过突兀,无法融入周边环境,于是传统的合院式民宅设计受到了大家的欢迎。

效果图

住宅主体对称,人、车入口建于东西两侧,出入安全便捷。

建筑一层阳台屋檐为二层外走廊,车库屋顶设计成露台,合理利用了建筑每一部分空间功能。


院落是普通民宅的重要组成部分,该住宅分前院和后院,前院迎客休闲,后院隐蔽私密,两个小的杂物间方便存放不宜风吹雨淋的物品。
平面图
一层两个卧室安排在东面,与西面厨房锅炉房等分隔,动静分离。

▲ 一层平面图
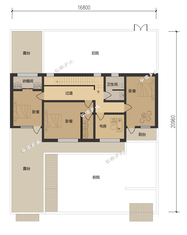
二层有三个卧室和一个书房且均向阳,采光充足,楼梯建在中间位置方便各房间上下楼。

▲ 二层平面图
立面图

▲ 南立面

▲ 北立面

▲ 东立面

▲ 西立面
这所住宅有独立的车库与杂货间,这使得院子相对宽敞整洁,露台的设计也增大了室外活动面积,是吸引业主在农村建房的一大特点。
查看更多建房设计案例,关注乐建乡土头条号 | 微信公众号:乐建乡土