
▲ 日本四叶草之家 ©MAD
说起马岩松设计的幼儿园,你可能会想到他在北京做的四合院幼儿园项目,灵动的曲线+炫丽的色彩,让其成为了城市中的一大亮点。

▲ 四合院幼儿园 ©MAD
那你知不知道,马岩松在此之前,还有一个幼儿园成名作——日本四叶草之家。这是MAD在日本的首个作品,还获得了Fast Company“空间”类年度创新大奖、“最佳幼儿园”、“年度十佳少儿空间”等大奖。

文末附大院幼儿园全专业施工图CAD合集
MAD的日本首作——幼儿园
四叶草之家是一座由自用住宅改建的幼儿园。出于造价的考虑,马工决定将原有木结构重复使用,运用到新的设计中充当“骨骼”。为了增加建筑面积,马工还为木结构盖上一件“白色外衣”,也柔和了木结构的硬朗感。




▲ 日本四叶草之家 ©MAD
建筑的表皮有一个弯曲弧线,主要用来模糊屋顶与墙的边界;同时上面还有不少窗洞,将自然光引进来。



▲ 日本四叶草之家 ©MAD
在建筑内部,你可以清晰看到整个房子的木结构,它既通透又有围合感,能够灵活地配合不同的教学内容。而在顶层的屋顶处,马工加入了书架与阶梯,让其也变成一个学习场所。




▲ 日本四叶草之家 ©MAD
这是MAD团队第一次接到的日本建筑项目,他不禁感慨道:日本设计幼儿园要求非常精细,然后要负很大的责任。而且当时正值东京奥运会建设阶段,没有什么施工团队可选,最后在几番周折之后,项目才正式落地。


▲ 日本四叶草之家 ©MAD
再看看日本的幼儿园
马工这次设计的“四叶草之家”十分符合日本对幼儿园空间的审美。
专注于幼儿空间的日本建筑师日比野拓认为,幼儿园不是游乐场,在设计上要尽量单纯,而不是充斥大量五颜六色的图案,孩子需要在接触各种事物的过程中,培养敏锐的感知和表达能力。

为了帮助你更好地理解日本幼儿园“建筑与教育”的精神内涵,我找了两个案例供你深入了解。
丨KM幼儿园,日本大阪丨


▲幼儿园位于较小的场地中©日比野设计公司
KM幼儿园由日本大阪一所荒废幼儿园改造而成,设计师主要面临两个问题,一是由于场地有限,孩子们缺乏锻炼的空间,二是如何帮助孩子学习和适应幼儿园的环境。
针对第一个问题,设计师将建筑的一部分通过坡道和游戏场联系起来,引导孩子自发地去运动,形成从屋顶到游戏的循环空间。



▲充满绿植的游戏场©日比野设计公司
为了解决第二个问题,设计师不仅利用纺织材料制作了教室的部分墙壁、签到板、地毯等物件,还将材料融于玩具,让孩子们在与玩具互动时,加深对身边环境的学习和理解。



▲游戏场与食堂无缝连接©日比野设计公司
幼儿园的室内空间没有五颜六色的墙壁,更多的木质的墙壁和地板,整个空间给人亲切温馨的感觉。



▲用纺织材料做成的物件©日比野设计公司
丨KO幼儿园,日本丨
它也是日本的一个幼儿园改造项目,由于孩子们平时由汽车接送,日常活动身体的机会减少,再加上手机游戏和室内游戏增多,孩子们在室外游玩的机会也随之减少,设计师试图通过游戏将幼儿园改造成运动健康的乐园。



▲KO幼儿园©日比野设计公司
设计师在园内设置了14个游戏场所,孩子们在游戏过程中可以锻炼到跑、跳、攀、爬等基本动作。
原先平坦的庭院限制了孩子们的活动,新的园不仅拥有天然的草坪和山丘,还能为孩子们创造出新的游戏。



▲KO幼儿园©日比野设计公司
园内外设置的游乐场所,不仅能引发孩子们身体做出相应动作,还能提升孩子们创造游戏的动力,让孩子们健康成长。


▲KO幼儿园©日比野设计公司
针对日本幼儿园的思考
看了上面2座日本幼儿园之后,我们能从中学到哪些东西呢?我总结了下面几点:
1.模糊室内外的边界
现代儿童更多的时间是在室内玩耍,而他们在室外的玩耍同样重要,在室外配置自然元素,可以激发儿童的兴趣,促进他们学习。

©日比野设计公司
2.设计简洁,使用朴素的材料
相对于五颜六色的材料,或许儿童更喜欢朴素的颜色,尽量保持材料原本的颜色,简洁的设计正是为儿童留出创作空间,引出他们自身的创造力。



▲ 日立市花山认证儿童中心 ©三上建筑事务所



▲ FS幼儿园
©HIBINOSEKKEI + Youji no Shiro + KIDS DESIGN LABO
3.注重儿童运动,健康成长
对幼儿园来说,运动空间非常重要,日本幼儿园在这方面做得就很好,提供更多跑、跳、攀、爬的空间才更有助于儿童健康成长。



▲ 埼玉Yutaka幼儿园 ©SUGAWARADAISUKE



▲ 东立石幼儿园 ©Aisaka Architects’ Atelier
日本这些幼儿园有很多值得借鉴之处
你觉得幼儿园应该是什么样子呢?
关于幼儿园的更多想法
欢迎你们在评论区踊跃探讨
或许我们日常所做的幼儿园没有那么多的创新性,更多关注于项目的落地性和经济成本,因此,做幼儿园项目的基本功就显得尤为重要。



▲ 吉野托儿所和幼儿园 ©手塚建築研究所
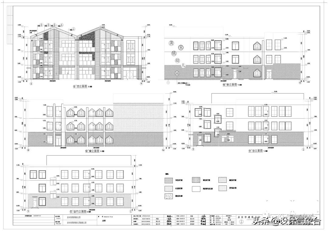
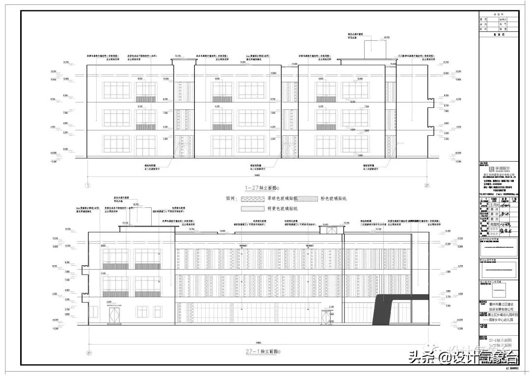
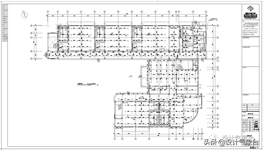
所以我为大家准备了大院幼儿园全专业施工图CAD合集,里面包含6班,9班,12班多种类型的幼儿园,还具备各专业的施工图CAD,不仅能让你学习到施工图的规范画法,还能提升做幼儿园项目的效率,可谓事半功倍,快来获取吧~

大院幼儿园全专业施工图CAD合集

资源目录
01-【6班幼儿园】全专业施工图CAD合集
02-【9班幼儿园】全专业施工图CAD合集
03-【12班幼儿园】全专业施工图CAD合集
【6班幼儿园】全专业施工图CAD合集
包含建筑/结构/水暖/弱电/装饰/景观/挡墙,共5套








【9班幼儿园】全专业施工图CAD合集
包含建筑/结构/水电/智能化/景观,共4套










【12班幼儿园】全专业施工图CAD合集
包含:建筑/结构/暖通/电气/给排水/智能化,共6套










资料获取方式
私信回复: 001
即可领取资料
设计气象台,广受90后年轻设计师喜爱的设计黑科技平台。全网最新的建筑/景观/规划/室内设计资源、知识干货,让你满载而归。如果你喜欢设计,请关注我们。