现在人们的生活都好了,城里的房子买的都差不多了,再买就该交房产税了,市里的房子平常住,但是节假日没有休闲的地方,于是又买了别墅区的别墅。别墅贵点也就认了,但是户型实在是太差,住着实在是不舒服,还是找个宅基地自己盖最踏实。这样盖出来就是完全符合自己生活习惯的别墅了。

虽然投资几十万,平常也不去住,但这确实是每一个农村出来的人必须做的事,因为自己的根就在哪里,无论走多远,也不管有钱没有钱,回乡盖一栋别墅是每一个农村人的夙愿。
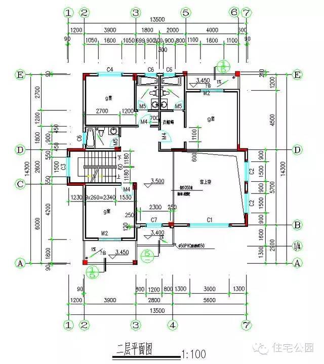
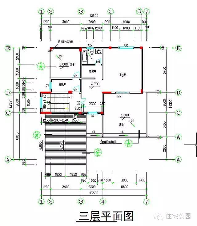
那么,盖一栋别墅到底需要多少钱呢?今天我们就结合这个案例给大家算算:效果图如上,平面图如下:

一层玄关,大客厅,一个主卧室带套卫,非常实用,提空客厅非常大气,二楼多个房间,适合农村多亲戚的特点,不像城里人那样,客人来了都安排在酒店,不够亲近。

三层有大大的露台,也有个凉亭,非常适合农村生活习惯,洗衣房在楼上方便晾晒:

这个设计图是免费的,网上现在有很多免费的图纸可以找,但是定制的比较贵,大家一定要小心不要贪便宜。如果是现成的,免费的是很有可能的,因为就是复制一份;如果是定制,设计师忙活一个月,没有几千块钱是搞不定的。不过盖房子是大事,这钱是值当的。
有了图纸,盖出来效果就是不一样,但是他的最大的败笔是贴了瓷砖,现在很少人这样做了,也许他耐脏,但是确实有点土气,不好看。现在大家普遍采用真石漆等外墙涂料,一般也是连工带料100元一平米,比瓷砖贵不了多少。

下面我们就来算算盖别墅需要多少钱:
以300平米为例,占地120,留个大露台,3层300平米,农村的最佳面积。砖混结构,钢筋每平米30公斤,大概9吨,每吨4000块钱,大概3.6万。红砖,大概15万匹,4毛一匹,大概6万块。砂石,大概100方,150块一方,大概1.5万。水泥150千克每平米,大概4.5吨,1.35万。外装430平米,按真石漆100计算,大概4万块。这部分是属于像别人购买的部分,大概26万。也就是说光材料费就得16万。

除了材料费还有措施费,比如脚手架,各项器具,大小型都有,搅拌机卷扬机,挖机泵车租赁等等,还有易耗品模板,这些加一起应该在3万左右。
最大头是人工费,现在一般在400元一平米内,因为经常是异地调派,车马劳顿,所以本地包工头300可以接,外地专业施工队300打死也不敢接。因此这部分费用应该在12万左右。

好了,全部花费加一起,成本大概31万。也就是说,如果是自己有时间,懂施工,材料人员都是自己调派,这样应该31万就差不多了。所以说网上说的30万盖别墅,就看多大了,3层打死施工队都不够。
如果是找专业施工队,那这个价格够不够呢?当然不够,为啥?因为成本高,专业施工队有一个项目经理,工资至少1万一个月,一个项目最快3月完工,这就加了3万,还有施工队利润,请人帮自己干活,得让别人赚点吧,最少10%吧,又加了3万,此外还有安全风险费用,自己请人出了问题自己得全部兜底,如果包给施工队就不用自己承担这个风险了。
说了这么多,到底盖一栋房子需要多少钱的?300平米,40万,不能比这个更低了,如何省钱?自己亲自干,如果自己懂技术的话,自己愿意承担全部风险的话,可以省10万。

你愿意选择哪种呢?请专业施工队包给他们呢?还是自己花力气请点工自己动手干呢?
微信公众号:新型房屋,500套别墅图纸,别墅施工专家答疑。