
▲ 点击“火柴设计联盟”,关注设计互动平台 每天更新,喜欢的可以点赞关注转发哦!
滑到文章底部获取免费资料
《万达设计院》┆『合肥万达诺富特酒店』效果图JPG+PDf┃设计施工图DWG+PDF┃物料详解PPT+PDF┃招标图纸DWG+PDF┃机电灯光声学幕墙图DWG+XLS+DOC┃官方实景JPG┃2.22G〖火柴设计联盟〗第1962期
▼ - 部分作品阅览 -
1.项目概况
合肥万达诺富特酒店位于合肥万达文化旅游城内,与室外主题乐园、室内恒温水世界、互动电影乐园、国际电影城及湖岸国际酒吧街等众多休闲娱乐设施组成了一座大型“徽文化”旅游度假综合体,为宾客带来前所未有的休闲体验。

2.资料截图


3.规划彩图










4.概念及效果图



























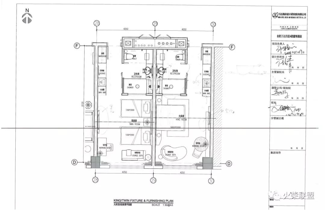
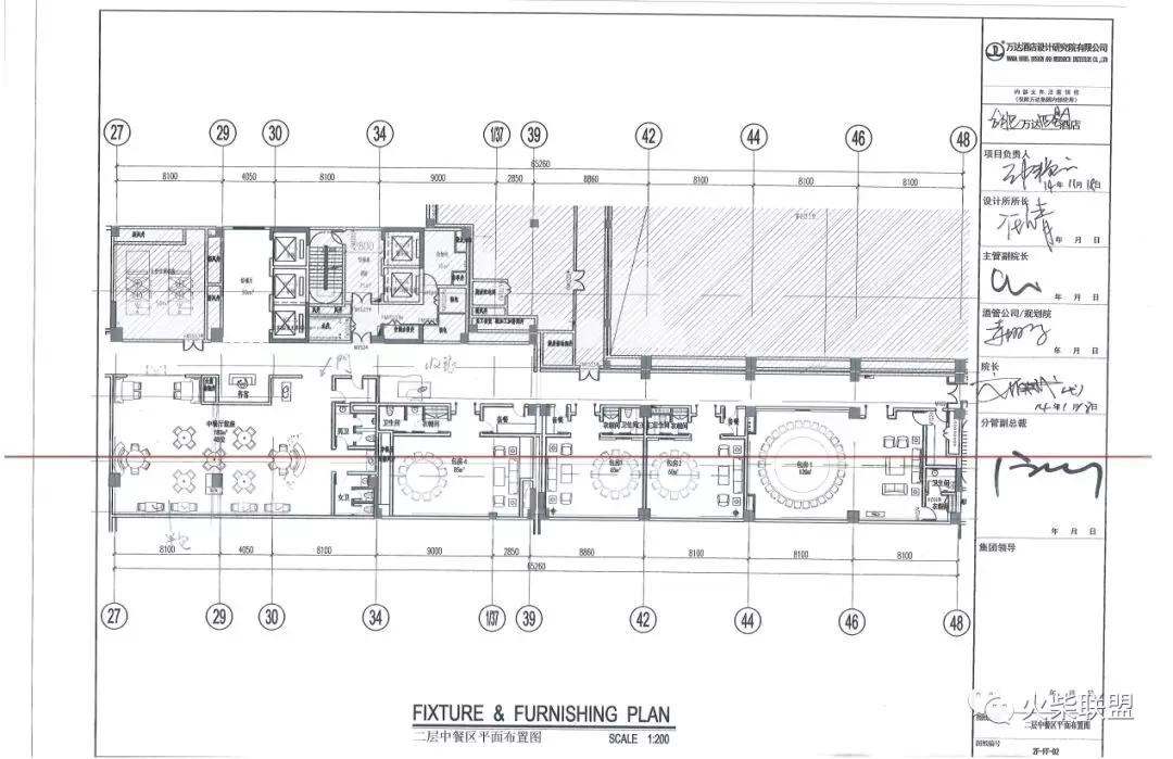
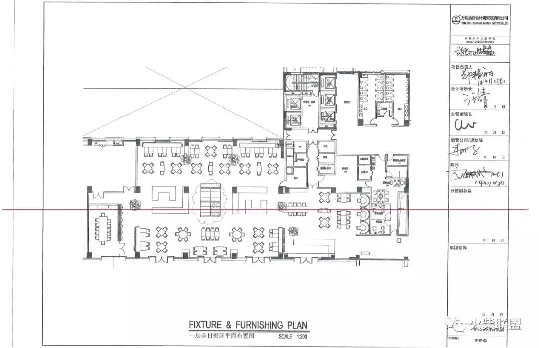
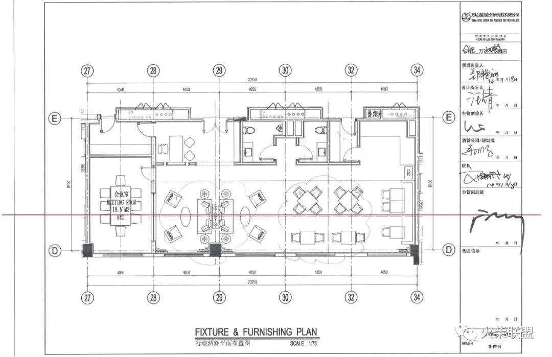
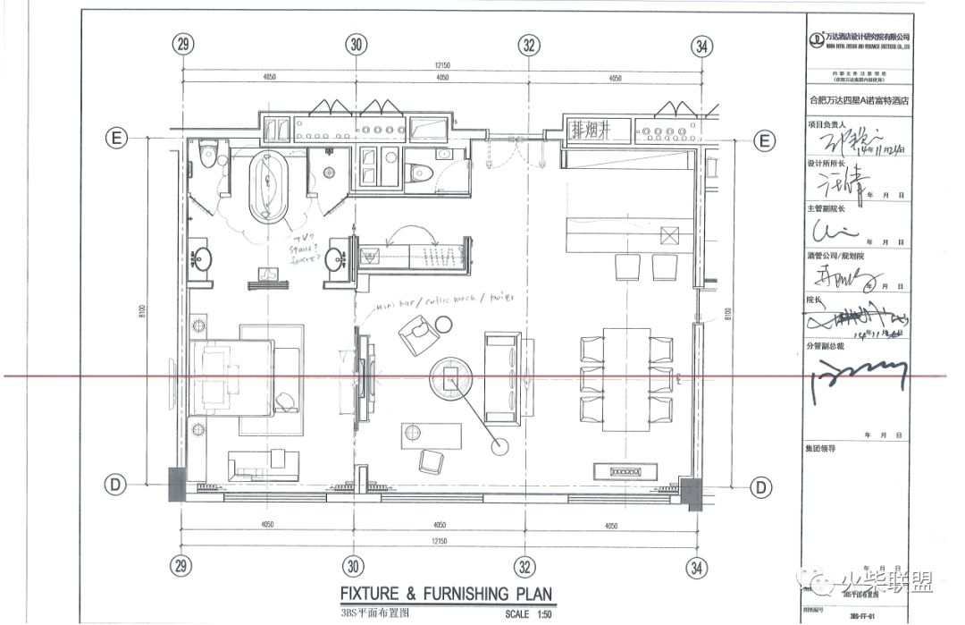
5.施工图样图


















徽派建筑风格的合肥万达诺富特酒店以简约而优雅的基调奠定独特待客风范。并与其他四座酒店组成群落,环湖而建,将“粉墙黛瓦月洞桥,月沼碧波嵌砖雕”的特点巧妙融入三雕艺术、宏村画桥等标志性景观。
【作品名称】:『合肥万达诺富特酒店』
【作品内容】:效果图JPG+PDf┃设计施工图DWG+PDF┃物料详解PPT+PDF┃招标图纸DWG+PDF┃机电灯光声学幕墙图DWG+XLS+DOC┃官方实景JPG
【文件格式】:DWG,PDF,JPG,PPT,XLS,DOC
【资料大小】:2.22G
【免费获取方式】
关注转发加评论后私信“1962” 即可获取此套完整版资料
免责声明:
以上图片及资料内容来源于网络,由我方整理,版权归原作者及其公司所有;
本资料仅供学习研究之用,不得用作于商业用途,若此图库侵犯到您的权益,请与我们联系删除;
本文章版权归本头条号所有,未经同意不得随意转载 ,若恶意侵权将追究其法律责任