今天小编分享的案例是苏州60㎡的小两房,通过巧妙地规划设计,一家六口轻松入住。
经典案例
面积:60㎡
坐标:苏州
风格:现代简约
费用:15万
亮点:全墙面定制柜+多功能客厅,不浪费一平米的空间。

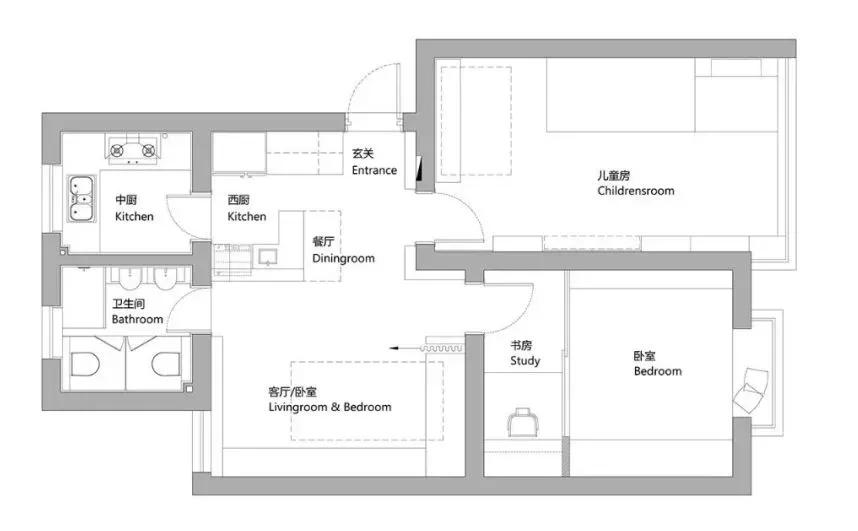
户型图

60㎡两居室要住三个10岁以下的孩子,两个成人,还有一个75岁的老人,这对空间规划要求很高。
玄关

白色与原木色搭配,营造安静温馨的玄关氛围,视觉空间也被放大了。发光灯膜和木饰面吊顶的运用让玄关变得明亮且宽敞。

入户的左侧定制墙面收纳柜,不仅可以遮住强弱电箱,同时兼备收纳雨伞钥匙等杂物的功能。
客厅

改造后的客厅兼具多种功能,白天可以作为孩子的活动场所,晚上就变成老人的卧室。

定制墙面收纳空间,电动床及折叠隔断隐蔽时与墙面融为一体。右侧卡座区上方为玻璃手写板,3个孩子可以在上面尽情创作涂鸦。

收纳柜打开,你可以发现储物空间特别充足。右侧的橱柜放6把折叠座椅和可变餐桌的桌板,卡座下方是六个收纳凳。

原客厅光线不足,设计师在客厅与天花板之间增加一条发光灯膜,均匀柔和地提供光照,还在空间上界定分区。

隐藏式隔断实现客厅与卧室功能转换,客厅在夜间可变化为卧室,供老人居住。

电动床的使用非常方便,老人只需要用遥控器就可以把床变出来。
厨房

改造后的中厨区宽敞明亮,收纳充足,能满足传统中式菜肴的制作需求。

西厨区与客餐厅相连,嵌入式冰箱、烤箱、壁挂洗衣机还有小吧台,不仅可以制作西餐,还能满足清洗衣物的需要。

西厨旁边是一张可变餐桌,平时可以作为早餐台使用。


家庭聚餐时,餐桌可以延长至2.5米供8-10人使用,多功能家具,适合小户型。
儿童房

儿童房打通阳台,使用面积变大,给三个孩子通透明亮的生活空间。

折叠黑板墙可以让孩子自由涂鸦,翻下来后还能当桌子使用。敞开式的柜子和洞洞板设计满足收纳和展示的需要。

小帐篷设计简约而不简单,为孩子打造一个游戏的小角落。

上下铺的小楼梯还设计了储物功能,节约空间,而且使用很方便。
卧室

双胞胎小宝宝目前还需要和爸爸妈妈一起睡觉,榻榻米卧室与飘窗相连,空间超级宽敞,能满足一家人睡眠的需要。

卧室拥有充足的收纳及陈列空间,整面墙的柜子,再多的东西也不怕。

飘窗摆放手风琴式折叠茶几,节省空间。平时可以在此休息喝茶,享受岁月静好。
书房

主卧隔出独立的书房,用玻璃推拉门作为隔断。这里同时也能作为妈妈的梳妆台,化妆镜藏在桌板底下。
卫生间

4㎡卫生间设计了双台盆,双马桶,同时拥有淋浴间,儿童浴缸及老人洗澡用的座位,最大限度地满足家庭成员的生活需求。
结语
小空间大设计,全墙面定制柜和多功能家具的使用,让空间拥有更多的可能。

编辑留言
欢迎大家