平面图是什么呢?按规定的符号和比例缩小而构成的相似图形,称为平面图。在平面图上,各种图形和面积都应保持与实物完全相似,各个方向的比例尺统一,并且使用规定的符号缩绘在图纸上。可具体表示某一平面内的总体布局,道路情况以及各建筑物之间的位置情况。
平面图常见用途
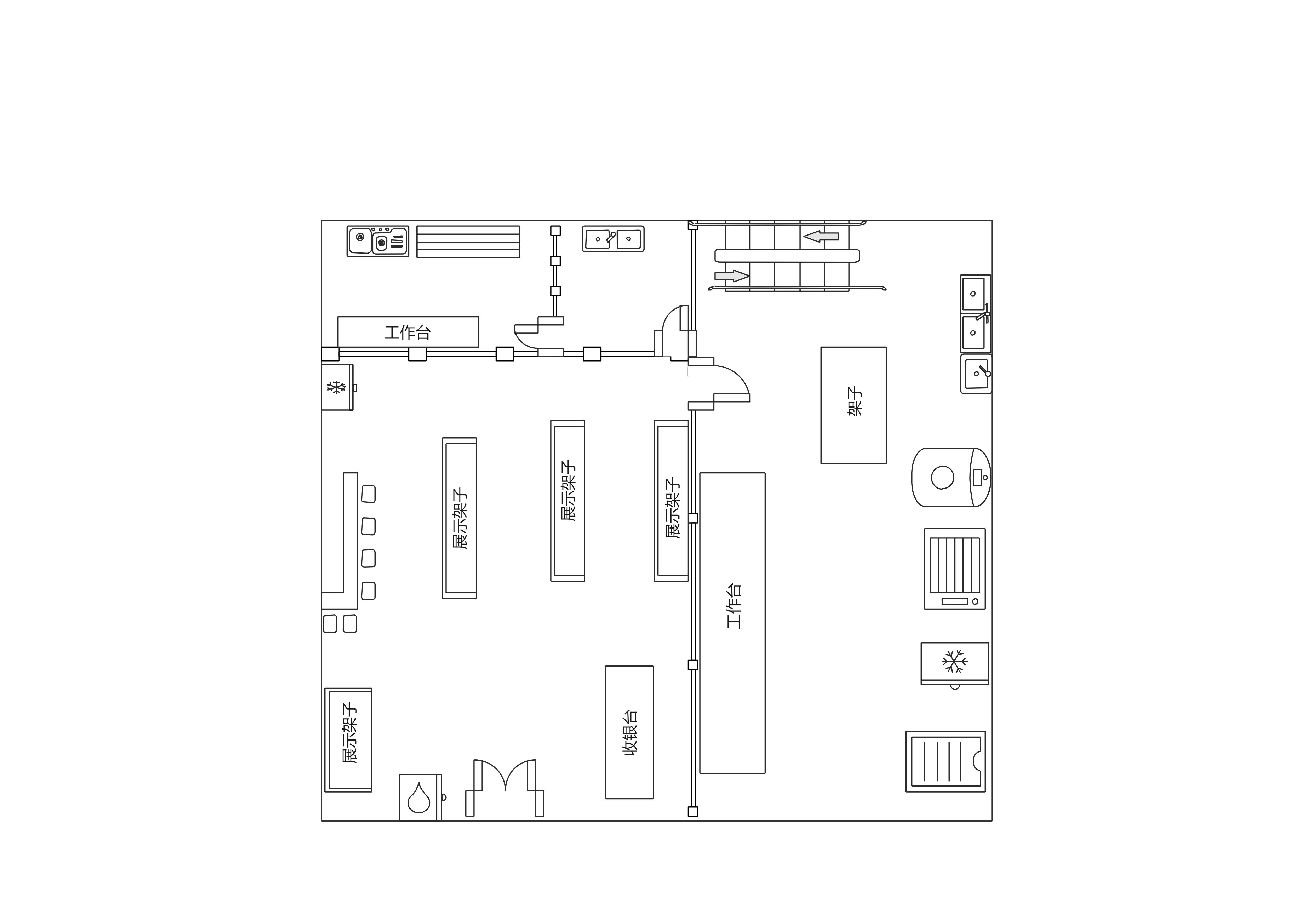
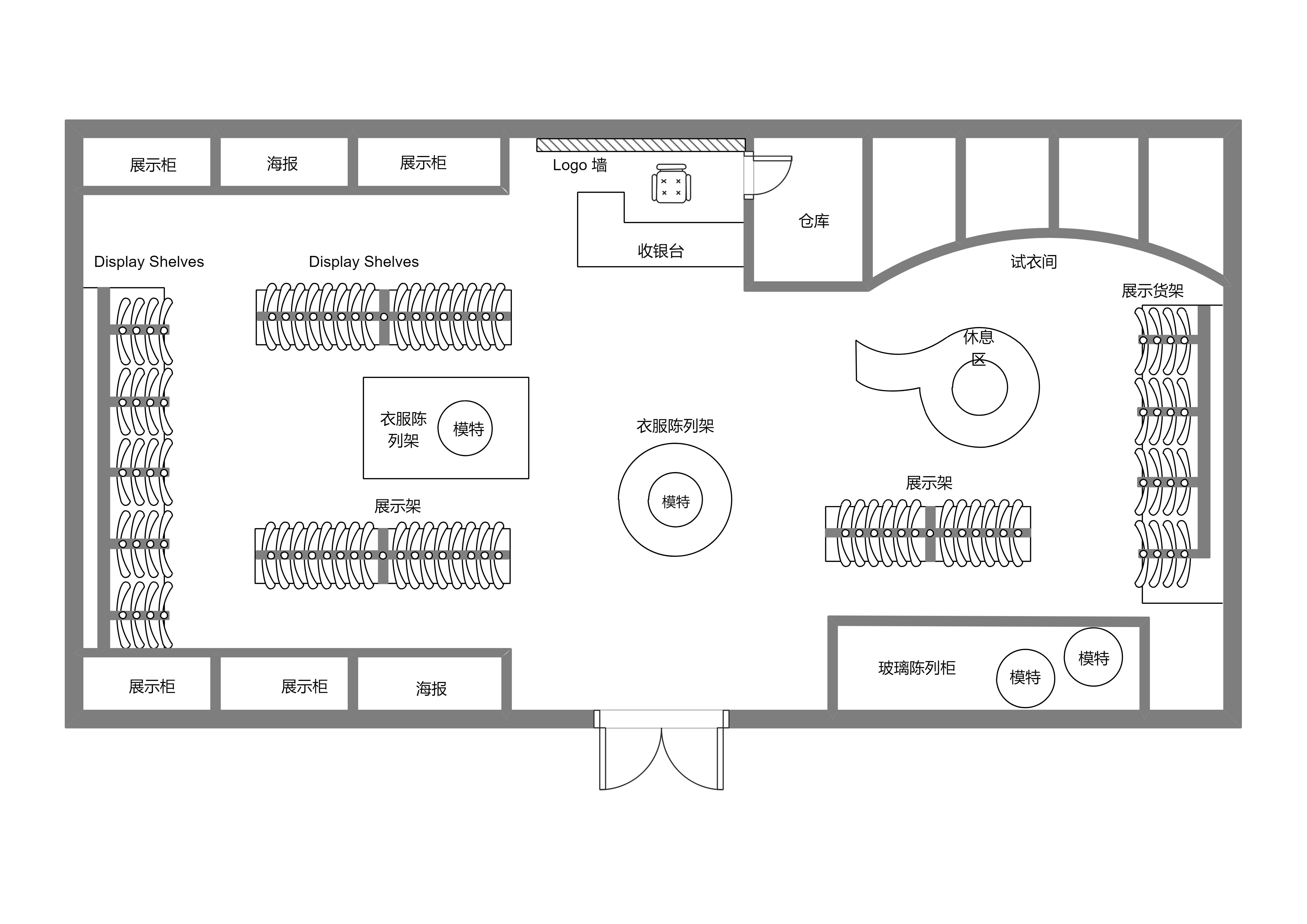
清晰表达出建筑的平面布置,内部空间布局,提前对要施工的某一空间进行平面设计,可以更好的布置空间。平面布置图除了用在用在建筑图上,还可用于家居规划、办公室布局、电气和电信规划、座位图、安全和门禁平面图、花园设计、消防疏散图、天花板反向图、暖通空气、立面图、衣柜设计等。1、办公室布局可以将整个办公室布局做一个基本的平面布置图,然后购买适合使用的办公装饰品,在实际的操作过程中可以更好的利用空间,在做任何设计之前都可以用平面布置图做出合理的规划,作为设计师还可以更好的为雇主展示出完整的设计理念。2、展厅布局图展厅布局图,可用于展厅功能的房屋设计和验收,可根据整个展厅的空间情况进行放置,更直观的表示出展厅中需要用到的设备。
平面图通用模板
以下均为专业平面图的通用模板,每一个模板都可以在亿图图示模板中快速找到并一键套用。



平面图模板套用方法
平面图的模板套用方法十分简单,通过以下几个步骤,即可轻松绘制出一幅专业实用的平面图。第一步:点击*载下**“亿图图示"软件,或访问在线版亿图图示。启动软件,开始作图!
第二步:新建平面图。依次点击“平面布置图”-“建筑平面图”。然后从例子库中,选择一个模板,点击打开平面图模板。

第三步:先点击画布中的平面图,再点击左侧属性面板中的符号库,在设计平面布置图设置各种框线的时候拉动的过程中还会自动显示各部分的长宽高,可以显示比例,有所需的比例尺和、方向、图例和标注。

第四步:双击文本框,替换平面图模板里的文字。

第五步:完成平面图的绘制后,可以点击右上角的保存、*载下**、打印、分享等按钮,对绘制好的平面图作品进行存储。也可以将作品导出为图片、PDF、PPT等格式。

平面图绘制软件---亿图图示
亿图图示是一个设计型的可视化工具,在任何场合都可以用来展示创意和思维。软件内置260多种绘图类型和3000+模板素材可以帮助办公人士快速绘制平面图、平面布置图、家居规划、办公室布局、电气和电信规划、座位图、安全和门禁平面图、花园设计、消防疏散图、天花板反向图、暖通空气、立面图、衣柜设计等模板。如果对模板不满意还可以自行随意拖拽符号库里的图标到需要的位置,作图过程简单,作图效果专业。正在做家装设计的你可以利用亿图图示和自己的家装设计师高效沟通想要设计的框架,作为一名学生的你也可以通过其交各种平面设置图作业。有全新的的房屋平面设计,拖拽式操作,自动对齐和吸附,操作可谓行云流水,除了平面布置图,还有平面设计图。
为什么选择亿图图示绘制平面图?
1、大量模板可供选择 不仅能满足我的基本作图需求,还可以美化我的设计,让绘图变得专业,设计同一款平面布置图,能比其余设计者有更好的视觉体验,还可快速放大或缩小比例尺。 2、符合国人使用习惯 不仅界面是全中文的,而且符号库中的图示也是更加贴近于国人的日常物品设计,各种图示图例都比较标准。设计起来简单快捷。 3、多平台,易适配,易查看 亿图图示可以直接使用网页版本,支持Windows、Mac和Linux系统(包含国产操作系统),文件查看分享更便捷。 4、符号作图规格 有各种规格的门和窗户,基本的墙体框架和结构,各种卧室浴室内置物,可快速拖拽,可快速拖动各种符号以及连接线,还可快速设计比例,自动对齐和吸附。 5、兼容性强,支持多种格式 一键即可将图表转化为Word、Excel、PowerPoint、PDF、SVG、PNG等格式,并支持Visio格式的批量导入和导出,个人喜欢将其导出为便捷式网路图片,快速实现图示共享,手机电脑都可快速查看。