室分系统组成
室内分布是指将基站信号引入室内,解决室内盲区覆盖的一种信号覆盖方式。室内分布系统主要由信号源和室内分布系统两部分组成 。

信号源:主要作用是放大基站信号(微蜂窝直接提供信号) 以满足覆盖需求,以及放大手机上行信号传送至基站(或直接传送至微蜂窝)。主要包括微蜂窝及直放站,直放站又分为光纤直放站、无线宽频直放站、无线移频直放站。所有类型的信号源均需要供电,均为有源设备。
分布系统:其主要作用是将信源所提供的信号进行分配,使信源信号均匀分布至需覆盖区域。主要包括干线放大器、功分器、耦合器、同轴电缆以及室内天线。其中,干线放大器为有源设备,其余均为无源器件。
室分演进历程
室分主要经历了无源分布系统、有源分布系统和新型数字化室分的演进历程。
最早的室分系统称为无源分布系统,射频信号直接通过耦合器、功分器、合路器等无源器件进行分路,由馈线将信号传输到分布于室内的天线上。

随后,室分系统进入有源分布系统时代,通常分为传统光纤分布系统和多业务光纤分布系统。


进入5G时代,室分系统开始向更扁平化、更简单灵活的新型数字室分系统演进。

室分系统主要器件



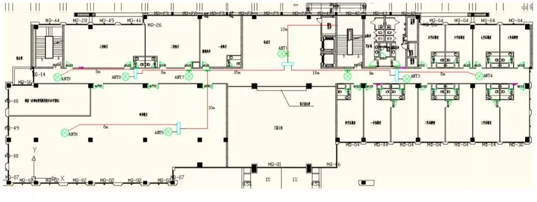
典型的室内分布图
LTE双路室分图


天线布放图

根据勘测的结果和设计规范,确定天线安装的位置,根据室内无线环境和覆盖要求确定天线的密度。
系统原理图

标明了信号传输的路径。射频信号从室分系统的信源设备发出, 经历各种器件、电缆的损耗,直 至天线口的输出功率。
室分规划基本原理
在4G时代,LTE室内覆盖一般和2G/3G/WLAN系统合路,需考虑同步覆盖,例如LTE和3G合路共用天馈分布系统,两者边缘覆盖场景同时满足规范要求。

在室分系统中,信号源通过耦合器、功分器等器件,经馈线将信号均匀分布到室内各个角落,需通过仔细的链路预算,尤其在合路系统中,频段差异导致信号在馈线传输损耗、空间传播和遮挡损耗不一致,将影响两者同步覆盖性能。
常用的损耗参数如下:

室分排障实用手册
故障定位及查询处理对照表
在排查分布系统故障时,根据不同情况采用不同的排查方式,同时携带跳线、双阴转接头、负载、功分耦合备件等,排查手机发送功率、底噪等问题时必须携带驻波比仪、频谱仪等仪器仪表,尽快定位、解决问题。

▲排障流程示意图
具体故障定位方法按故障类型可分为以下两种:
•覆盖问题、手机发射功率高:这类问题应由天馈侧向基站侧排查,对比同级的支路是否存在同样问题,找出问题的汇聚节点;
•底噪过高:这类问题应由基站侧向天馈侧排查,逐步缩小范围,定位干扰源。排查时可以分别断开各个支路,对比底噪有无明显下降,向下逐级排查;如使用频谱仪测试时,应使用耦合器馈入办法,将耦合器按上行信号方向接入分布,上行信号通过耦合器进口由直通口到达基站方向,将频谱仪接在耦合器耦合口进行测试对比。
故障查询对照表如下


▲覆盖类问题故障排查顺序图

▲手机发射功率过高排查顺序图

▲底噪过高排查顺序图
故障具体原因与处理
连接松动检查
根据故障原因定位故障区域范围后,需检查故障汇聚点附件的跳线、馈线、器件、有源设备等元器件之间的连接是否良好,具体处理步骤如下:
a)查看是否有明显断开的连接处,在连接前应检查接口内是否干净,如有异物应清理后再进行良好连接;
b)查看各个接口是否入扣到位,如有明显未拧好的接口应清理异物后,将其拧紧,确保连接良好;
c)查看问题汇聚点附近的各个接口,保证各个接口在拧紧状态下入扣深度相同,先可将各接口先行松开几扣,然后再将其拧紧,确保接口没有错扣现象;
d)如问题未解决,可使用驻波仪测试各个接口驻波比是否小于1.5,处于良好连接状态;
非设计范围器件的排查
由于补点、排障等维护原因在分布系统内接入了未设计审批或不符合规范的元器件,造成分布系统不能正常运行,处理问题时应对照设计图纸,查看问题汇聚点及其上游的器件安装情况是否与设计图纸相一致,是否存在非设计范围内的元器件,具体处理步骤如下:
a)对照设计图纸查看器件的数量、型号是否与设计相符,如不一致应及时更正;
b)部分覆盖差是因排除上行干扰而在主干路由上添加衰减器造成的,应将其拆除,并监控底噪抬升情况,如果底噪非空载情况小于-95dBm;空载情况小于-103dBm,应按规范控制底噪,详见“底噪过高排障”;

▲某站点衰减器拆除前后照片(RSCP>=-80dBm比例 拆除前平均为26%,拆除后平均为98%)
c)如发现因补点添加的非设计范围的功分器、耦合器时,应先将其拆除,提请设计院设计合理补点方案后再进行施工补点;

d)如发现因馈线路由超出设计造成功率不足而添加的有源设备时,应先将有源设备拆除,提请设计院做出合理设计变更再进行按图施工布放;
RRU隐性故障判断
由于RRU的隐性故障无法在网管系统中查询到,所以当故障涉及整个RRU覆盖范围时,应先排除RRU的隐性故障,具体步骤如下:
a)查看RRU上电情况是否正常;
b)如果故障为下行覆盖问题,应采用频谱仪测试RRU的输出是否与网管参数相匹配,一般情况室内站导频功率为33dBm;
c)如果故障为上行干扰时,可将负载接在RRU的总口上,监测底噪是否在-1O3dBm以下的正常范围内;
d)如无源分布系统手机发送功率过高,在RRU总口连接一面天线,或将分布系统中的几个天线点单独一个一个的分别接在RRU上,在天线下方进行验证测试;

▲RRU总口连接单面天线图

▲RRU分别单接不同楼层、不同位置的天线(其余接口堵负载)
e)与网管人员联系,尝试重启基站。
干放参数合理设置
分布系统中干放的参数设置应有严格的要求,设置不当容易造成覆盖、手机发射功率高、底噪高等问题,应使用频谱仪或网管软件对干放参数进行设置,具体值如下:
a)覆盖、手机发射功率高、底噪高等问题应先查询干放下行输入功率,下行输入功率应在-10dBm左右;
b)覆盖问题应查看干放下行增益设置是否较低,导致覆盖不足;
c)手机发射功率高应查看干放上行增益设置是否较低,导致上行较弱;
d)底噪问题应查看干放上行增益是否较高,导致上行太强而引入较高的噪声。

▲干放增益设置参考值
e)干放如设置完成,相应的下行输出应为设置的下行增益加下行输入电平,相应的上行输出应为设置的上行增益加上行输入电平;
下行输出=下行设置增益+下行输入电平
上行输出=上行设置增益+上行输入电平
干放故障判断方法
干放故障会造成分布无信号、弱覆盖、手机发射功率高、底噪高等网络问题,干放故障的判断步骤如下:
a)检查有源设备型号是否与设计相符;
b)检查干放上电情况,排除电路、电源模块的故障;
c)使用频谱仪和网管软件检查上下行功放工作情况,先查看上下行增益的设置值,再进行上下行信号的输入输出测试对比,输出=增益+输入;
d)使用频谱仪检测设备上行噪声是否在正常范围,测试应使用耦合器馈入办法,进行放大前后的对比测试,输出=增益+输入 为正常,如果出现输出>增益+输入 则干放噪声较高,应进行更换;

▲耦合器馈入法示意图
器件、线缆等故障判断
无源元器件的故障可以引起无信号、弱覆盖、手机发射功率高、底噪高等网络故障,在分布排障过程中,可以用频谱仪、驻波仪对问题汇聚节点的器件、线缆进行测试判定,具体办法如下:
a)查看接头、器件、跳馈线是否有明显的缺针、接口脱落等损坏现象,如有应及时更换;
b)查看跳线、馈线是否存在明显的扭压、折损的问题,如有应及时更换;
c)查看接头、器件、跳馈线是否有明显进水、进尘等现象,如有应及时清理或更换;
d)使用驻波仪对线缆进行驻波比测试,驻波比应小于1.5,如发现断点应及时更换;
e)使用频谱仪对器件、跳馈线进行功率的输入输出对比,如衰耗大于分配损耗+插入损耗应及时更换;
f)在排查上行干扰时,应用使用耦合器馈入办法来对比测试器件、接头、跳馈线的前后干扰情况,干扰值不降反升则应及时更换;

▲耦合器馈入法示意图
连接错误判断
应按设计图纸对照分布系统是否与设计图纸一致,具体办法如下:
a)查看基站与分布的接口是否连接正确;
b)查看各级合路器各接口是否与相应的网络对接,有无错接现象;
c)依据馈线标签对照分布系统与设计方案是否一致,排查跳馈线接错、器件接反等问题;
d)使用驻波仪确认较长连接馈线两段是否连接正确;
e)使用驻波仪确认各天线馈线是否连接正确;
f)使用频谱仪测试主干路由来线是否连接正确。