在农村,盖新房可是一件大事,建房子的每一步都马虎不得。俗话说,万事开头难,建新房也是如此。首先吧,得选好适合自己的户型,有了图纸才能好好规划,顺利开工着手建房。
自己建房一般建个二层就够了,多布置点卧室,也完全够用了,建高了平时打扫卫生麻烦,老人在家上下楼也不方便,所以今天给大家带来8套二层小别墅,给有建房需求的朋友作参考。
-
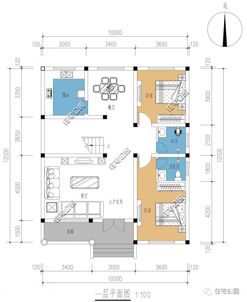
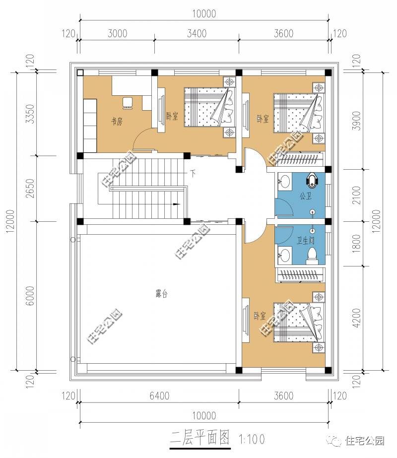
户型1
外观简洁大方,选用清爽舒朗的红白配色,打造纯净自然的住宅印象,与农村秀美的自然风光十分契合。

两层共设4卧室 1客厅 1厨房 1餐厅 2卫生间。


户型2
甜美与自然的气质,明亮的配色和简约的造型,大面积的开窗和转角的鼓手划破,尽显欧式田园风情,清新不落俗套。

两层共设5卧室 1客厅 1厨房 1餐厅 4卫生间。


户型3
一幢具有乡村风情的欧式别墅散落在苍翠树木的掩映之中,置身其中恍如远离了都市尘嚣,宁静幽远的感受令人神驰。

两层共设4卧室 1客厅 1起居室 1厨房 1餐厅 1储藏室 1办公 1多动能室 4卫。


户型4
现代时尚与简约碰撞融洽,带来个性的建筑形态,配色采用经典的红黄配色,增加一丝温度感。

两层共设3卧室 1客厅 1起居室 1厨房 1餐厅 1车库 1活动室 3卫。


户型5
时尚、现代两相宜,多层斜顶,木质材料与柱式装饰,自然建筑材料与四周绿植相映成趣,经典而不落时尚。

两层共设5卧室 2客厅 1厨房 1餐厅 1车库 3卫。


户型6
极致简约和错层的建筑形态、高采光的玻璃竖窗,加上转角石柱的点缀,简约而不简单。

两层共设5卧室 1客厅 1厨房 1餐厅 1车库 1洗衣房 3卫。


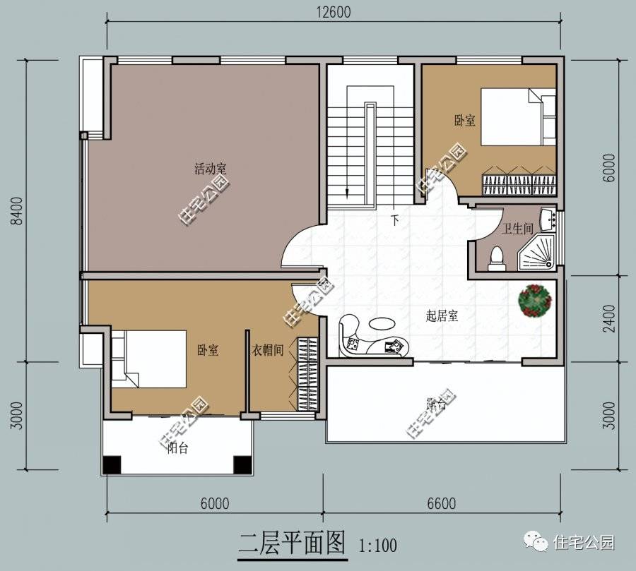
户型7
外墙使用装饰瓷砖,屋面采用琉璃瓦,再经过设计者的色彩搭配和元素线条的搭配运用,打造出一栋典雅的欧式住宅。

两层共设5卧室 1客厅 1起居室 1厨房 1餐厅 4卫。


户型8
极简洁的建筑外观,选用素色的淡雅色彩,营造轻盈灵动的体态,房子更显细腻的质感。

两层共设5卧室 1客厅 1厨房 1餐厅 1露台 4卫。


大家觉得哪一套户型最漂亮呢?若是你家建新房,又会选择哪一套呢?
微信公众号:住宅公园,500套别墅图纸,别墅庭院施工专家答疑。