有些户型就会有某些缺点,往往通过一定的改造缺点可以转换为优点,甚至有的可以升华为亮点。今天盘点一下家里如果有柱子怎么去改造和升华,可以给大家做个参考。

▲家里有孩子为了活动空间更大,牺牲了茶几不要,把阳台整体融入客厅扩大空间,本来是想放正常的沙发,但是阳台有局部柱子无法砸掉,导致如果放正常沙发会离墙很远,非常浪费空间。于是从客厅到阳台统一地台定制,然后定制沙发垫子,这样不仅视觉上整体,而且减弱了阳台柱子的突兀感,同时满足了孩子活动的空间

▲阳台本身有门和窗户中间柱子分割,但是为了视觉通透和空间放大,砸掉了门和窗户,但是柱子就显得很突兀,所以采用PU线条简单装饰,挂画以及墙挂绿植的装点减弱柱子的突兀感,同时还能作为一处不错的装饰景观


▲为了空间开放式和通透,砸掉了沙发背后的书房墙体做半开放式书房,但是书房一边是承重的柱子,不处理非常突兀难看。采用整体KD板把柱子包起来,然后书桌在两个柱子之间定制,这样整体看上去更统一完整

▲厨房有柱子,做地柜的时候如果做满,空间很小,干脆做成隔板展示,这样随手放东西也比较方便

▲为了拓展客厅空间,把电视墙与卧室墙体朝卧室移动,改作了超薄墙体,导致右边有个柱子外露,采用收纳柜的形式装饰起来,搭配落地石材地台的做法,缺点也变成了亮点


▲精装修改造,为了在狭小空间满足卧室功能,借用飘窗做了榻榻米,但是右侧的承重柱子就很突兀,刚好采用床头背景定制收纳柜遮挡,成就侧面的书柜收纳,而且隐藏了难看的柱子


▲为了空间通透以及光线需求,砸掉厨房做了开放式处理,但是承重柱子无法隐藏。直接用蓝灰色变色做法,把对称的柱子变色,两个柱子之间做上吧台用来分割餐厨空间,不仅多了功能,而且视觉上更完整

▲横厅空间,电视墙很小,而且靠近窗户有个承重柱子,视觉上很突兀。采用对称的办法,在另一边做了相同的柱子造型,对称设计,让电视墙形成单独完整的凹陷区,蓝色变色,上方射灯搭配,视觉要完美多了


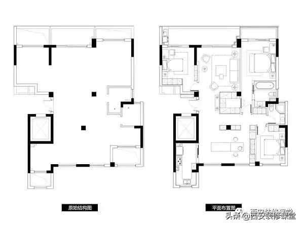
▲原始户型客餐厅有两个承重的柱子,非常突兀。后期采用新作衣帽间不仅成就玄关,同时隐藏客厅柱子。采用过道收纳柜的形式隐藏餐厅柱子,非常完美的方案

▲阳台做了开放式书房,为了视觉好看侧墙收纳柜。注意右边一扇门其实是假柜门,是个承重柱子,为了视觉美观,柱子采用和衣柜一样颜色的做,同时贴上PU线条,不仔细看看不出来,非常有创意

▲作为书房备用儿童房的房间,靠近窗户一边有个承重柱子,窗下直接定制榻榻米,采用吊柜和侧柜的形式把柱子隐藏起来,空间更完整,以后作为儿童房活动空间更大

▲注意靠近窗户右侧有个柱子,不处理的话,书桌刚好靠着柱子,视觉上也不好看。采用的办法是新砌半截墙,下半部分把柱子包起来,上部柱子与窗户缝隙做了壁龛处理。右边采用木质框架隔板收纳与壁龛一体链接,整体更完美,不细看是无法看出来有个突兀的柱子的

▲非常突兀的柱子,采用变色设计,同时PU线条勾勒,即可成为家里一个艺术品

▲厨卫空间墙边柱一般很好解决,采用柜子材质包裹即可,如果可以做成柜子隐藏柱子兼顾储物

▲实在不行,根据风格直接做成罗马柱造型,也是不错,复古又大气

▲也可以借用柱子做个窗户隔断,也是不错的风景

▲人为变大柱子,做成隔板可以储物,看起来也美观

▲柱子包起来,借势做个木质的创意书架也是不错

▲借用柱子下方做成收纳的书柜,也能起到分区作用

▲定制铁艺的展示架,把柱子作为家里的展示区

▲两个柱子之间做收纳柜,布局展示柜定制,也是不错的

▲涂刷黑板漆,直接做成涂鸦墙,柱子也可以艺术起来

▲也可以柱子一面用线条勾勒,一面涂刷黑板漆,作为家里的涂鸦墙背景使用

▲圆形大柱子也是可以采用黑板漆的形式装饰起来,让柱子艺术起来

▲简单实惠的办法直接用绿植装饰柱子即可

▲无法拆除的柱子可以采用马赛克进行装饰,其实也是另一种效果

▲直接裸露,让柱子保持本身毛坯的状态,给居室增加工业风效果,出人意料的好看

▲保持水泥柱的水泥色原状,在现代居室里头也是不错的效果

▲客厅有根大柱子,围绕柱子定制舒适的沙发,刚好可以四周坐人
