
浴缸区是给人泡着沐浴的地方,是卫生间的湿区。
下面由华建工艺学会、华建环境设计研究所为大家讲述下浴缸区的尺寸设计!
▷目录
1、浴缸平面布置类型
2、浴缸尺寸设计指引
3、浴缸给水点件安装高度
1. 浴缸平面布置类型
以下为卫生间带浴缸的平面布置 几种方案设计 :



2. 浴缸尺寸设计指引
一般的浴缸高度为 600 ~ 650 mm,宽度为 700 ~ 800 mm。
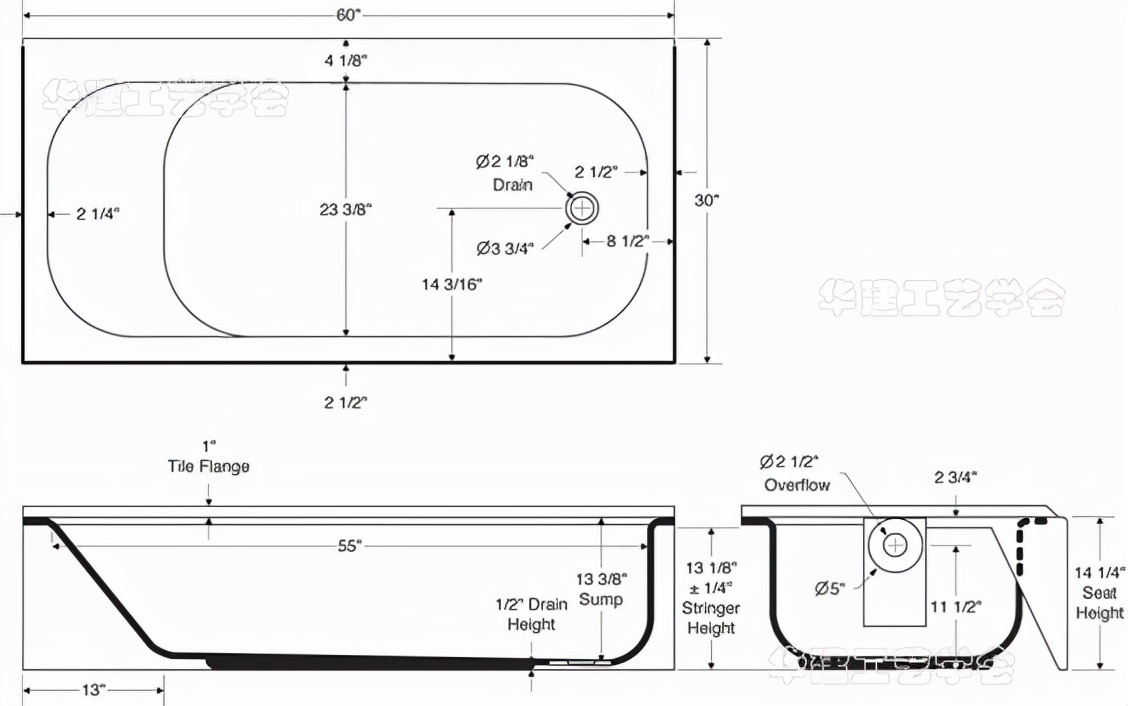
下图为市场上某品牌的浴缸尺寸指引:



(一)不同类型的浴桶长度:
不同长度的浴缸有不一样的享受模式,以下为市面上不同长度的浴缸的模式选择:
坐泡式木桶浴桶长度宜为 1300 mm;
坐泡式浴缸长度宜为 1500 mm;
半躺式浴缸长度宜为 1600 mm;
全泡式浴缸长度宜为 1800 mm。

(二)浴缸空间人体尺寸指引:
在设计时应注意预留浴缸区的站立空间;
进入浴缸前的最小活动空间宜为 600 mm×1100 mm。




3. 浴缸给水点安装高度
浴缸给水点(角阀)的安装高度宜为离地 300-400mm。

以上为本章节的全部内容,主要是讲述了浴缸区的人体尺寸、浴缸区不同类型的平面设计及给水点高度的尺寸指引,参考该文案指引设计合理的浴缸区。
该文案出自 《住宅空间人体工程尺寸指引》 书籍,如需了解更多人体工程学尺寸,可点击阅读全文购买↓↓↓
本文编写单位
华建环境设计研究所编写
编辑:梁薇
图片:苏韵涛
审校:廖炽伟、范丝燕
发布于2021年3月
“浴缸区空间尺寸指引!HJSJ-2022”
文案由华建工艺学会的团队发布
主要面向学生
由于文案的教学特点
它的内容可以自由复制、打印和分发
禁止商业用途
更多设计看点→点击关注华建环境设计研究所
