项目概况

△总平面示意图
项目位于浙江,基地东侧是道路,西、南两侧为邻居家住宅,北侧是一条村内小路。由于基地限制导致建筑南向采光较少,如何解决采光成为平面阶段需要解决的问题之一。
图纸设计

△一层平面图
由于基地限制,建筑南向采光有限,因此平面布局凹凸有致,使房间拥有更好环境。一层入户玄关正对庭院,落地窗将庭院内绿色带入室内,如此设计符合南方风俗。
客厅、餐厅分列玄关两侧,平面北侧客厅正对庭院,室内环境极佳。餐厅欣赏到庭院美景的同时,通过折叠门与室外平台连接。室外平台为业主及其家人提供了饭后散步休息的场所。
一层共有3间卧室,均为套房形式,衣帽间和卫生间的配置让业主及其家人能享受便捷和品质生活。影音室和储藏室相邻,室内公共区域划分较为明确,采光也有所保证。

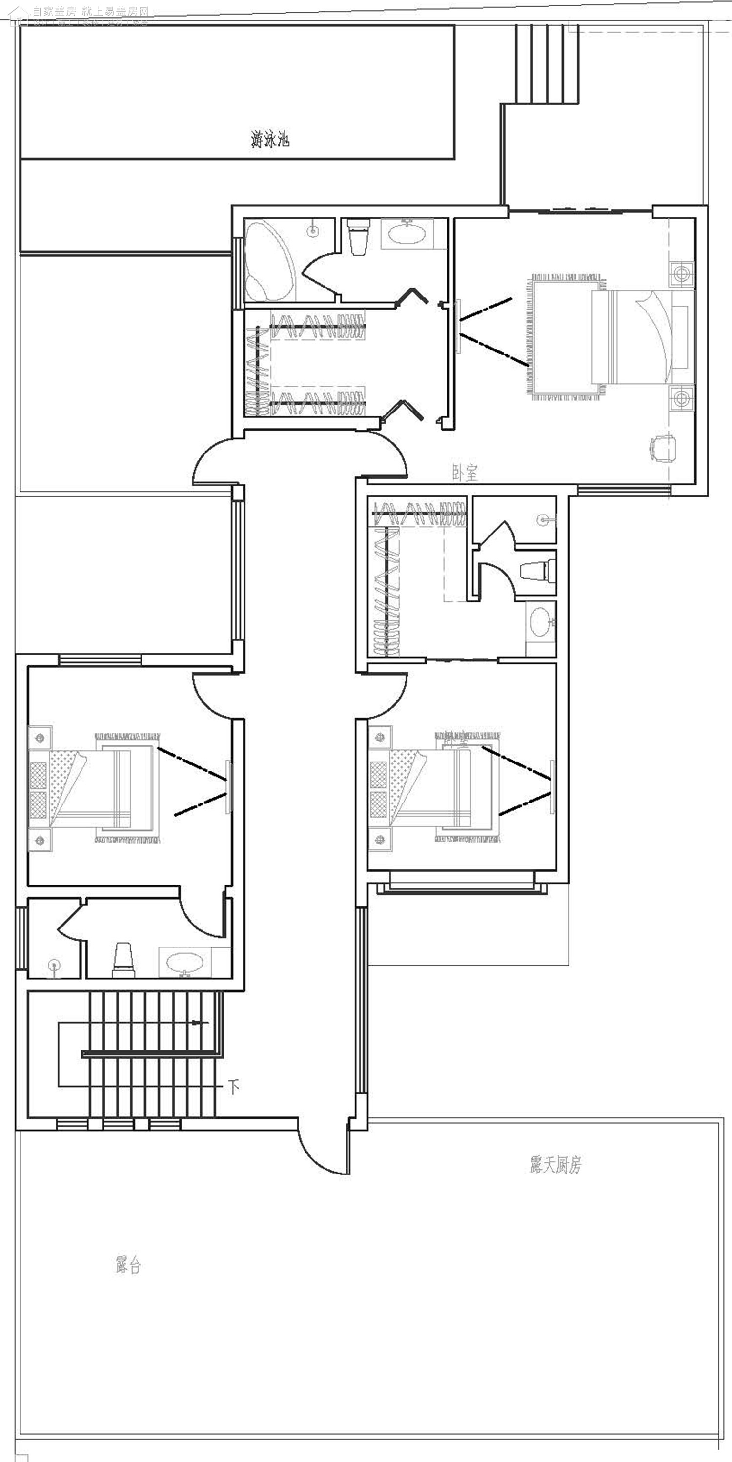
△二层平面图
二层主要为起居空间,南侧露台处面积极大,可配置露天厨房,是聚会烧烤的理想场所。室内共有三间卧室,北侧卧室可通往室外泳池。合理设计让建筑室内环境更好,同时具备丰富使用功能。
造型设计

△鸟瞰图
建筑整体为新中式风格,立面采用白色打造淡雅基调,配合灰色和青瓦屋顶让建筑视觉上干净有韵味。平面凹凸有致让建筑层次自然展现,配合庭院设计,视觉上十分丰富。

△鸟瞰图
建筑采用大开窗设计,通过中式门窗元素弱化玻璃面积带来的存在感。屋顶平台选用玻璃、墙体结合的围栏形式,衔接自然,立面效果统一。平台选用木色装点地面,用暖色增加颜色亮点。

△鸟瞰图
院墙设计有墙窗,增加院内院外交流,院内景色透过墙窗引得路人驻足。中式花纹传统,极具美感,墙窗之间适中距离中和了墙体的厚重感。

△西南侧效果图

△南侧效果图
庭院内多处月亮门,使得空间得到自然划分。墙上开有孔洞,配上古意十足装饰品,空间韵味自然散发。从月亮门前看向庭院,景色层次分明,由远及近给业主极致视觉享受。

△庭院效果图
不同庭院景观繁简不同,靠近院门部分以盆栽和留白为主,让视觉有过渡空间。与餐厅相近庭院则以景观为主,山水木廊展现中式园林特有韵味。层层递进的景色设置给予视觉更大享受。

△庭院效果图

△庭院效果图

△东立面图

△西立面图

△南立面图

△北立面图