
对于很多品牌门店来说,门店不单只是一个店,也是品牌的一个小型展厅,所以整体的设计是非常重要的。


那么一个门店展厅该如何设计才能凸显优势,吸引客 流,获得更大的收益,今天我们就一起来聊一聊。

文末附 门店展厅空间设计SI规范手册及相关图纸
01
门头是第一印象

门头的重要性不言而喻,内部设计得再好,也需要进来才能看见。在门头的设计上,要内容清晰,一般写明品牌品类名(或加上卖点口号),文字简洁但清晰,将经营内容快速展现出来。



其次,特殊的、具有设计感的门头,肯定会更有吸引力,也提高了辨识度。但要记得,在有特点的同时,也要符合品牌调性,二者要有一定的匹配度。






02
内部布局很重要

不同类型的门店,对功能区的需求也不同。在设计时,根据门店展厅的实际情况,划分出相应的功能区域,功能区之间的动线也要流畅连贯。




对于布局来说,也有几种不同的类型,根据实际空间和产品特性,进行合理选择。
直线型平面布局,属于最常见的门店设计类型之一,能将空间利用达到最大化,缺点是在货架较高的情况下,人在其中会遮挡一部分视线。


对角型平面布局适合自助式门店,能吸引店外客流,对客户更加友好,提供了更加开放的动线模式。

圆弧孤岛型平面布局是很多高端门店的陈列选择,独立而个性化的设计,更能展现出其价值。


几何型的平面布局较适合服装店来进行陈列,使用货架或固定装置来打造出一个有趣的门店,同时成本也不会太高。


混合型平面布局是几种布局方式的结合体,直线、弧线、对角线都可能存在于其中,这种布局适用于大多数类型的门店。



03
产品展示是重点

产品自然是每个门店的重点,在设计摆放时,要有主次。比如将主推产品放置在最显眼的地方,或者放大呈现,或者是用特殊的设计来凸显等。


除此以外,想要突出产品,灯光也非常重要。灯光不仅能给产品一个重点照明,一定程度上也能给产品加上个“滤镜”。


门店展厅的设计,对于任何品牌来说都是非常重要的。这里小编为你准备了门店展厅空间设计SI规范手册及相关图纸,一起来了解学习店面终端形象系统性的设计,从门头到展柜,从整体设计到细节打磨,帮你轻松搞定门店展厅设计。
门店展厅空间设计SI规范手册及相关图纸
资料具体内容是以小米门店展厅的设计为例
资料总预览
【01】形象手册
【02】展具详图图纸CAD
【03】3D模型
展示一:形象手册
案例为小米门店,可以当模板使用,替换成为其他品牌类型的的SI手册






















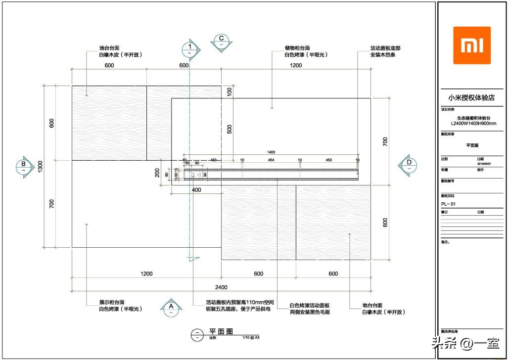
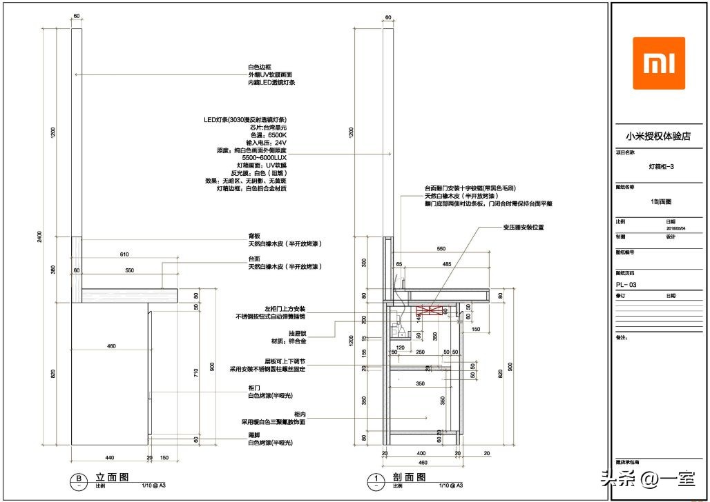
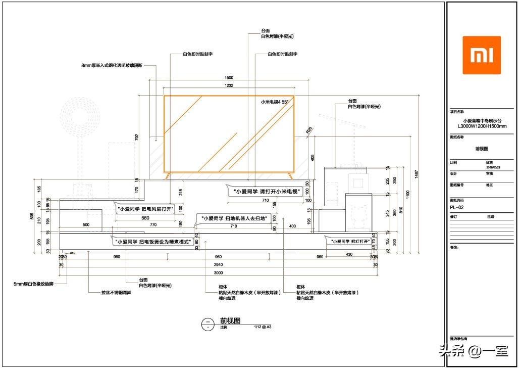
展示二:展具详图图纸
-图纸CAD PDF-












-维修台结构PPT-



展示三:3D模型


▲以上仅为部分展示
【免费领取】私信回复“008”
版权声明:我们尊重原创。文字美图素材,版权属于原作者。部分文章推送时因种种原因未能与原作者联系上,若涉及版权问题,敬请原作者联系我们,立即处理。