【方案】静享美好视听感受-帝诺兄弟西安林隐天下别墅私家影院
2017-05-19影音中国影音CN

编者按
闹市中的安静之所,设计师根据业主要求,构建了非常宁静的影音空间,并且通过器材的搭配,把整个观影的要求淋漓尽致地表现出来。
基本情况简介
地理位置:西安林隐天下别墅
用户需求的基本描述:业主早早先定了器材,新房交付之后,便需要打造高等级的影音室。
整体资金投入:40万元(设备30万+装修10万)
视听室空间信息:长宽高为7.9×4.3× 3.1m。为了保证有最佳的黄金比例,同时满足前墙有足够的空间暗藏低音炮,我们在前墙用弹性减力墙结构做了一个巨大的音障墙,将房间长度缩短至7.3m,这样房间的长宽比为1.72:1,几乎接近完美的比例。
周边布局概括性描述:别墅地下室案例,做隐形影院设计,并且留吧台接待朋友。
设计单位:陕西圣帝诺电子科技有限公司

设计师:李进
参加过THX培训,从业经历5年。
所用器材列表
信号源设备:
海美迪H10&
OPPO BDP-103D
视频设备:
HarknessScreens(哈克尼斯)透声幕
Epson(爱普生) CH-TW6600 投影机
音响设备:
JBL ARRAY1400 主箱
JBL ARRAY880 中置音箱
JBL SYNTHESIS S4AI 环绕音箱
JBL ARRAY1500 有源超低音

功放设备:
Anthem(圣歌) AVM 前级处理器
AudioControl 7声道后级
QCS DSP均衡器
DVDO视频处理器
线材:
线世界Chroma彩虹HDMI线
线世界STREAM银河喇叭线
KTV设备:
QfactorZEK1099
QfactorK3400后级
QfactorK6000效果器
QfactorM99无线话筒
视易点歌系统
声学光学处理及特别设计
自古流传,小隐在山林,大隐于市朝;都是说明:那些所谓的隐士看破红尘隐居于山林是只是形式上的“隐”而已,而真正达到物我两忘的心境,反而是能在最世俗的市朝中排除嘈杂的干扰,自得其乐,因此他们隐居于市朝才是心灵上真正的升华所在。本案中的业主没有选择悠然自得的世外桃源终南山,而是选择了居在喧闹的市井中阳光城林隐天下别墅区,视他人与嘈杂于不闻不见,从而求得心境的宁静。这才是对于道家思想的极高追求。
时光回溯至2012年,当时业主通过朋友介绍得知帝诺兄弟是JBL SYNTHESIS系列陕西地区总代的时候,特地驱车前来拜访,在试听过这对JBL ARRAY1400系统之后,便笃定这是他所要的那双滑板鞋。于是乎业主在新房还没有确定的情况下,当下就订了这套JBL ARRAY1400极品系列,谁人知这一等便是五年。


去年新房交付,业主怀着激动地心情与我们帝诺兄弟影音设计是一起去现场测量,并要求我们给他优秀的影音室。为了达到最佳的影音效果我们对整个影音室做了声学装修及设计处理,我们帝诺人严格按照美国THX和美国HAA处理的要求,利用专业的声学测试软件对该房间的声学分布特点做了专业的声学处理,考虑到影音室房间面积,我们通过声学测试工具对整个影音室进行反复多次测试,最终结合现场环境特点做出了最优的声学解决方案。
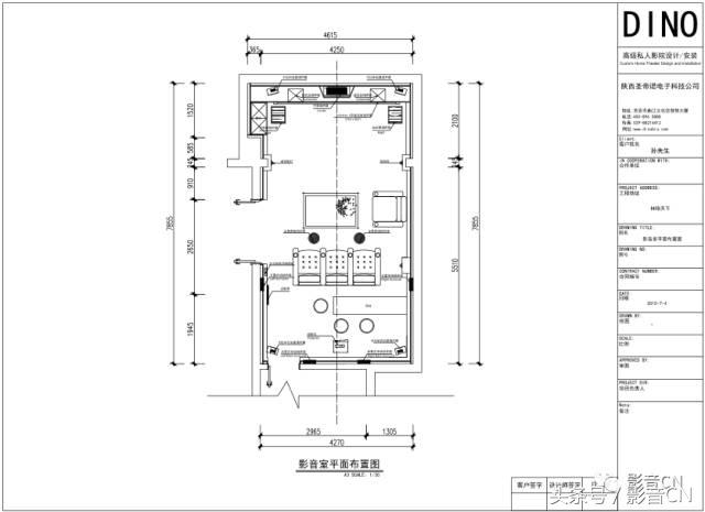
平面布置图
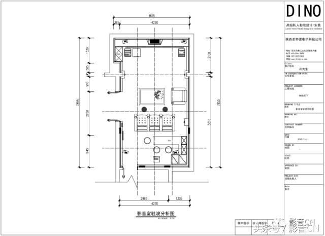
首先我们将房间四周和顶部做了弹性减力吊顶和减震墙,墙与墙之间留缝4mm再用密封胶密闭。这样对于房间的低频起到了一个非常好的吸收,减少了驻波,同时还可以起到一定的隔音作用。然后根据CAD图纸找出第一反射区,做吸音处理,后环绕侧环绕部分做吸音+扩散处理。最后根据HAA要求找出房间几个关键低频驻波点确定低音炮的摆位。有了以上的基础声学设计保证,我们接下里得项目进行显得游刃有余。
驻波分析图
第一反射点图
弹性减力墙图CD立面图
透声布固定图

经过和业主的沟通,业主希望影音室是一个欧式装修风格,和其他房间风格统一,我们观看了其效果图之后,联系了甲方的木作设计师,将我们的设计要求一一沟通后,做了一套外立面设计方案,把嵌入式环绕音箱和十几个SONDTECH声学模块隐藏至墙面透声布后方,完美的将声学和美学进行了统一。

系统调试与设计者心得
经过帝诺人的认真负责的施工与不懈努力,终于迎来最后调试的日子,我们项目负责人 Edward Liu同学带着HAA音频调试包与C6视频调试仪来到客户家做最后的实际调试工作。首先将HAA的4只高精度麦克风校准,再根据操作要求将其放在不同的水平和垂直面上,已到达最佳的权重配比,从而保证甜区的最大化。经过一个多小时的校准,我们出具了一下的调试报告,从报告中我们可以明显看出左中右的曲线经过DSP的均衡校准,达到了基本平直的曲线以及左中右较高的统一度,这和调试前后的对比差异是非常大的。这里要额外插一句,业主本人我们调试前曾迫不及待的私下听过几个片段的效果,再这次调试后再听不禁连连称奇。对我们帝诺兄弟的项目工程师有了更进一步的信任和敬佩。

视频部分,业主一直对激光真4K投影情有独钟,但当时只有Sony VPL-VW5000ES价格虚高,而且装修好以后预计有1年多也不入住,所以选择了一款Epson的中低端款CH-TW6600作为过度型号,待激光 4K 价格回归理性时再升级也不晚,要知道仅仅是硬装部分完成到设备调试完毕这3个月来,Sony激光4K就更新换代了,而且价格下探了将近10多万,这也体现了帝诺兄弟本着对业主负责的态度。回到主题,虽然是一款中低端家用机,经过DVDO的视频调试仪和C6的测试仪器,用CALMAN软件测试结果如下,画面三原色基本达到了一致,色域坐标也基本打在标靶上,通过测试前后的同样的样片的对比,我们明显感觉到了画面通透,层次清晰,锐度提升,将这款CH-TW6600投影机效果发挥到了极致,面对业主的称赞我们的工程师心中暖暖的。


最激动人心的时候到了,我们一众人都急切的像体验这完美的调试后即将带来的一场视觉盛宴。首先我们*放播**了一场蔡琴的金声音乐厅,蔡琴嗓音一开,我没有惊喜,只有感动。没有惊喜是因为这就是那种久违的JBLARRAY系列的原汁原味,仿佛阔别多年的老熟人再次相遇。只有感动是因为,JBL其还原能力一流,非常忠实地再现了录音中的感人元素。聆听蔡琴的歌曲,再次证明了号角喇叭无胆不欢。鲜活而高密度的人声,没有毛刺,却又那么富有穿透力,蔡琴给我的感觉既不苍老,也不年轻,唯有自然可以形容,说明了这套系统具有非常标准的频段分布。伴奏的钢琴泛音,和伴奏的音叉呈现出娓娓道来的宽松悠扬的感觉,我能够体会到尾音袅袅地洒向远方,意境感满点。

紧接着又*放播**了一段史密斯夫妇整个片段低音效果非常震撼,得益于它的14英寸超大口径低音单元,以及300瓦强大功率;它的低音澎湃震撼,下潜很深,近场环境下给人的冲击感很强;对于影片中枪战、追车和打斗场面的音效表现演绎的淋漓尽致,正如老烧友所说的拳拳到肉裤管生风;而中高频方面也有着不错的表现,得益于它的2个SONOGLASS指向性号角,中高频饱满有力,清晰洪亮,大音量下没有一丝杂音的现象,面对如此大的压力显得从容不迫,整体音质表现的异常出色。

在大家万分投入的欣赏片段中,我看到了项目部全体同仁脸上洋溢着幸福和喜悦,也看到了业主脸上那不动声色的喜悦与信任。这便是我们所追求的企业价值。
整体风格与效果
华丽、明亮而专业,业主可以随时在这里开展一趟美妙的影音之旅。

花絮
业主本人我们安装完但没有进行细致HAA调试前,曾迫不及待的私下用过这套系统听过几个片段的效果尝鲜,再这次HAA精细化调试后再听不禁连连称奇,惊叹专业的HAA调试带来如此大的变化。对我们帝诺兄弟的项目工程师有了更进一步的信任和敬佩。 订阅影音中国全新手机报(微信号:hdavcnn),登录www.hdavchina.com影音中国网,掌握更多影音资讯