▲ 点击“火柴设计联盟”,关注设计互动平台 每天更新,喜欢的可以点赞关注转发哦!
滑到文章底部获取免费资料
50套国内外创意个性餐厅实景图集
《餐厅设计参考案例》┆『50套国内外创意个性餐厅实景图集』高清官方摄影图片970张┃包含CAD施工图、效果图,设计方案(部分)┃983MB〖火柴设计联盟〗第2039期
资料亮点
此合集内容为国内外创意个性餐厅实景图集
高清官方摄影图片
包含CAD施工图、效果图,设计方案(部分)等丰富资料
共983MB
资料目录

部分内容介绍
卓越会所百晟花园,东莞 _ 广州道胜设计有限公司
























【国外最新个性酒吧设计】BAR BLOOM







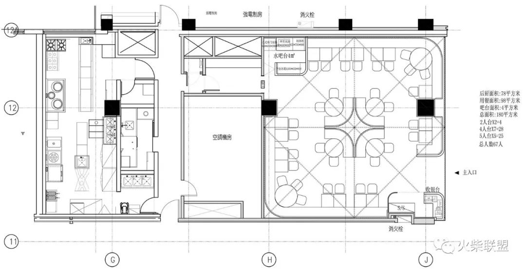
点点一品茶餐厅,北京 _ 古鲁奇公司














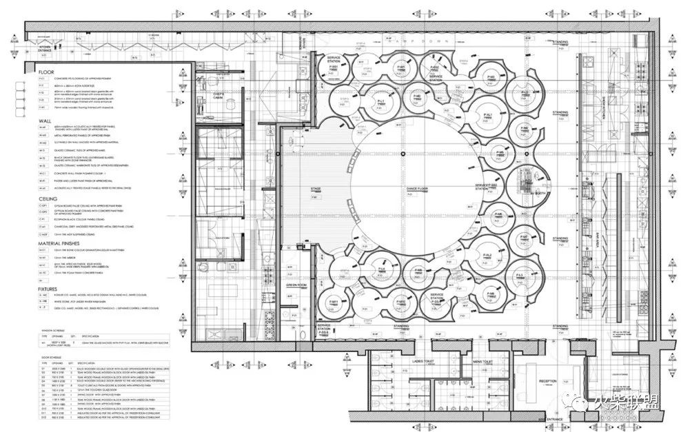
Serie Architects, Fram Petit · Blue Frog Acoustic Lounge and Studios · Divisare










CAVE CLUB,广州 _ 共和都市















M+ CAFÉ 4th
















【免费获取方式】
关注转发加评论后私信“2039” 即可获取此套完整版资料
免责声明:
以上图片及资料内容来源于网络,由我方整理,版权归原作者及其公司所有;
本资料仅供学习研究之用,不得用作于商业用途,若此图库侵犯到您的权益,请与我们联系删除;
本文章版权归本头条号所有,未经同意不得随意转载 ,若恶意侵权将追究其法律责任