来自河北农村的徐女士家里老房空置多年,看着村里的乡亲们都盖起了新房,于是也起了修建新房的念头。徐女士本人常住在城市,农村的老房空着也是空着,不如改造成度假小屋,闲时可以带朋友们来老家看看农村风光,享受享受田园生活。

在一次偶然机会下,徐女士了解到了轻钢结构住宅,施工周期短,造价合理,各方面都符合徐女士的需求。于是找到了专业轻钢公司——林塘美居,最后以20.5万元的造价签订合同。

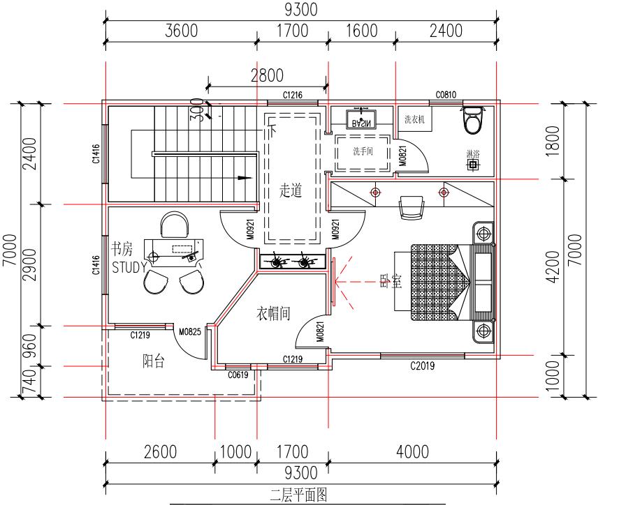
之前看过林塘美居建房案例的朋友应该都知道,这个造价包含设计、主体、水电(不包料),不包含内装。



由于徐女士是作为度假小屋使用,所以和一般的农村自建房布局有所不同。一层入户设置玄关,与客厅相连接,空间更加开阔,适合朋友们聊天喝茶。另设一间卧室,方便客人留宿。

二层则为豪华主卧设计,布置卧室、衣帽间、书房、卫生间,提升居住品质。

虽然轻钢住宅自重较轻,但基础施工同样不能马虎。一般来说,轻钢住宅都做大板基础,并要做好防潮处理,完工后按照图纸开始搭建轻钢骨架。

不愧是轻钢速度,很快二层骨架也已搭建完毕。

为了减少工期,主体搭建和外墙同时施工,让业主能早日入住新房。

外墙安装的材料是欧松板,它的学名为定向结构刨花板,又称OSB板,原产欧洲,市场上见到的多为德国生产。

平屋顶要做好防水施工,采用的是防水卷材,阴阳角、管根、平面与立面的转角处要加强处理。

外墙铺贴呼吸纸作为防潮层,再安装挤塑聚苯板作为保温隔热层,最后再做外墙装饰。

轻钢住宅外墙一般采用水泥纤维挂板或技术雕花板,装饰效果好,安装简单,属于一种新型建材。

安装窗框线,同时进行室内装修,填充岩棉,预埋水电,最后石膏封板。

最后拆除脚手架,清理施工现场。

新房左侧是徐女士家的老房,为了整体更加美观,林塘美居为老房做了外墙装饰。

同样安装金属雕花板,白+灰色调房屋风格简约大方,非常耐看。

花20万就能在农村建一栋二层轻钢住宅,怪不得受到这么多人的青睐!大家说说这性价比如何?
关注住宅公园,每天都有新户型,还有建房咨询一手掌握。