承蒙大家厚爱,最近又有粉丝投稿了自家的别墅设计让我与大家一起分享。现在农村建房讲究好看,讲究性价比,更重要的是要讲究实用性。说到实用,农村小院少不了,很多人建房时只考虑把院子围起来,并不知道院子也要合理地做规划。接下来,大家就跟我一起了解一下这款“高质量”别墅,不仅房间布局好,院子也非常实用。

单看这个面积就着实是惹人羡慕,房子总共分为了三部分,前院、主体和后院。大家有没有发现,农村自建房这么多年,盖两层的人是最多的。小编也问了这位粉丝的建房思路,首先他觉得二层的实用性远远大于平房,人家都说一层别墅好,但南方天气炎热潮湿,太热了就住一楼,潮湿就住二楼,灵活居住。其次,盖高了也是空着,打扫起来麻烦,只有二层才是最合适的。

我们再来分析一下他家的院子,前院大门放在了最右侧,而左侧在院内搭了一个开放式的车库,长度够停两辆车。若是只设一个院门,入院后还得拐弯,绕行,最后才能进车库,技术差点的都得停出一身汗。多开一个门的设计,对女司机来说就非常友好了。
除了车库,旁边还有一个大空地,天气好可以在这荡荡秋千,晒晒自家腌制的腊味,养条大狗子,即使长期住在这也不会举得乏味。后院空间也不小,放上一张石桌,天晴在这下棋喝茶,也是舒服的一批。

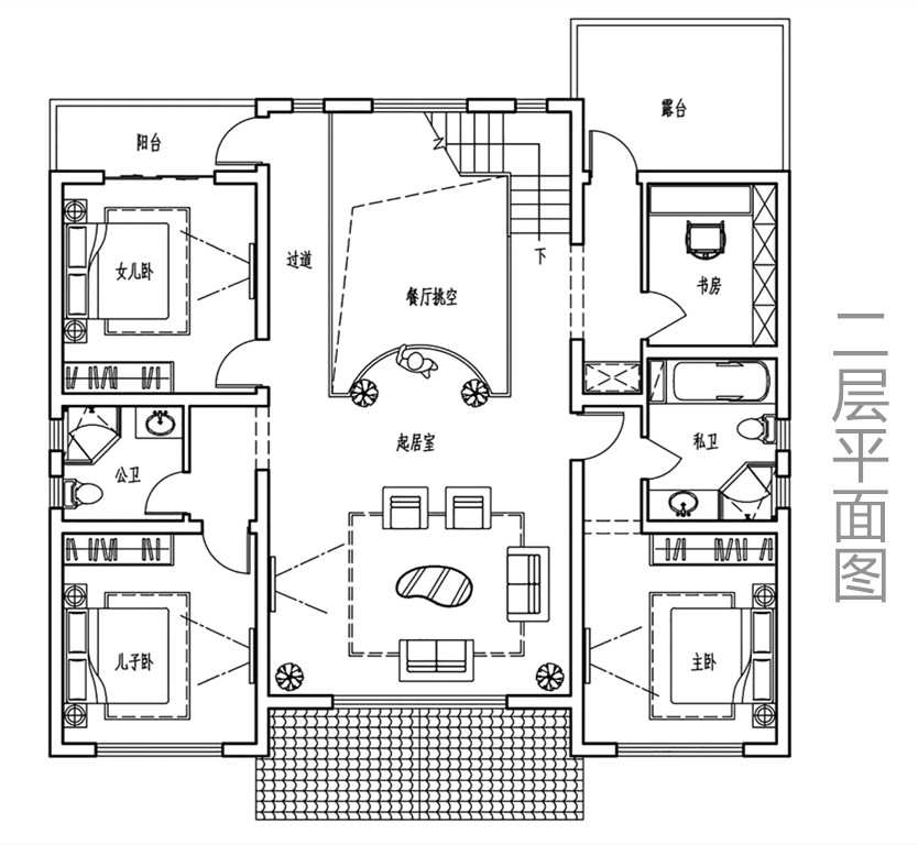
房子里头总共有6房3厅,每层都有一间带内卫的套卧。更有趣的是这位粉丝的挑空区放在了餐厅的位置,他说这样南向的卧室和休息的空间就能更多一些。
一楼大门入户,首先是大客厅,在房屋的正中间加了一面墙,主要用来摆放神龛。神龛的后面就是挑空餐厅,搭配转角楼梯,高级大气。西面为两间次卧室,公卫在中间。东南面是一间老人房,往北是厨房和棋牌室。正常情况下要通往后院,是从厨房到棋牌室再到后院。也可以从西北角的次卧,里面是落地推拉窗也能走到后院。

二楼布局也是非常实用的,主卧室不变,厨房上方做成了书房和露台。西面是儿子女儿的房间,中间位置做起居室,老人在楼下看电视,年轻人就在楼上玩。主次分明,互不打扰。

最后,小编全程都没有介绍尺寸和造价,不如大家猜一猜这样一套别墅盖起来,需要多大的宅基地,要花多少预算呢?评论区留下您的见解吧~
关注本号,不定时分享农村别墅好户型。