车型:新宝来
故障:发动机无法启动,仪表各个指示灯报警(转向指示灯不显示、气囊故障灯报警、手刹灯报警)。
【故障分析和检修过程】
1、 使用VAS5052进行电脑检测、发现15(安全气囊)与19(数据总线诊断接口)中有故障,但是安全气囊控制单元无法进入,读取19中故障码为:传动系数据总线损坏(静态)。

根据此故障现象怀疑是动力总线线路损坏或网关控制器损坏、导致各个控制器之间无法传递信息。
2.检测保险丝供电、测量正常,拔下网关控制器插头检查其线路连接,正常。根据客户反应前几天换完蒸发箱后才出现故障的,有几次就打不着了,过了一会就又打着了。根据客户描述,怀疑是在上次维修过程中某个插头没有连接好,所以导致此故障。拆下仪表台,检查仪表板和各控制器连接的线路。由于气囊控制器无法达到,本着由简到难的原则检查其供电,正常。拔下气囊控制器,检查插头连接,发现气囊电脑处线束被小水箱壳体挤压。如图:


3.一些控制单元是由CAN线激活的,通过发送与接收CAN信号使整个系统正常工作。各个控制单元通过收发器连接到CAN驱动总线上,在这个收发器内有一个接收器,该接收器是一个差动信号放大器,当总线受到外力挤压时,此信号放大器会受到外界电磁波的干扰,从而使总线不能正常的接收与发送数据,致使信号传递中断,使传动系数据总线损坏,发动机不能正常启动。
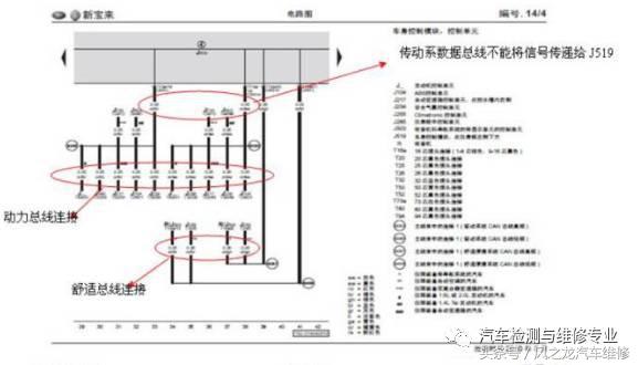
4.查看电路图:


5.将挤压线束复位后检查线束有无短路或断路(用万用表测量挤压线束的通断),检查线束正常。再次电脑检测发现故障码消失,仪表等控制单元恢复正常,发动机能正常启动,各指示灯恢复正常。
故障原因分析:由于传动系数据总线被小水箱壳体挤压,导致传递信号错误,使各个控制单元之间无通讯导致发动机无法启动、仪表指示灯报警。
故障处理方法:将被挤压的线束重新安装复位
专用工具/设备:VAS5052、万用表。
案例点评及建议:维修此类故障时首先要确定与故障有关重要数据,并结合电路图进行分析、充分利用专用工具进行故障排除。
二:宝来发动机无法熄火
故障现象:关闭拔出钥匙不断电无法熄火,中控锁无法正常使用。

故障分析:拔了钥匙不断电导致无法熄火初步怀疑为点火开关内部损坏。我们拆卸检查点火开关。准备用万用表对点火开关进行测量的时候发现拔下插头依然没有断电。由此可以排除并不是点火开关故障。连接431电脑读取故障码后并没有发现模块有故障码。这时候我们想到可能是保险丝盒内的继电器或者盒子背部线路烧结在了一起。我们逐个对继电器进行排查发现没有问题。对保险盒后面线路检查并没有烧过的痕迹。然后我们想到可能是车主加装的低音炮或者云镜记录仪有问题。最后发现拔了云镜的保险丝后一切正常。查找保险丝对照表发现云镜常火取代的保险丝正是36号中控锁的保险丝。实验后发现云镜手动关机后拔了钥匙车辆断电。开机状态下关闭并拔出钥匙无法断电。

故障排除:拆除劣质的智能云镜。
总结:遇到这类故障不要忙着去更换点火开关。需要对相关电路进行排查。这类故障一般是点火开关内部损坏、保险盒内线路烧结在一起、继电器烧结、加装的导航记录仪等内部故障导致连电。