案例:沈阳
小姐姐的要求有点多哦!

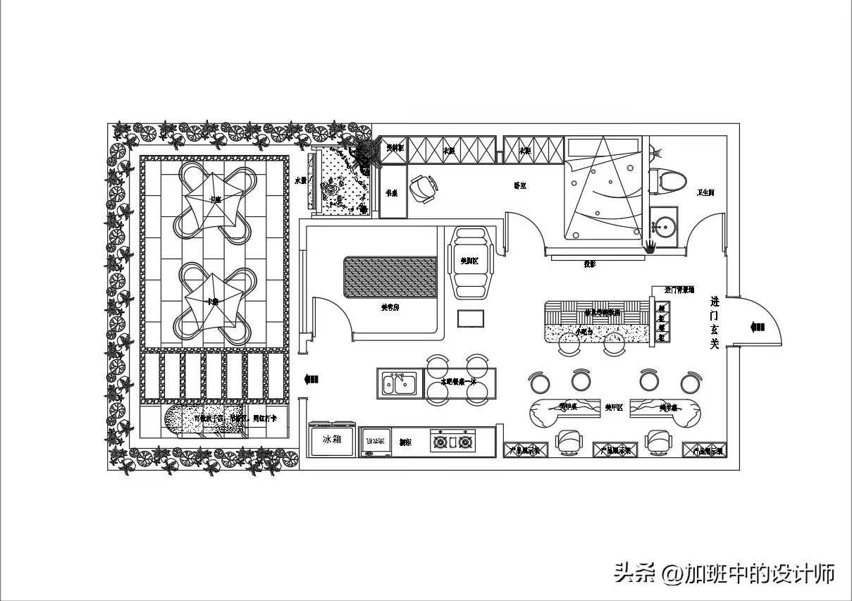
小户型来啦,小姐姐的要求是,需要一个卧室,卧室还要大大的衣柜,还要一个可以办公梳妆的桌子,一个专门给客人做美容的房间,一个美脚区,两个美甲桌,还有产品展示柜,进门鞋柜和背景,卫生间,厨房,用餐区,客人休息等待沙发以及一个小吧台,还要投影可以休闲看看电影!
哇,要求不少,户型不大,还等什么,改起来!

顺便我们把需要通向室外的门规划出来,把小院子也稍微规划了一下,基本的功能都已经满足啦!
上效果!




小空间也可以充分利用起来哦!别小看了自己的户型哦!
我是独立设计师:“加班的设计狗”,根据我们手头的案例来分享给大家,如果有喜欢的小伙伴可以点赞分享收藏!
在装修上有疑惑或者对自己的户型不满意的小伙伴们可以随时咨询,我们会及时给大家回复,免费给你们意见和解答各位的疑惑哦!