施工图纸在建造房屋或施工时起着重要的作用,相信大家在平时出去游玩的时候,碰到有些精美或者奇特的建筑都会使用手机拍下来。这些建筑都是建筑设计师们呕心沥血的杰作。

一张施工图纸所包含的数据或者是信息都非常的多,很多人都表示施工图纸看不懂,今天小编就来教大家如何快速看懂建筑图纸。

一、阅读图纸的顺序
1、先看图纸的设计说明:了解整个施工的项目,所要建造的建筑。
2、看图纸的目录:了解图纸的张数。
3、对图纸进行查看:从整体到局部、先文字后图样。

二、识、读图纸
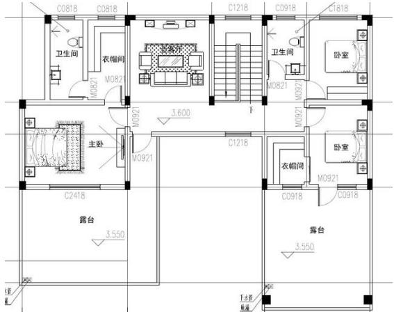
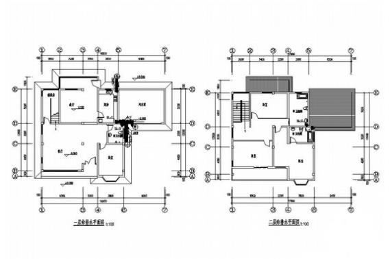
1、施工结构图和建筑图两张图进行结合着来看,就可以了解整个施工的概况。
2、结构图一般需要我们从轴线的尺寸进行查看、以此了解梁、柱、墙是否出现了差池。
3、查看每层的房间的布置是否合理,梁、柱等的布置是否美观,位置、大小以及尺寸有没有误差。

三、牢记尺寸
每张图纸上上都会标注一些重要的尺寸,施工于最少也要几十张,我们不可能记住这么多的数据。所以我们只需要记住一些重要的长、宽、高以及直径等具体的数值即可。

四、建筑图纸符号代号

了解以上的内容,接着我们就可以对照上边的理论对图纸进行查看了,有时候我们会收到电子档dwg图纸,如果你嫌电脑太过于笨重,我们可以利用手机来进行查看图纸。
1、在手机的应用商城的搜索框内搜索迅捷CAD看图APP,找到对应的APP。

2、点击进入CAD看图的操作界面,我们可以在一下路径找到我们所需要的文件,然后点击进行查看。(QQ:所有文件-Tencent-QQfile_recv)

以上就是小编今天所要分享的全部内容,如果想要了解更多的建筑知识,可以点击关注小编,每天都有新的建筑知识。