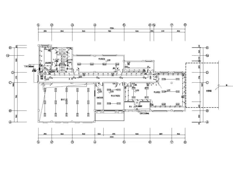
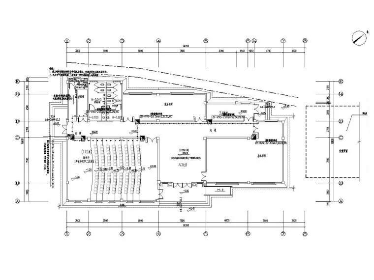
本次设计为安顺市某中学新建图书楼;建筑层数为地上3层,建筑面积为1474.80平方米。建筑高度为16.05米。建筑防火分类:多层公共建筑,建筑耐火等级二级;建筑结构形式:框架结构,设计合理使用年限为50年。抗震设防烈度为6度。
设计范围:
380/220V照明配电系统;照明系统:包括室内、公共区域的照明及应急照明和疏散照明设计;
防雷与接地系统的设计;有线电视系统;光纤系统。
部分图纸摘录:
照明平面图
配电平面图
接地平面图
消防平面图
弱电平面图
配电箱系统图
有线电视系统图
光纤系统图
重庆某高校实验室及办公综合楼弱电施工图纸
本资料为重庆某高校实验室及办公综合楼弱电施工图纸,设计范围:综合布线系统(校园网);语音通讯系统;计算机网络系统;有线电视系统;背景音乐系统;信息发布系统;会议系统;视频安防监控系统;入侵报警系统;出入口控制系统;电子巡更系统;智能停车系统;智能照明控制系统;能效监控系统;空调集中管理和计费系统;智能化集成系统;校园一卡通系统;机房工程建设;防雷接地。
智能照明平面图
安防监控平面图
综合布线平面图
弱电机房防雷接地平面图
办公门禁系统图
综合布线系统图
名企SSGF工业化体系自愈合防水标准做法
本资料为名企SSGF工业化体系自愈合防水标准做法,word格式,共23页,编制于2017年,明确防水工程节点标准做法。
目录:
一 、 目的
二 、 适用范围
三 、 防水基本原理
四 、 防水标准做法
1、地下室防水
2、楼地面防水
3、屋面防水做法
4、外墙防水节点
5、泳池、人防楼梯防水
6、缺陷修补
7、强制条文
......
名企SSGF工业化体系自愈合防水标准做法
地下室顶板防水做法
地下室外墙(侧壁)防水做法
地下室外墙施工缝做法
电梯井临时排水做法
装修房卫生间墙面防水做法
[三亚]亚特兰蒂斯七星级度假酒店项目资料
本资料为[三亚]亚特兰蒂斯七星级度假酒店项目资料
资料内容包括:公区及后场和客房区全套CAD施工图(图纸目录,施工图设计说明,平面图,立面图,节点大样,电气,机电图等全部图纸),机电深化图纸,效果图,实景照片,材料表,物料书,五金洁具等
总平面布置图
天花布置图
地面材料铺装图
家具定位图
隔间布置及索引图
综合天花点位图
综合机电平面点位定位图
立面图
立面图
立面图
效果图
效果图
效果图
效果图
效果图
效果图
效果图
[上海]万科御河硅谷企业公馆办公楼公区项目
本资料为[上海]万科御河硅谷企业公馆办公楼公区项目资料|深化方案+施工图+物料
资料内容包括;公共区域D1-D4CAD全套施工图(图纸目录,施工图设计说明、平面图,立面图,节点大样,门表等图纸),设计深化方案,效果图,物料表,材料表等
平面布置及立面索引图
隔间尺寸图
地面布置图
综合天花图
天花造型尺寸图
灯具定位图
强弱电布置图
大堂立面图
大堂立面图
过道立面图
效果图
效果图
[上海]816㎡医疗公司办公室施工图+效果图
[上海]816㎡百特医疗汇德丰办公室丨设计方案+效果图+施工图丨275M丨2015.11
资料内容包含:CAD施工图(图纸目录,施工图设计说明、平面图,立面图,节点大样,机电,空调,消防,设备等)设计方案,效果图,材料表等
家具平面图
地面铺装图
综合天花图
空调风管平面图
火灾自动报警及控制系统平面图
办公室立面图
办公室立面图2
办公室立面图3
节点大样详图
生猪养殖项目供水工程图纸清单招标文件2020
工程概况:
项目名称:XX年出栏15万头生猪养殖项目供水工程
项目地点:XX镇;
项目规模:新建引水渠道、泵站、上水管、水池等;
项目总投资:约730.39m2;
计划工期:120日历天;
资料包包括:
年出栏15万头生猪养殖项目供水工程图纸清单
年出栏15万头生猪养殖项目供水工程招标文件
年出栏15万头生猪养殖项目供水工程招标图
编制于2020年,内容齐全,可供参考;
泵站设计图
配水管镇墩典型设计图
总拦标清单表
建筑工程量清单表
机电设备及安装工程量清单表
金属结构设备及安装工程拦标价表







