施工放线的前期准备工作分为三部分
1、仪器、工具、材料、人员
1)、仪器: 经纬仪、水平仪、红外线、垂直水平仪、100m测量皮尺、7.5m钢卷尺、200m红外线测距仪、三凌镜等都用于测量。
2)、工具: 墨斗、钩鱼丝线(红色、蓝色)都用于弹线。
3)、材料: 大锤、小锤、铁楸、木工板、150*150*3铁板、30*30*3角铁、 Ø8*40膨胀螺栓、划瓷砖的金刚钻刀头,冲击钻、电焊机、切割机等都用于放线定固。
4)、人员:施工员、现场总带班、瓦油木带班、放线员、弹线工2人、扫地清理人员2人(此放线5人为一组,根据工作量的大小可增加2-6组人员)。
仪器用途
红外线:是用来复合水准仪抄平是否误差。如没有用木抖弹1m水平线,红外线远距离线粗以中为准。
水准仪:找平层1m水平线,夹在中间以减少误差。
2、项目部准备工作(一)
1)阅读核对并审核所有的建筑施工图纸,防止互相矛盾,尺寸差错、(因为所有的水电、暖、消防这些单位设计的图纸上,都是按照建筑总平面和建筑立面。建筑剖面设计的有在同一平面位置。且空间也在同一位置,也没有考虑这些设备的保温,支架节点的空间、检修位置也没有考虑,一切等待装修单位深化图纸。施工过程中有问题等待设计变更、协调时间长)。
主要阅读这些图纸的建筑总平面图,周围的环境,以及是定位的已知条件,如红线定位(外幕墙装饰主高);方格网定位(红线方格网是确认该建筑的位置)总平面图方格网是轴线位置,即柱子在网格交叉位置,导线也称坐标线,也称总控线。
并看总说明以了解该建筑物的首层±0.00的绝对标高值数(限高以±0.00开始)。
3、项目部准备工作(二)
其次看建筑施工图的总平面,建筑立面,建筑剖面图。但详图可以暂时不看。待窗台和窗帘盒深化图纸时看。这些图纸往往是搞装饰的人员不看的认为对我们装修没有用。再看结构施工图,主要是基础图,主体结构平面、剖面图等构件详图之类可以先不看。
最后初步的阅读一下相关水、电、暖通安装施工图。他们的出入口与土建和装饰的关系,至于内部通线、穿管的详图,开始时也可以不看。
看图时要建筑与结构对照、土建与设备安装对照,这些时间是项目部组织人员,忽略的关键时间之一,最好平面图,建筑剖面图、机电安装剖面图)以达到不矛盾,无差错,才算阅图准备工作完毕。
二层走道1:1截面造型及安装情况


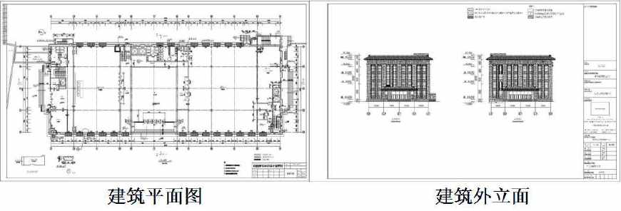
建筑外立面的左侧是各楼层的标高总高,以土建移交的首层±0.00标高,可以是各楼层±0.00的标高,及1m水平线。此1m水平线最好定在楼梯口或者电梯口。另外此1m水平线及层高非常重要,它是深化设计师深化楼梯的主要数据,并且也是测土建现场尺寸是否与设计师的理论尺寸相符。
建筑平面图是一个理论图纸,通过现场复试是否有误。
现场准备与土建移交的50线和轴线
用途:
办公室工作准备,了解机电顶面灯具照明;地面地插与墙面插座。工期紧的项目,这个方法可行,为下一道施工工序争取时间。
3、现场准备工作
1)根据建筑总平面图到现场草测,核对总平面图的理论尺寸与现场是否吻合。现场上设计变更是否更改等。
2)与土建到现场移交的基准点、总控线或轴线。
3)人员进场协调影响我单位放线的障碍物。
控制线的确认
主控制线就是坐标,坐标是测量中用来确定施工轴线位置及建筑物位置的,是人们假设的线。
