项目信息
项目名称:惠普办公楼
设计团队:阮当东,吴氏娥,Kien Truc NDT
项目类型: 综合体建筑
位置:越南北宁省
关键词(自选): 建筑设计, 景观设计,生态建筑
正文

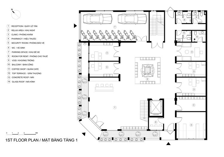
惠普大厦位于北宁省人口稠密的地区。该项目面积为440平方米(20.9米x 21.1米),主立面向西北。业主希望生活空间与大自然紧密相连,充分利用自然光线,并拥有充足的休息空间。此外,独特而独特的立面是业主的要求之一惠普大厦位于北宁省人口稠密的地区。该项目面积为440平方米(20.9米x 21.1米),主立面向西北。业主希望生活空间与大自然紧密相连,充分利用自然光线,并拥有充足的休息空间。此外,独特的立面是业主的要求之一。




由于房屋的立面朝西,并且靠近主干道,我们需要找到一种解决方案,不仅有助于创建独特的立面,还可以确保内部空间不受自然阳光直射的影响,能见度扩大,周围车辆的灰尘和噪音最小化。房屋的主要功能包括疫苗接种中心(1楼),水疗中心(2楼),出租房(3楼,4楼,5楼)和咖啡厅(6楼)。立面由数百个高架花园床组成,这些花园床排列在不同的高度,形成了一个巨大的绿色植物层。该解决方案有助于为房屋创造独特性,将自然光更好地分配到内部空间,更好的能见度以及更有效地防止来自外部的灰尘和噪音。



主大堂的一个大空隙与房子中间的中庭直接相连,当人们走进去时,这有助于带来舒适的感觉。空隙和中庭直接连接到楼梯和电梯,帮助人们轻松观察和移动。此外,这也是一种解决方案,可以帮助通风,并为房屋的中间区域获得更好的自然光。在楼层之间移动的人们可以感受到到处都是绿色植物和自然光。



6楼用作室外花园,以创造缓冲空间,这有助于提高室内空间的质量。这里使用大树来冷却室内空间,限制噪音并允许自然通风进入房屋。HH Building是克服朝西房屋局限性的实用解决方案的组合,我们专注于创造更多的休息空间,增加通风和自然采光,提高室内生活空间的质量,并为该地区的人们提供鼓舞人心的绿色生活。

编后语:设计师在满足使用功能的同时,通过设计,将大自然的绿色引入室内,使使用者的生活和工作都与大自然紧密相连。更多关于田园综合体、民宿设计、营地规划、营地设计的案例,请点击下面的拓展阅读进行跳转阅读。
来源网站: www.archdaily.com
翻译整理:WAQI
编辑:Tyrone
更多 WAQI 原创内容
景区,景观建筑,生态建筑
空中绿廊与流动的山丘唤醒入*活口**力
与自然共生的室内设计
农业生态园的Super Mall