衣柜是我们家居生活中使用频率比较高的柜子,也是私密性,功能性要求比较高的柜子,那么衣柜应该怎么设计呢。收藏本文,这里涵盖了各个常用尺寸的衣柜设计参考图纸(附带对应的移门尺寸哦!)。

如需要CAD原文件请看下面免费领取办法。

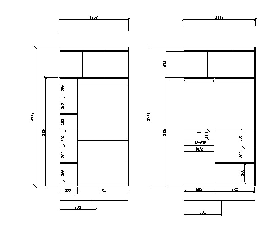
一米三衣柜图纸

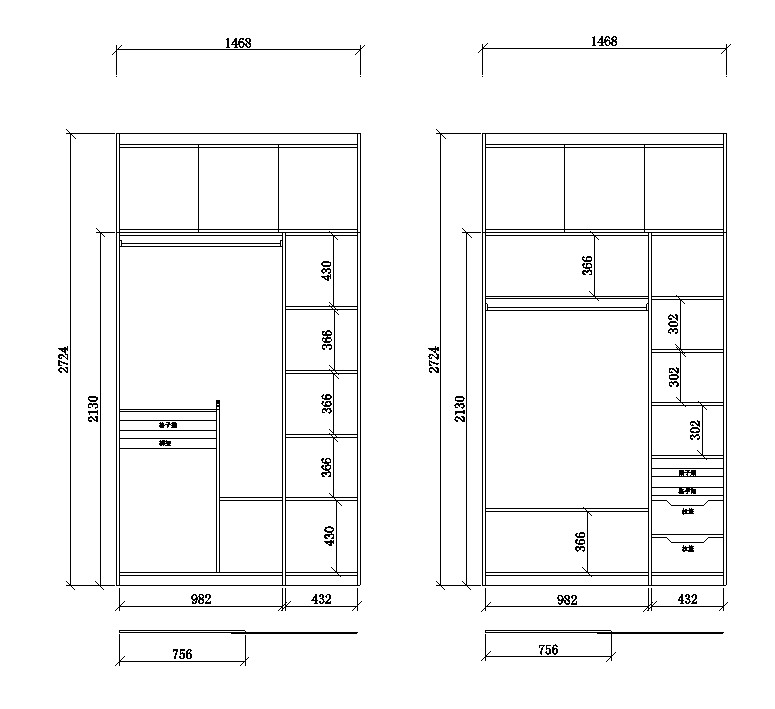
一米四衣柜图纸

一米六衣柜图纸
关注我,给大家分享家居设计资料,家居装修干货。

一米七衣柜图纸

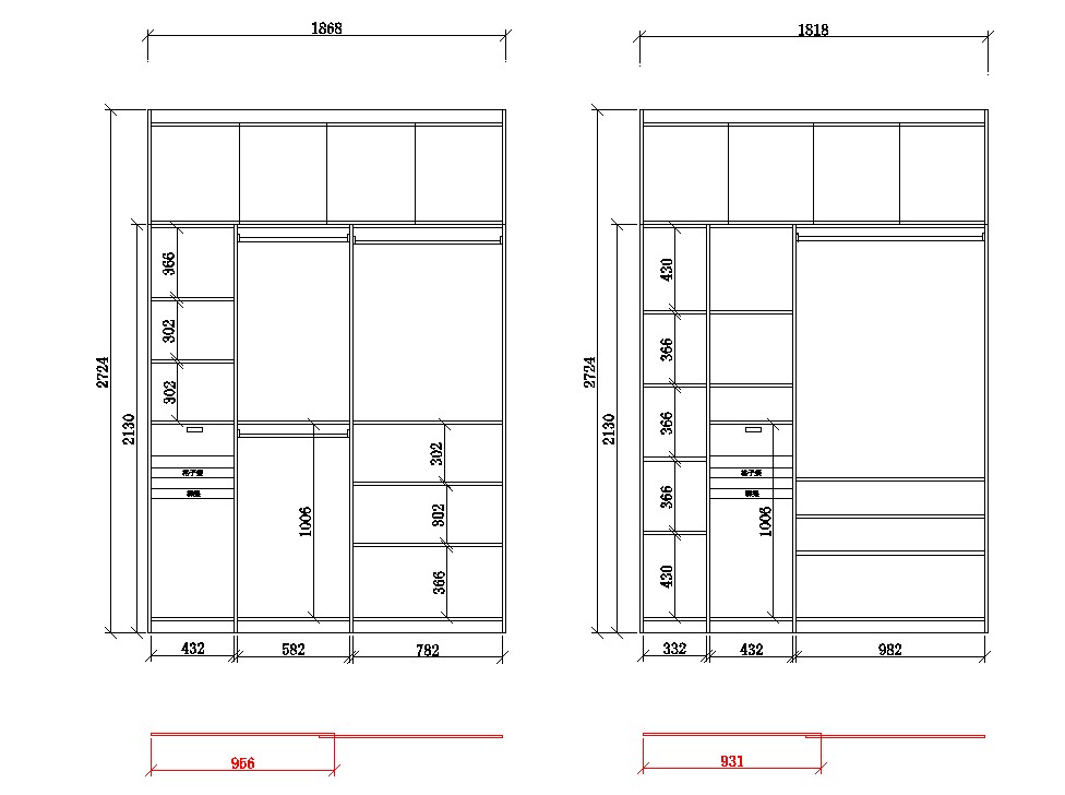
一米八衣柜图纸

一米九衣柜图纸

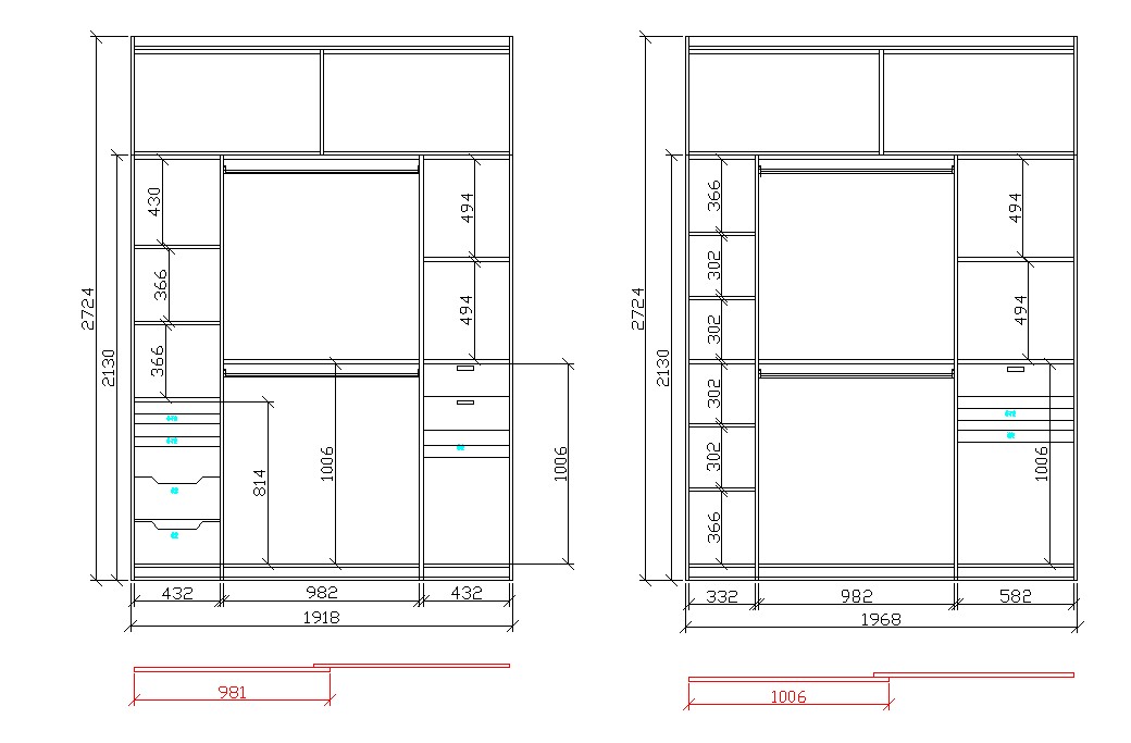
两米衣柜图纸

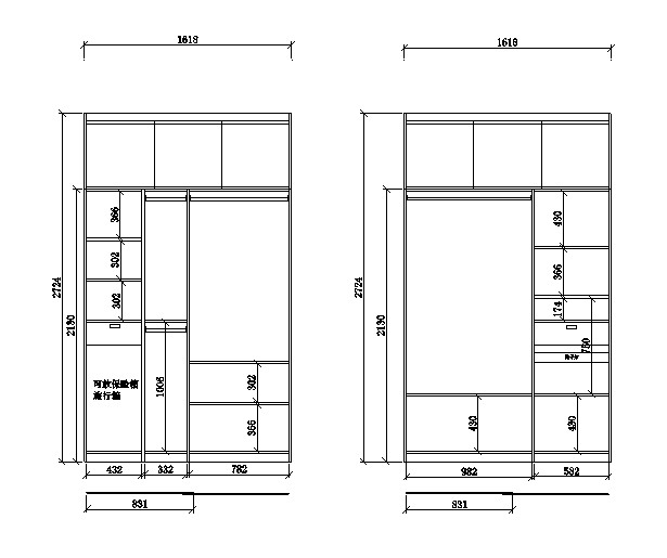
两米一衣柜图纸

两米二衣柜图纸

两米四衣柜图纸

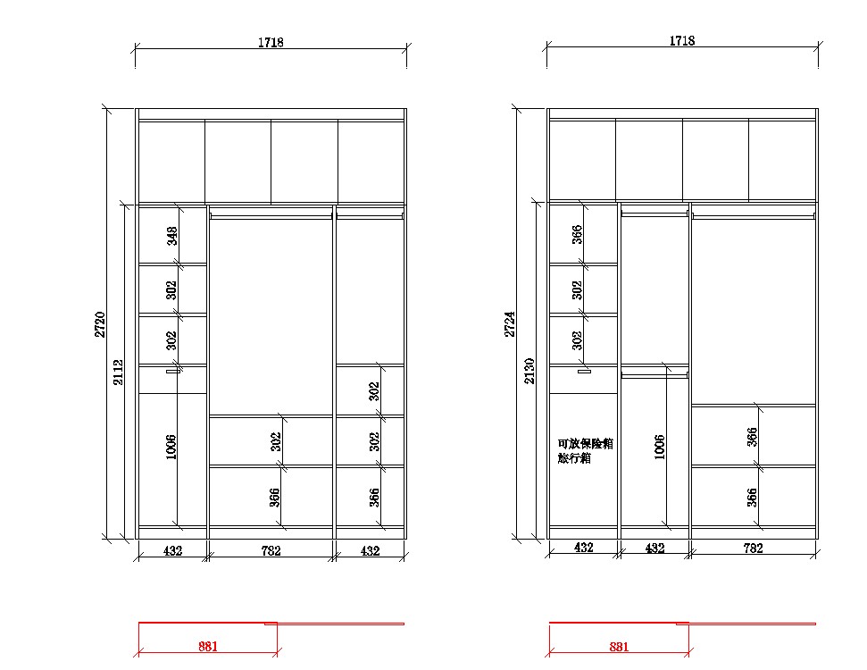
两米五衣柜图纸

两米六衣柜图纸
原文件免费领取通道:
文章点赞并评论“学习”,然后关注我,让我找到你。