东海国际公寓
308米亚洲第一高纯居住大宅
深南大道第一排,双子塔地标
四地铁枢纽上盖物业
超大景观阳台,尽览山海城湖园
建面约77-362㎡ 一至四房
全屋品牌精装,现房、通燃气
拎包入住 精装酒店式服务
深圳CBD·香蜜湖新金融中心
项目基础数据:
东海国际公寓耸立于深圳福田香蜜湖深南大道7888号;
双子塔造型,A座,82层,308米;B座,75层,275米;
拥享50万㎡城市综合体东海国际中心成熟配套。

占据香蜜湖新金融中心核心圈
对标华尔街、纽约中央公园,香蜜湖新金融中心建设金融文化中心、国际交流中心、改革开放展览馆,打造深圳新客厅。
成为世界500强企业、金融总部聚集地,成为全球创新资源的配置枢纽。
以艺术街区、山海公园带,营造国际一流的人居环境,
入住即享成熟与繁华。
308米 • 亚洲第一高纯居住公寓
俯瞰深圳CBD、深圳湾、香蜜湖、塘朗山。
好景一览无余:
南观深圳湾及红树林,北览塘朗山峦,东西品中心繁华。
近赏42万㎡“城市绿肺”香蜜公园、香蜜湖 。

广深港20分钟生活圈 • 交通枢纽上盖物业
城市交通主动脉深南大道之上,
楼下深南大道对接京港澳高速G4福田出入口,约20分钟直达深圳机场、畅达深圳湾等各大口岸。
1、7、9、11号线车公庙站地铁枢纽上盖物业,福田高铁站14分钟快速通勤香港。
现正规划建设广深港磁浮列车香蜜湖站,时速600公里,广深往返仅需20分钟。
立体交通,高效便捷。



亚洲十大豪宅 • 名家打造
荟萃世界前沿团队,
建筑设计中国香港王欧阳、结构顾问英国奥雅纳;
HBA、凯达、梁志天担纲室内设计;
泛亚国际打造欧陆风情皇家园林;
建筑施工中建二局:一体式空中连廊天际会所,采用液压整体提升150米吊装完成,最大跨度达30米,重达700吨,刷新中国单体建筑整体提升高度之最。

堪比七星级酒店居住体验
21米高入户艺术穹顶,12米高砂岩浮雕,金山麻艺术灯,大西洋蓝水景,缔造华贵之境;
堪比七星级酒店14米高艺术大堂,价值3千万LASVIT水晶灯饰组合;
150米高空天际会所,天际恒温泳池、空中篮球馆、健身房、SPA瑜伽馆等丰盛设施;
8500平米皇家园林,50米长泳池,常年绿境,风水之脉贯穿,勾勒浪漫精致园林。




中心 • 人文艺术生活
悠享深圳、沙河、名商、西丽、观澜等五大高尔夫球场;
周边拥有幼儿园(东海培萃幼儿园)、小学(深圳外国语小学)、中学(深圳高级中学)等优越教育资源;
港大深圳医院、北大深圳医院、中山大学附属医院香蜜湖分院、深圳眼科医院,优质医疗;
畅享山姆会员店、东海缤纷天地、东海城市广场等商业配套;
以及深圳音乐厅、深圳图书馆、深圳博物馆、深圳当代艺术与城市规划馆、深圳中心书城等文化艺术设施。

城央生活 • 丰盛配套
50万㎡城市综合体东海国际中心成熟配套;
零距500强企业总部甲级写字楼东海国际中心高端商务;
东海朗廷酒店呈现五星宴客专属服务;
吃喝玩乐购,无缝对接大型商城东海缤纷天地;
同时东海航空、东海公务机提供全球50多个城市的专享飞行服务。

高品质服务 • 金钥匙&五星级
东海安保物管,金钥匙国际联盟会员单位,
荣获“金钥匙国际联盟5C品质大奖、中国金钥匙服务示范单位”等大奖。
为租户提供细致而周到的物管服务:24小时礼宾、出行预订、自助洗衣、预订送餐、豪华轿车预订等。
五星级东海朗廷酒店提供房务清洁等个性化服务。



产品鉴赏:大平层/复式/天墅
200-320㎡大平层
以200平米的单位为例,是瞰山观湖览海的绝佳位置,悠境繁华,左右逢源。项目所处地段商圈为世界500强企业总部基地,空间设计上具备城市客厅的顶级商务功能,城央之上,信步闲庭,运筹帷幄。

东海国际公寓|户型实景图
大平层产品除了200平米,还有320平米之选,以大湾区山海为气场,美国曼哈顿顶层住宅的豪华生活方式为蓝本,HBA、凯达、梁志天世界名家让产品既得空间的丰富功能,又享受设计带来的生活仪式感:客厅270度景观归家就是海阔天空、卧室套房设计、浴室山海景观、厨具采用德国嘉格纳等国际品牌,甄选名贵进口大理石,多工艺极考究装修,打造空间美学新境界。

东海国际公寓|户型实景图
196-400㎡复式
东海国际公寓的复式采用标准层双层立体结构,上下两层一户,上层为卧室和书房,下层为卧室、客厅、厨房等。即上层为非待客区域,下层为娱乐中心,这样既保证了居住的私密又不失空间的开放性,颇具空中别院风格。无论是居住还是活动,皆可实现互不干扰。
复式三房四卫、四房五卫,全屋品牌家私,塘朗山景、深圳湾海景及城央繁华,当属中心高配之选。

东海国际公寓|户型实景图
三层式天墅
作为东海国际公寓产品的集大成者,被媒体誉为“中国豪宅产品的样板”的 “天墅”在深圳领空开启空间新境界。
在空间的规划设计上,天墅的客厅近7米高挑空,天际之上的宫殿感油然而生;而客餐厅达到近30米的开间,款待重要宾朋的豪华盛宴自然不在话下,锦上添花的是配备了五星级酒店式的中西厨房,厨具采用德国嘉格纳、美诺等国际顶级品牌,待客之道“烹饪”而来。



东海国际公寓|户型实景图
休闲时光,超9米开间、10米进深的私家恒温泳池是惬意的不二之选,星辰云霞辉映,遨游一番高空世外桃源。

东海国际公寓|户型实景图
再细品天墅的其它设备,既能满足日常使用之高要求更跃升至至尊级的非凡体验,室内私家电梯,畅达泳池、卧室、客厅各层,互不干扰;HBA等名家设计,卧室皆为套房,进口大理石极考究装修,宽敞衣帽间,浴室山海景观为背景;同时还配备了偌大的私家酒窖,恒温、避光,设施完备,珍藏喜好与品位,一杯佳酿摇曳天际品位。



东海国际公寓|户型实景图
只为高端 • 东海品质
二十六载豪宅开发运营,深圳香蜜湖缔造者,陆续开发了东海花园、君豪阁、东海十八居、东海国际公寓等豪宅,50万㎡城市综合体东海国际中心,东海缤纷天地、东海城市广场、东海坊等商业。
在航空运输、五星级酒店等领域取得长足发展,东海航空、东海公务机拥有通达50多个城市的80余条航线。
东海航空商务中心、东海商务中心占据深圳、北京两大空港,呈献高品质写字楼、商务公寓等典范商务所需。
传承世界品牌服务内涵,东海朗廷酒店、北京康得思酒店,缔造周到细致的五星宴客专属体验。
匠心耕耘,示范前行,东海集团为追求高品质居住生活圈层注入更为丰富的价值内涵。







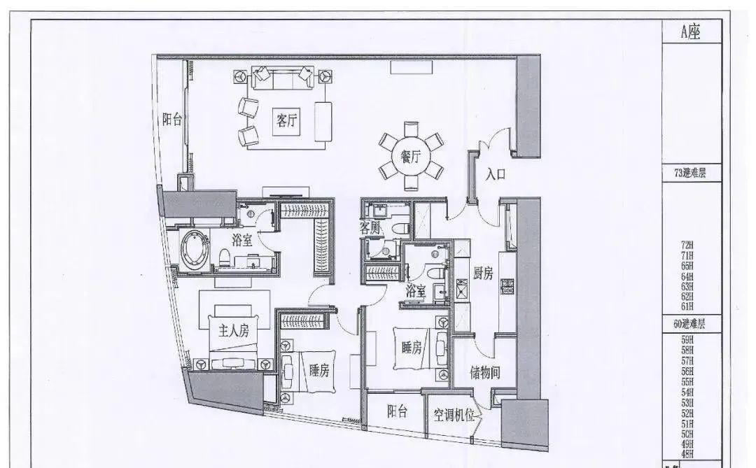
户型图













F单元平面图


H单元平面图




