
▲外观
从晨曦到日暮,
在纸上作诗唱和。
看那书韵流芳的禅定,
一面记载着过去的历史,
另一面把城市导向未来。


在城市进程中,喧嚣与宁静的矛盾聚合,激发人们渴望拥有一处可消弭感知界限的空间。衍生的新场景通过以纸为媒拓展空间边界,可引导人们知觉、想象和情感体验,静阅时光,诗意地栖居在这大地上。

▲造纸工艺
回归这片土地,江西纸文化历经千年积淀深厚,时至今日,在具象而细微的生活中,皆以独特的方式传承其价值理念。南昌江铃新力铂萃中央项目择址于此,将糅合纸文化传承与现代艺术之美,通过一系列场景串联,对空间展开文化艺术探索,建构城市与人居精神性链接的场所。


▲接待大厅
为此,设计师以“一纸阅时光”为设计脉络,巧妙将材质进行不同工艺处理,达到简化肌理且呈现不同效果。希望在具备商业功能的同时,还构建文化交流的平台,为南昌带来一种新的居住生活形态,实现共建美好生活的愿景。
01 纸为木,木为峰

▲意向图
刘易斯·芒福德曾表示城市的标志物是它那目的性很鲜明的、无比丰富的社会构造。回顾纸文化,汲取“纸为木,木成林”的背景为场所养分,增添倾斜而平衡的艺术装置呈现,从而形成区域间主题的关联,给予观者一种新场景能量的主观感受。

▲艺术装置


▲接待大厅
步入接待大厅,宁静淡雅的空间给人营造了自由惬意的氛围。天花的木质材料连接形如山坡,汇集硬朗的石材、利落的线条镌刻成文。
02 纸的探索与雕刻

从光影律动到回纹图样,纸元素碰撞如同一个个鲜活的细胞,展现出强大的生命力,汇聚能量和纹理转化为新的形式。

▲设计剖面图


▲模型区
天花在原建筑基础上延伸了“书脊”造型,让书卷气油然而生。两侧大面积落地玻璃幕墙,让室外与室内的冷暖光线根据日月变化相互交织,光影肆意舞动。



▲洽谈区
为呼应“纸”的内敛谦逊的气质,洽谈区选取的暖色系的环抱型组合家具,与上方模型区隔空对话。整个空间在简练中散逸出悠然气息,营造舒适的互动氛围。

▲借「纸网」概念,构建虚实相生的屏风




▲水吧区
纸以其可塑性脱颖而出,成为设计探索创新的关键材料。于此,设计师在举架高敞的空间中,取日本特殊“和纸”材质构建纸网概念,形成虚实相生的屏风伫立在水吧区后方,随影入画,创造光与影的微妙反应。



▲走廊
漫步行移,一步一景。走廊以通透的玻璃幕墙隔而不隔,界而未界。观赏室外潺潺流水之余,同时把视觉落在妆点角落的艺术盆景,娓娓道出空间宁静致远之感。
03 纸艺人的书吧


▲设计轴测图

▲书吧
以纸为媒,在温润的世界里呈现诗意般的人居艺术。延续此概念,设计师在后场空间形成新零售书店的设计思路,为访者提供一种新型的共享型生活方式。


▲书吧
阅读环境极大融入艺术人文主题,临摹一位纸艺人的书吧为场景概念。以收藏图书上万余册,涵盖文学艺术、影视摄影、生活休闲、和少儿读物等品类,并在书架的各处设有休闲桌椅,让业主慢慢行走在书的世界中,给自己多一些恬静的时光。






▲书吧
为加强阅读光影随行之感,设计师在每一步都留有大面积的可透视窗口,窥见绿意的丰盈流动,配以纸艺软装的点缀,为规整的书吧带来趣味。




▲书吧
在整体空间中,以开放流畅的设计动线,充分从形式上考虑了空间开合的有序性,创造一种轻松舒适的阅读环境,徜徉其中,斑驳流光,静阅时光的悠然之美。






▲艺术装置
书籍、电影和艺术品等物件被看似随性却是有内在联系地摆放在特定区域,以引起共鸣姿态渗透品质生活的追求。


▲运动区
步入运动区,放射型LED光带隐藏在半透明的亚克力天花内部排列,开放式器械区、重力区,在光影映射下,当人们身处其中,感受空间与光影的叠加,所见、所触、所感,于细节处可见品质。

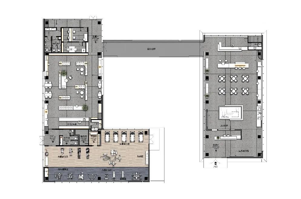
▲平面图
空间的更迭佐证城市的发展。回顾本案,设计师从提倡社区共生出发,以“一纸阅时光”的模式构建场景体验,结合现代艺术探索,为城市构建功能、美学生活于一体的多功能艺术空间。
*注:意向图来源于网络,侵权即删。
项目信息
项目名称:南昌江铃新力铂萃中央售楼部
业主团队:新力地产
室内设计:奥迅设计,奥妙陈设
硬装主创设计师:雷诗俞,陈恩泽
软装主创设计师:何虹燕,颜嘉琳
设计面积:760㎡
项目摄影:黄早慧,彭传恒
关于设计团队

奥迅设计成立于2013年,是一家拥有近200人的专业室内设计顾问公司,专注为国内外高端地产市场提供专业优质的室内设计服务。团队核心成员均曾服务于国内外知名设计集团,凭借其丰富的设计经验、国际化的先进设计理念以及成熟完善的管理制度,目前和众多大型知名发展商建立了长期友好的合作关系。

奥迅目前已获得来自业界多个奖项的肯定,包括意大利A'Design奖、美国缪斯设计大奖、日本IDPA奖、APDC奖、台湾金点设计奖、中国室内设计TOP100、金外滩奖、国际设计传媒奖等多个国内外大奖。
(来源:奥迅设计,版权归原著所有,文章由中装协设计网编辑整理)
