平面布置图的详细制图步骤,是怎样的呢?
这里提醒一下:每个公司的制图规范不同,所以制图步骤和画法也有差异。
下面以我们dop的制图规范,讲解一下平面布置图的绘图步骤:
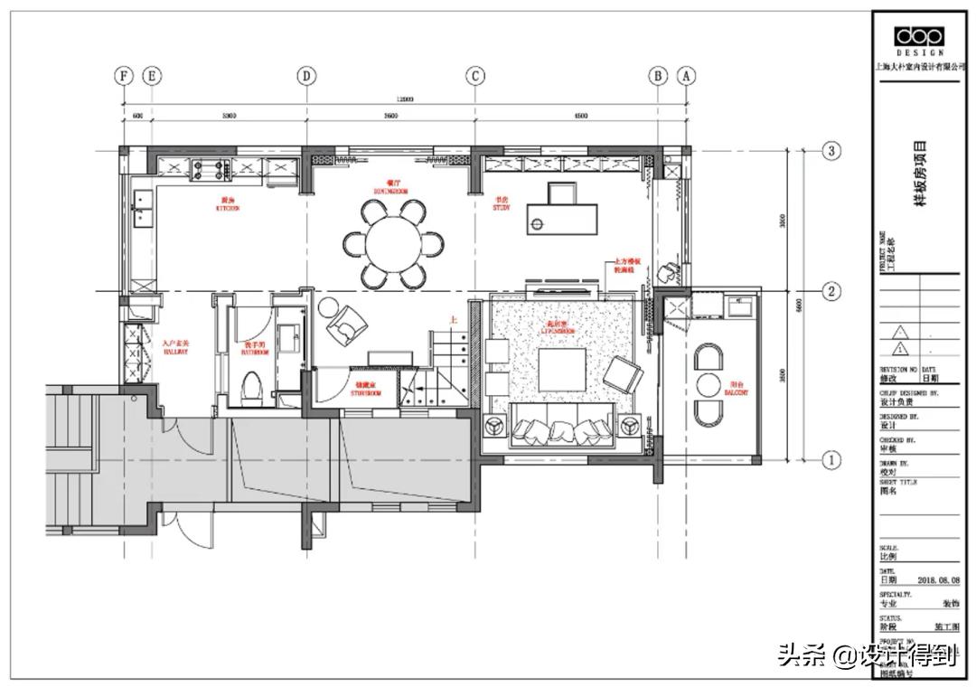
1、模型空间的绘制
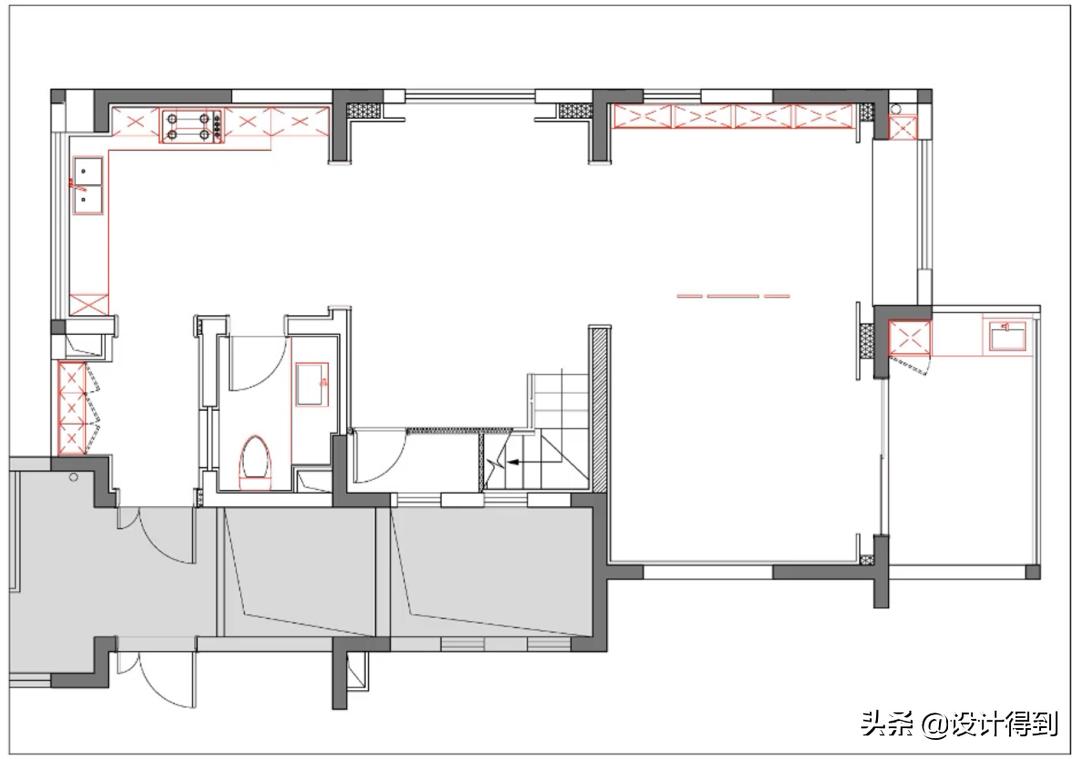
a、 添加建筑底图的外部参照文件

b、 根据设计方案添加新建墙体

c、 根据方案添加墙体完成面

d、 根据设计方案添加楼梯

e、 添加门、门套

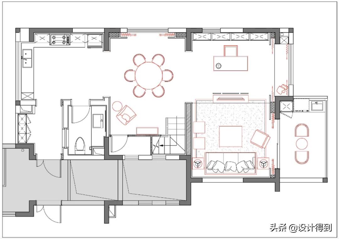
f、 添加固定家具

g、 添加活动家具

h、 添加地灯、壁灯及固定家具灯带

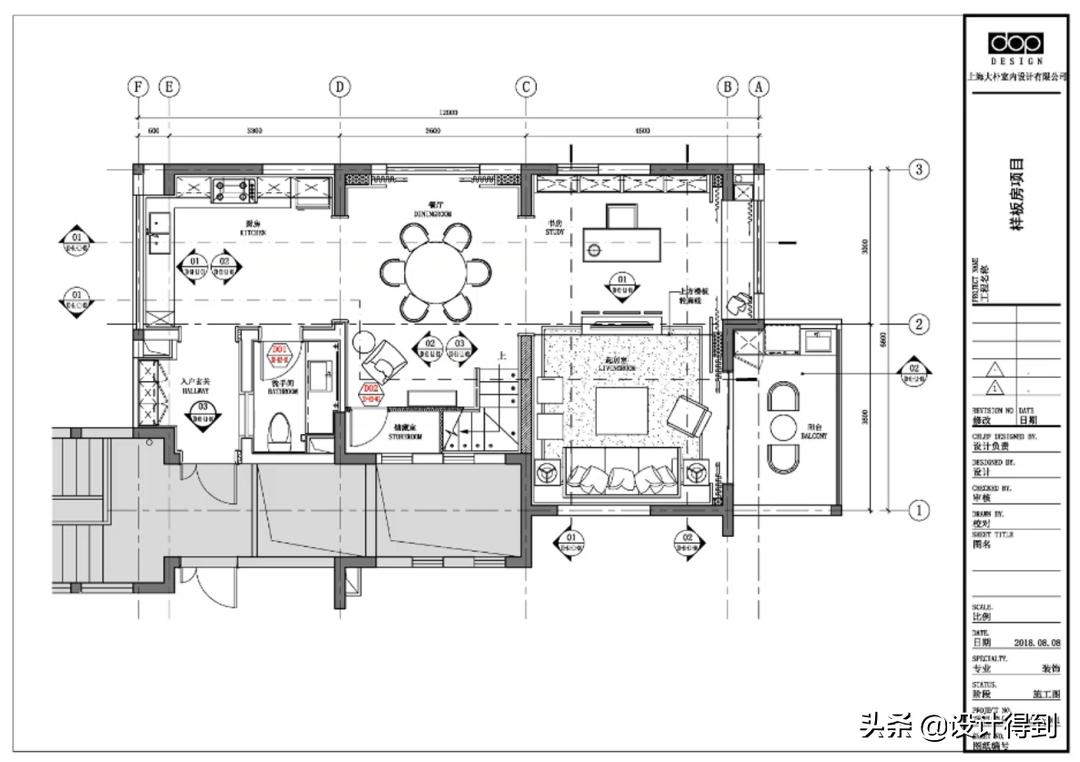
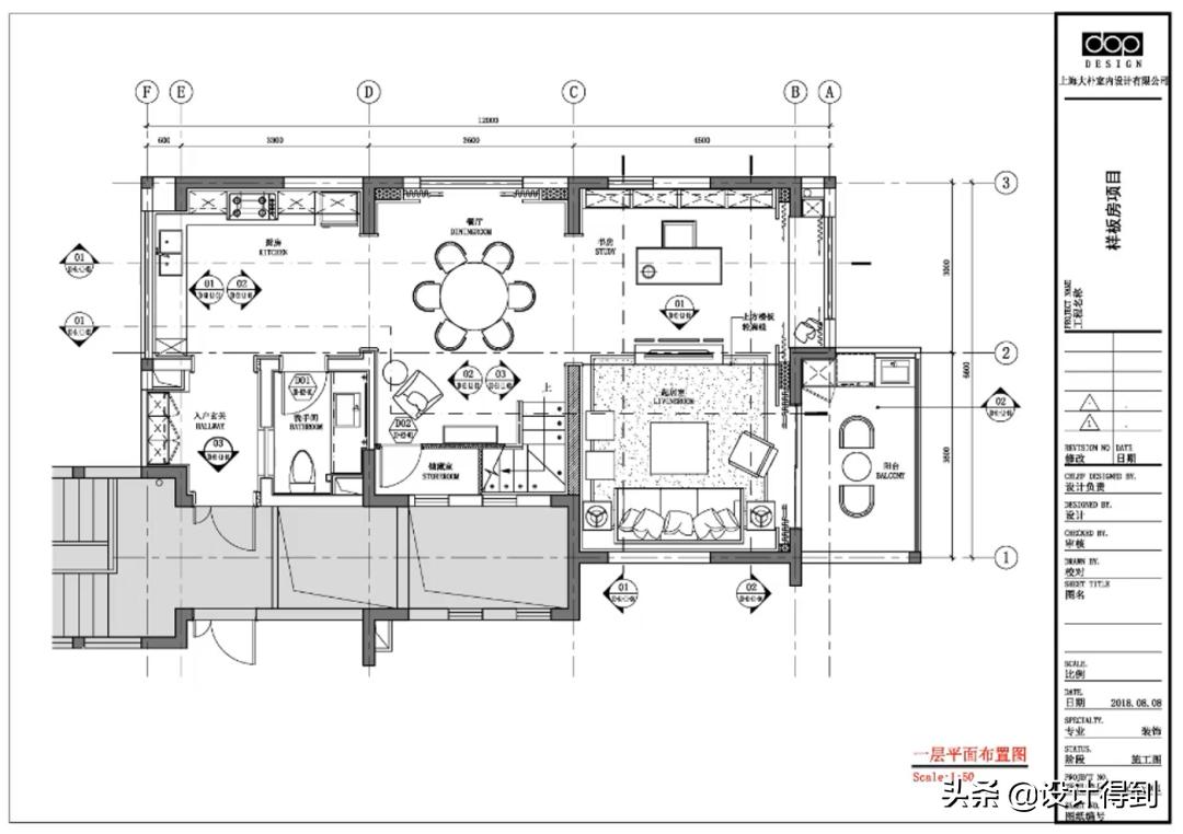
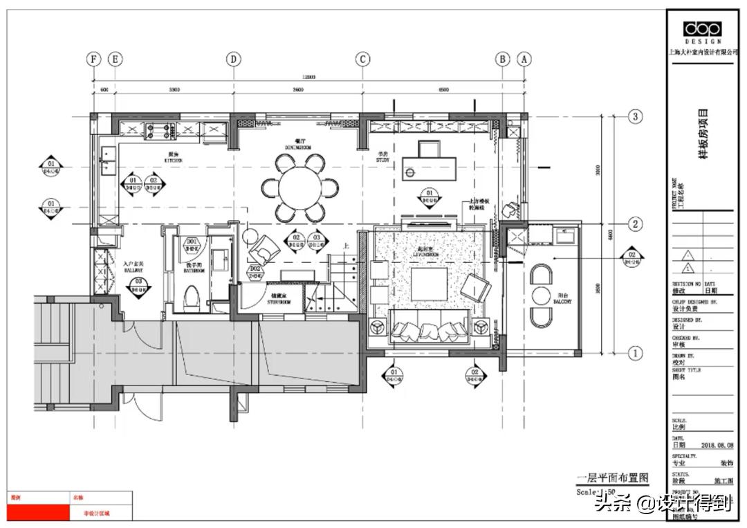
2、布局空间的绘制
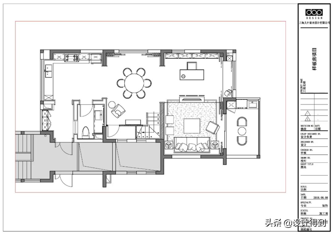
a、 添加图框

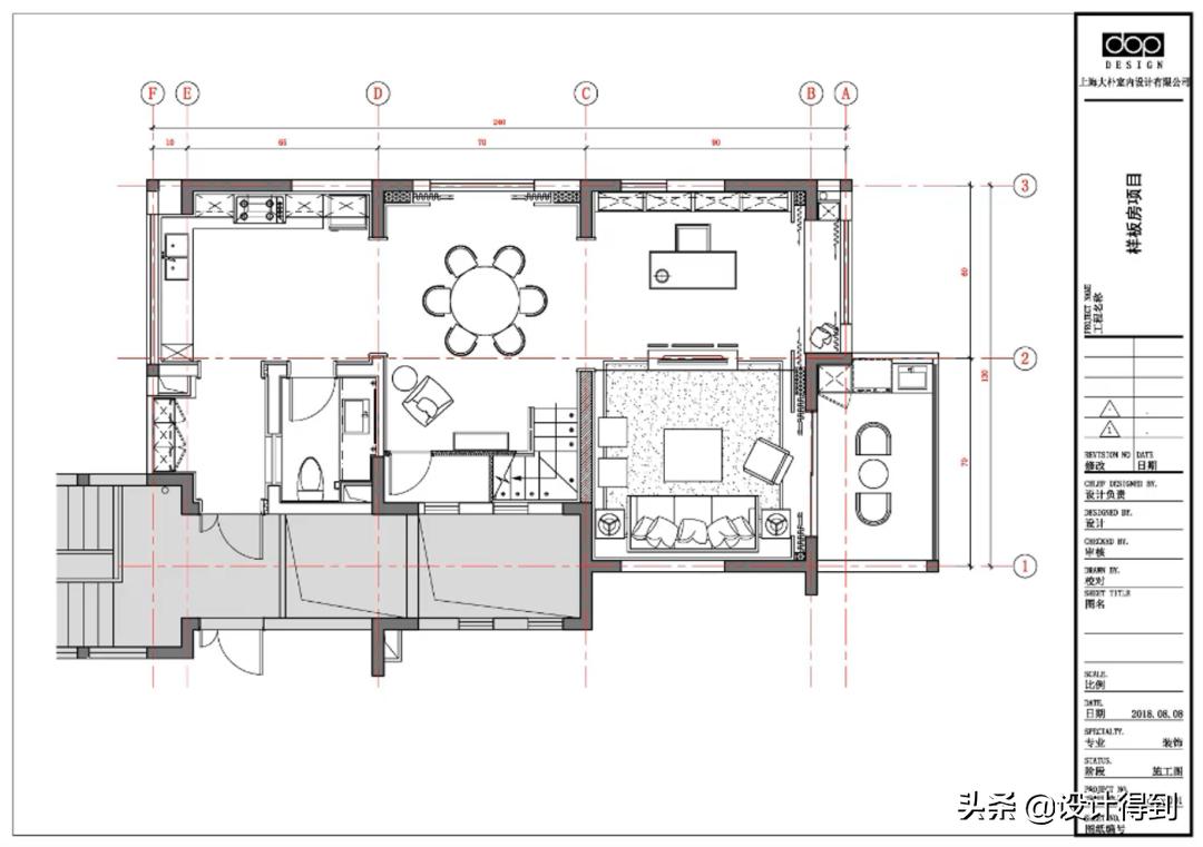
b、 创建视口

c、 添加轴线、轴号以及轴线的尺寸标注

d、 添加文字信息

e、 添加立面索引符号

f、 添加门索引符号

g、 添加图名

h、 添加图例

i、 完善图框内容的文字信息
