
东莞橙果传媒办公室
摄影:白羽
设计单位 间外建筑工作室
项目地址 广东省东莞市西湖公园
建筑面积 120平方米
建设周期 2017年5月—11月
项目位于东莞南城区西湖公园里一个汇聚许多集装箱建筑的创意园区。它位于一个山脚下的空地,附近林木茂盛,环境优美。这里以设计公司,广告或媒体类公司为主。

建筑外形 摄影:白羽

建筑被树木环绕 摄影:白羽
业主对项目提出三个要求:第一是为员工提供可以24小时工作与生活的环境,第二是希望能在密集的园区里拥有自己的院子,第三是要以集装箱作为主体建筑。由于高度被限定,主体建筑最高为三层,另外建筑投影面积不能超过6×9米(等于两个3×9米的集装箱大小)。

各层都有不同的功能 摄影:白羽
三个楼层根据功能分别被划分为公共、半公共与私密空间。一层的主要功能为咖啡厅,人们可以从西边园区的道路或东边停车场进入。一层建筑大小只有6×4.5米,集装箱后退的空间被作为咖啡厅的半室外区域利用。由于南方的天气比较湿热,采用骑楼式的后退形式,屋檐为人们提供了一个乘凉的空间。在天气好的时候,业主会在这*放播**电影或举行活动。

围墙入口处 摄影:白羽


一层咖啡厅 摄影:白羽
外挂的楼梯通往着二、三层的空间。二层作为主要办公区使用,其南北侧的落地玻璃为人们提供了享受观景的机会。

外挂楼梯 摄影:白羽


二层办公区 摄影:白羽
三层是业主自己的住所,平面大小是3×9米。整层户型呈开放式设计,卫生间大面积朝向树林。住所部分的阳台距离地面6米,被树木三面环绕,从而在这里休憩时既在树荫的庇护之下,又能从上方俯瞰西湖公园的风景。

三层住所区 摄影:白羽


三层阳台 摄影:白羽
基地的东边是停车场,南边则是一个建成的集装箱办公室,两边环境条件一般。为了保持私密性以及隔离噪音,团队设计了一层高、平面为L型的白色围墙。它不单为建筑围合了一个内院,更是连接与延伸了空间。在晚上,它也可以用作电影的投影板。


院子的白围墙 摄影:白羽
在建筑设计上,设计团队希望摆脱集装箱给人那种临时性与工业化的感觉。在外皮材料上,通过将外皮材料更换为平整的铁板,集装箱的结构与外皮统一成了黑色的色调,一方面可以模糊结构与外皮的关系,另一方面突出建筑体块在基地中的重要性。围墙的位置根据现场保留的三棵大树设计,使它们变成了院子的重要部分。

立面细节 摄影:白羽

一层平面 ©间外建筑工作室

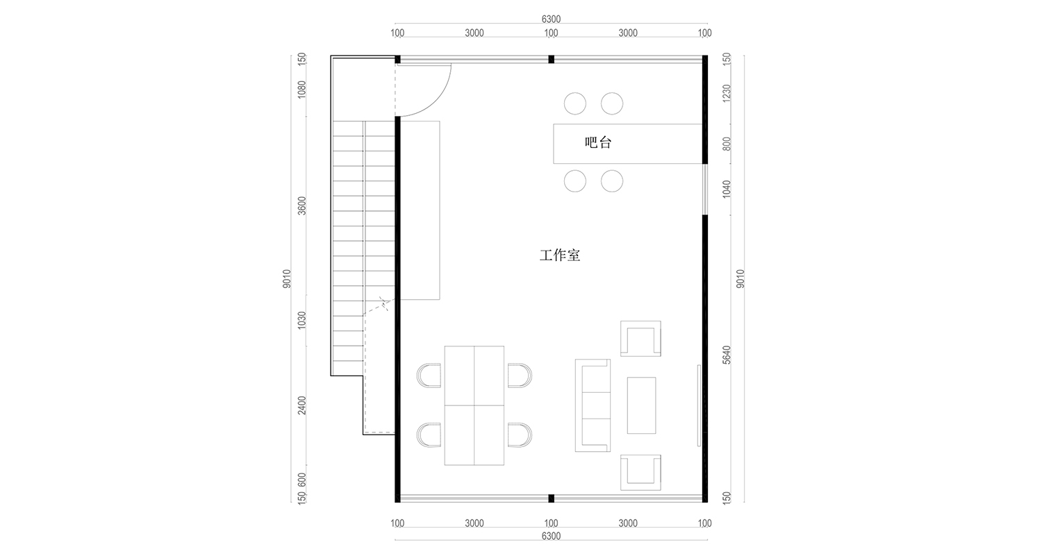
二层平面 ©间外建筑工作室

三层平面 ©间外建筑工作室

北立面 ©间外建筑工作室

东立面 ©间外建筑工作室


轴测图 ©间外建筑工作室
完整项目信息
项目名称:东莞橙果传媒办公室项目地点:广东省东莞市西湖公园基地面积:110平方米占地面积:60平方米建筑面积:120平方米建筑层数:3层设计单位:间外建筑工作室 主持建筑师:冯国安设计团队:吴卓颖,杨宇设计时间:2017年2月—5月建造时间:2017年5月—11月摄影:白羽
版权声明:本文由间外建筑工作室授权有方发布,禁止以有方编辑后版本转载。
投稿邮箱:media@archiposition.com
关键词:
东莞橙果传媒办公室
间外建筑工作室
项目
2
1
0
上一篇:《药神》天价药的草药园,长什么样?
下一篇:轻触:深潜赛艇俱乐部 / 山水秀建筑事务所
参与评论
登录评论
热门标签
中国空间研究计划
建筑师在做什么
建筑师访谈
建筑讲座
有方招聘
行走中的建筑学
项目
视频
更多推荐

北上广深2021重点/重大项目公布,四大一线城市正忙着建设什么?

第一届中国建筑传媒奖最佳建筑奖入围作品:香港湿地公园

荷兰国立博物馆菲利普翼展馆:多次改造成就低调与复杂 / Cruz y Ortiz Arquitectos

陶磊自宅:只与生活的日常有关 / TAOA陶磊建筑事务所

涠洲岛民宿改造:青骊拂晓 / 间外建筑工作室

2017年密斯·凡·德·罗奖将从它们中诞生
订阅有方最新资讯
立即订阅

关于有方 加入我们 合作伙伴 版权说明 帮助中心 联系有方
© 2016-2021 www.archiposition.com | All rights reserved | Powered by Dianzhantech
版权所有有方 粤ICP备13041838号

