


这个坐落于Sevkabel港口的海边溜冰场隶属于对历史悠久的西门子和哈尔斯克工厂的大规模改造项目,该项目位于瓦西里岛上。

溜冰场的主题结构灵感来自于其坐落在海边的地理位置以及工业背景。近乎是矩形的溜冰场紧紧地贴合在围栏和现有的工业建筑之间。


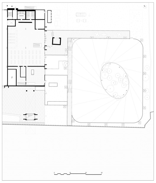
平面图

在溜冰场的中心,有一个被圈起来的小圆岛,里面种着的是保存完好的树木。这个圆岛自然地把溜冰场分成了几个区域。在一层,溜冰场与现有的建筑连接,那里是出租装备与更衣的地方。

为了维护从建筑物内部进入到堤坝的通道,设计师在溜冰场出口处安装了一座桥。这座桥不仅将溜冰场与Sevkabel港的不同区域连接了起来,还可以被当作一个能够欣赏溜冰场全貌和风景如画的海岸线的观景平台。

材料和建筑简单而有效 - 木质松木板被用于覆盖外部结构,而租赁区的内部则主要使用了波纹马口铁,并在翻新的基础上保留了车间的原始纹理。灯条上使用的明亮的霓虹灯与溜冰场主题设施的内敛本质形成了强烈对比。

建筑师:AB CHVOYA
面积:2000 m²
项目年份:2020
摄影师:Grigoriy Sokolinsky
厂家:Adobe, AutoDesk, Trimble
设计团队:AB CHVOYA