
项目名称
北京顺义李家现代别墅
图纸编号
1022
建筑面积
257.43㎡
占地面积
96.36㎡
建筑尺寸
9.6m×13m
建筑结构
砖混结构
参考造价
48万元(不含室内装修费用)
项目概况

△总平面示意图
基地情况:
东:邻家住宅
西:邻家住宅
南:村内道路
北:原有老房
项目简介:
业主前期提出一层和二层布局要分开,同时要求南侧新建建筑与北侧老房连通。根据场地情况和业主要求,建筑最终选择现代风格。
平面布局
户型概况:
3层 / 6室 4厅 4卫 2厨 2储物 1阳光房

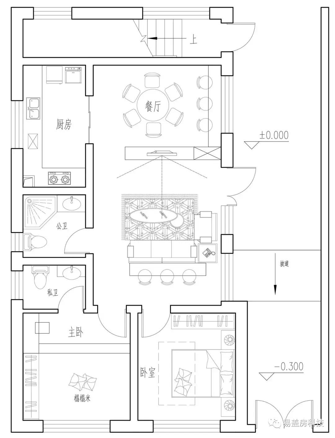
△一层平面图
依据现实中存在的问题,建筑东侧预留过道,充当新建建筑的主入口,同时连通南侧新建建筑与北侧老房。
因为业主要求一层与二层区分开来,所以楼梯间单独布置在北侧,与室外直接连通。一层采用开放式布局,客厅、餐厅一体设计让空间更显大气。
卧室位于南侧,老人房具有独立卫生间,极好方位和合理布局让室内使用感极佳。

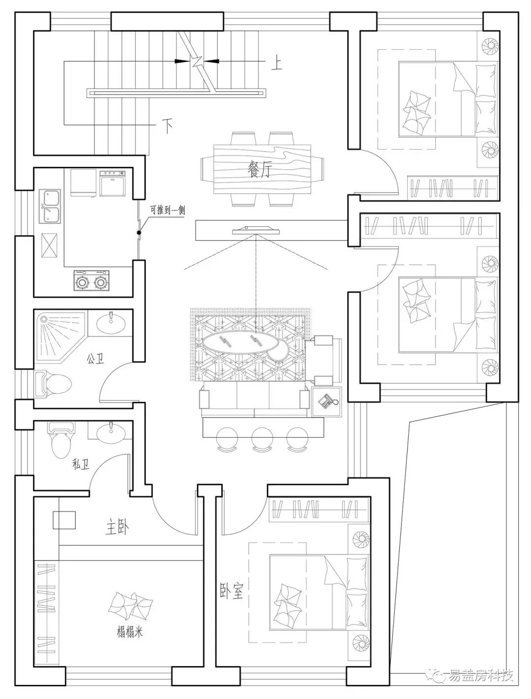
△二层平面图
二层为业主主要使用空间,因此整层布置四间卧室。客厅位置为了保证充足采光,利用天窗进行补充。尽管面积有限,但卧室均有直接对外的窗户,保证居住环境的品质。

△三层平面图
三层南侧作为露台使用,室内则以储物功能为主。阳光房的预留提供了室内观景空间,与露台相辅相成,为业主及其家人提供更好功能搭配。
造型设计

△鸟瞰图
建筑整体为现代风格,立面以白色为主,轮廓部分使用深色强调,配合暖色系的木质建材形成层次分明的造型。

△鸟瞰图
客厅位置采用纵向、与周围墙体颜色不同的处理手法强调垂直体量。不同处理手法让建筑具有更加丰富的层次。

△鸟瞰图
一层卧室部分考虑到使用私密性,窗户全部采用高窗。利用大面积窗框增加窗户在视觉上的面积,让建筑整体更加和谐、舒适。

△鸟瞰图

△鸟瞰图
露台以休息区域、植物景观为主,错落有致的布局让空间更显开阔。阳光房提供室内观景、休闲场所,使得使用功能更齐全。

△鸟瞰图

△南侧效果图

△东立面图

△西立面图

△南立面图

△北立面图