欧式风格让是目前农村自建房领域最为流行的一种风格之一,各种欧式元素:罗马柱、扶手花瓶、檐口线条、弧形窗、拱形门洞和落地窗都十分大气,深受大家的喜爱。
平时也给大家分享了很多欧式的小别墅,今天给大家换换口味,带来一些传统的中式农村别墅,更加接地气,赶紧一起看看吧!
第一套
别墅效果图:外观典型的中式传统风格,古色古香,低调大气,永远不过时。

平面布局图:将车库设计在房屋北面,可以将更多阳面空间留给日常生活区域。


第二套
别墅效果图:简单大方造型造价不高,明亮柔和的配色富有家的温度感,非常适合农村自建。

平面布局图:一层设2间卧室,可作为老人房和客房,餐厅也是独立式的,不会对生活环境造成影响;二层2间大卧室1间小卧室,可以自己和孩子住,露台也够大,能满足一家人的需要。


第三套
别墅效果图:简单低调的外观,在窗台上种上些花花草草也是很美的风景。

平面布局图:共有四个卧室,全部在南面都有窗户,采光很好,而南面无法开窗的区域则被设计成了厨房、餐厅、储藏室、楼梯、卫生间等。二层还带有一个小公共区域,可以作为小起居室来使用。


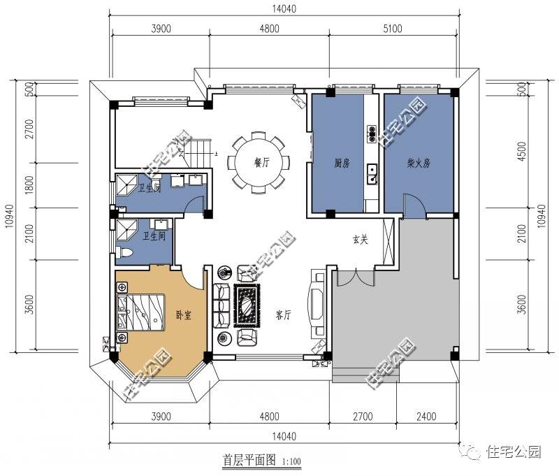
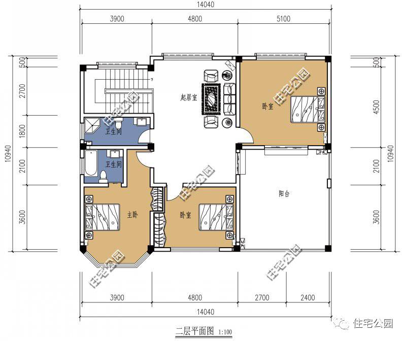
第四套
别墅效果图:以现代的外观和坡屋顶的建筑设计而成,追求简洁之美,讲究室内的日照率和通透性,房子前后有大型窗户设计,两侧也有相应的条形窗,室内全天都能保持亮堂堂。

平面布局图:入户平台很大,它可以做车库,雨天可以将车辆存放此处。在挨着厨房的位置,有一个独立的柴火房,从入户平台一侧可以进入,这样设计既能满足咱老百姓传统的烹饪方式,也利于室内干净。


第五套
别墅效果图:灰瓦白墙,木质窗棱,仿佛从建筑语言里便可读到小桥流水人家的诗意生活。设计者将江南水乡的建筑风格打破再重组,用言简意赅的设计手法设计出意蕴深长却更实用经济的简中式别墅。

平面布局图:别墅布局设计,注重家人之间的沟通,强调公共空间的设计;棋牌室、茶饮区、露台等,丰富主人一起的日常起居生活。


第六套
别墅效果图:砖混结构,破屋顶错落有致、造型优美。整体大气美观又经典,不会那么快过时,在农村建一套这样的别墅,绝对有面!

平面布局图:户型整体设计较为实用,多卧室,多储物间,方便多人口的大家庭居住。



你最喜欢哪一套设计呢?
微信公众号:住宅公园,500套别墅图纸,别墅施工专家答疑。