一、工程概况
屋面为平屋面,面积约为2400㎡。防水等级为Ⅰ级,两道设防,防水层为3+3厚聚乙烯膜聚酯胎Ⅱ型SBS改性沥青防水卷材,防水结构为正置式屋面,屋面坡度2%,具体做法如下:
(1)20mm厚DS砂浆面层(按1*1m分格,缝宽10mm)
(2)50mm厚C20细石混凝土(配Φ6@200钢筋网)随打随抹平,每4*4m分缝,缝宽20mm,缝内下部填B1硬泡聚氨酯条,上部填耐候密封膏。
(3)无纺布隔离层
(4) 3+3厚聚酯胎SBS改性沥青防水卷材
(5) 20mm厚DS砂浆找平
(6) 最薄50mm厚加气混凝土碎块垫层找坡2%
(7) DEA砂浆粘贴70mm厚硬泡聚氨酯板保温层
(8) 钢筋混凝土屋面板

二、施工要点
1、施工工艺流程

2、硬泡聚氨酯板施工要点
2.1屋面施工前基层应清理干净。穿屋顶的管道根部用细石砼填塞密实,作好转角处理,将管道根部固定,雨水口等处堵严,防止杂物落入。
2.2屋面表面应平整,无蜂窝、麻面、鼓包、剥落、裂缝等现象,模板板缝用砂轮打磨,局部不平应抹成顺坡。
2.3基层经监理单位验收合格后,开始铺放70mm硬泡聚氨酯保温板。本工程保温板采用DEA砂浆粘结,保温板与砂浆应贴严、粘牢;保温板与保温板的拼缝应相互错开,缝隙应用碎屑嵌填密实。
2.4女儿墙内侧30mm厚聚氨酯保温板在卷材范围内不得使用锚栓,应采用满粘法贴保温板。
3、加气混凝土块找坡层及找平层施工要点
3.1屋面找坡层为加气碎块混凝土找坡,现场采用干铺加气碎块的方式施工。加气碎块粒径不大于30mm。
3.2根据落水口设置位置按设计要求找坡,找坡层向落水口找坡坡度为2%,找坡方向为垂直于四周女儿墙的方向,计算出找坡层至女儿墙边的找坡厚度后,在女儿墙上弹找坡层高度控制线,然后拉通线制作高度控制灰饼。
3.3找坡层施工时,应采用平板振捣器将混凝土振捣密实,其抹平高度、找坡方向应与灰饼一致。
3.4找平层与找坡层一起施工。此施工方法既可节省工期,又可简化工序,提高作业效率。找坡层压实后,经验收合格后,立即铺20mm厚DS砂浆找平,找平层应在水泥初凝之前压实抹平,水泥终凝前完成二次压光。找平层应满足坡度要求。
3.6找平层施工完成并终凝后,采用切割机进行切缝,缝宽宜为5mm~10mm,纵横缝的间距不宜大于6m。本工程根据屋面具体尺寸,按照间距不大于4m进行切缝,缝宽为10mm。
注:3.6数据来自GB50207-2012《屋面工程质量验收规范》
3.7找平层施工完成后,对基层进行检查,局部缺陷进行修整,并在女儿墙底、管井底部、出屋面设备房周边及设备基础周边等部位做半径不小于50mm的圆弧,对于阳角部位进行打磨或抹水泥砂浆等处理,做好防水层的施工准备。
3.8养护:找平层抹压平整后,24小时后洒水养护7天,结合养护进行局部淋水试验,以检查找坡是否符合规范要求,有无积水现象。
4、防水卷材施工要点
4.1工艺流程:

(1)基层处理:防水卷材粘贴前,应将基层表面的垃圾,灰尘清理干净。防水施工前基层含水率应满足要求。基层的干燥程度可采用现场检查,即将1m2 卷材平坦地干铺在找平层上,静置3h~4h后掀开检查,找平层覆盖部位与卷材表面未见水印,表明基层干燥程度满足要求。大面积涂刷底油前应先将边角、管根、雨水口等处先涂刷一遍,涂刷时要均匀,不得漏刷、露底。待基层处理剂干燥后应及时进行卷材防水层施工。如基层处理剂未干燥前遭受雨淋,或是干燥后长期不进行防水层施工,则在防水层施工前必须再涂刷一次基层处理剂。
(2)铺附加层:在墙体阴阳角及转角处、预埋水、电管根部等先做一层不得小于500mm宽的附加层,交角每边各250mm,要粘牢贴实。
(3)铺贴防水卷材:
①卷材按平行屋脊铺贴,接缝按顺流水方向,防水施工前按卷材幅宽预先弹线。
②将防水卷材按铺贴长度进行裁剪并卷好备用,操作时将已卷好的卷材端头比齐起铺线,点燃汽油喷灯,加热基层与卷材交接处,喷灯距加热面保持300mm左右的距离,往返喷烤。观察当卷材的沥青刚刚溶化(即卷材表面光亮发黑)时,向前缓缓滚动铺设,要求用力均匀、不窝气。铺设压边宽度应掌握好:长向搭接宽度为80mm,短向搭接宽度为80mm。相邻两幅卷材短边搭接接缝相互错开500mm以上,上下层卷材长边搭接缝应错开,且不得小于宽幅的1/3。铺贴时将卷材自然松铺且无皱折即可,不可拉紧,以免影响质量。
注:4.1数据来自GB50207-2012《屋面工程质量验收规范》
(5)封口收头:卷材端头用压条和水泥钉固定于女儿墙面预留凹槽内(凹槽距屋面高度不小于250mm),然后用改性沥青密封膏嵌缝密封。
(6)待所有防水层全部铺贴完毕后,用喷灯沿接缝往返加热,用抹子压平、压实,不得翘边、打折、烤焦,自检合格,并通知工程监理进行防水层验收。验收合格后,进行24小时蓄水,蓄水高度应保证高出屋面最高点20mm。在保证无渗漏后方能做保护层。
5、混凝土保护层施工要点
1 防水层24小时蓄水试验合格后,方可开始防水保护层施工。
2防水保护层施工前,应通知机电部门完成与保护层有关的机电安装工程,隐蔽验收合格后再进行防水保护层施工。
3保护层施工前先铺一层0.4mm厚聚氯乙烯塑料薄膜隔离层。
4为防止屋面开裂现象,分格缝按面积不大于16m2、间距不大于4m控制,缝深50mm,并尽可能保证分缝均匀、整齐。在混凝土保护层施工前,应完成面层分格排版图,并根据排版图在保护层上设置分格缝,分格缝宽度为20mm。
5细石混凝土由商品搅拌站负责供应,坍落度控制在140mm左右。保护层内设置Φ6.5@200的抗裂钢筋网片,居中设置。钢筋网片在分格缝处断开,端部制作180°弯钩。
6混凝土浇筑前进行分仓,采用20厚50宽挤塑聚苯板作为分仓条,混凝土浇筑时,注意分仓条位置、顺直度控制。
7每仓保护层混凝土浇筑完成、表面大致平整后进行搓毛,增强表面毛糙度。
8保护层浇水养护时间不少于7天,防止保护层开裂。浇筑完成3天内表面不得堆载重物或集中上人作业,尤其注意每仓边角部位的保护。如不慎发生开裂、破损等现象,应及时进行返工处理。
9平面保护层施工完成后现场检验其强度,可以上人作业时,再进行女儿墙、设备基础、管井、设备房等立面根部圆弧造型。圆弧造型保护层应适当减小混凝土坍落度,以便于成型。圆弧造型采用专用模具成型。模具采用木枋、多层板制作90°圆弧,半径分别为250mm(女儿墙)、200mm(设备基础及风帽等),表面衬0.3厚镀锌铁皮,使其表面光滑,易于成型。圆弧表面也应设置分格缝,与平面分格缝对应,宽度一致。圆弧沿纵向应顺直,表面搓毛。
6、DS砂浆面层施工要点
6.1屋面面层采用20厚预拌水泥砂浆面层。面层砂浆必须为同一厂家、同一型号、统一生产批次的干拌砂浆,以免造成面层色差问题。
6.2细部分缝
细部分缝宽度为10mm,细部分缝尺寸以1000×1000mm的正方形为基数,可以根据实际分格缝尺寸进行小范围内调整。屋面小分缝之间为正错缝。做法如下图(以分仓缝间距4m为例):


分仓缝与细部分缝设置方法
屋面面层大面施工完毕,砂浆终凝后用切割机切缝,切缝前应先弹线,经楼座负责人确认后开始切缝,

工程实例
6.3女儿墙等处立面面层
女儿墙内侧施工方法同外墙。底部圆弧使用专用模具初步成型后,用铁抹子抹压、修补。此处作业对工人水平要求比较高,应选择专业水平高的专业抹灰工进行。抹灰完成后,及时浇水养护,底部圆弧分格缝,应与地面分格缝一致。
7、细部节点施工要点
7.1女儿墙根部处理
女儿墙泛水高度为面层上250mm(600mm高女儿墙防水做至压顶下),女儿墙根部处保护层和面层做半径为250mm的圆弧,圆弧底部设置10mm宽分格缝,如下图所示。分格缝以上部位为涂料面层。

7.2设备基础
本工程设备类基础、上反梁防水应将全部包裹,以保证防水的完整性。设备基础及反梁顶面在防水工程施工完成后,抹20mm厚DS砂浆保护层,然后再安装顶部设备,安装设备时如用螺栓等固定时,应用密封膏封闭相应位置。在设备基础及反梁泛水处保护层和面层底部做200mm圆弧,圆弧底部设置10mm宽分缝条,设备基础外侧采用涂料面层。做法如下图所示:

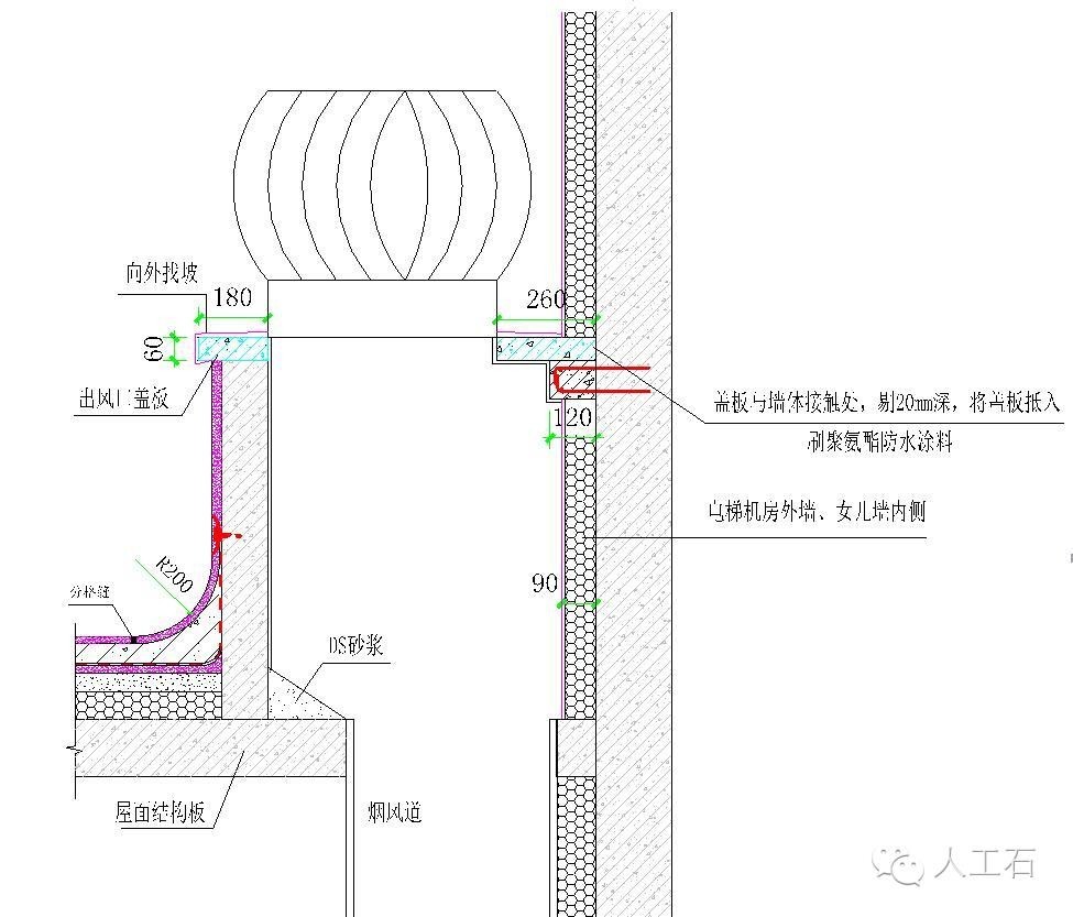
7.3出屋面风帽
本工程所有风帽周边圆弧半径为200mm。风帽下墙面防水工程施工完成后,做20mm后预拌砂浆保护层,在圆弧底部设置10mm宽分缝条。做法如下图所示

风帽防水做法节点

风帽内移防水做法节点
7.4排汽孔
由于本工程采用正置式屋面,做防水施工时找坡层及找平层中的潮汽无法排尽,为避免后期由于潮气引起防水空鼓等现象,现在屋面设Φ50mmPPR排汽管,间距4m,由于找平层采用的干铺加气碎块,在铺加气块时按4m间距铺留排汽道。排汽管伸止结构板面,排汽管在找平层以下部分四周开Φ15mm圆孔,以便潮汽排出,为避免室外雨水等进入,管顶部做90°弯头,弯头应顺风方向放置。做法如下图所示:

7.5雨水口
屋面水落口采用成品,水落口与预留洞封闭应采用C20细混凝土,雨水口周围Φ500mm范围内找坡为5%,相应部位防水保护层减薄,周围Φ500mm范围处防水附加层,卷材应压入至雨水口下侧不小于50mm,做法见下图。


7.6双墙变形缝
各楼双墙变形缝处采用0.6厚镀锌薄钢板压顶,双墙中间设软质发泡聚乙烯条,并附加一层防水卷材。6号楼双墙女儿墙为1.4m,5号楼双墙处女儿墙0.6m,制作钢板压顶时应根据实际尺寸确定(尤其时有高低差处),搭接缝应顺风方向。 做法见下图。

7.7屋面门口
本工程屋面水平出入口,防水收口应压在混凝土踏步下,泛水部位增设防水附加层,防水保护层和面层均做Φ100mm圆弧,做法见下图(用于6号楼,5号楼按屋面图施工)。

7.8其他细部做法
(1)女儿墙外侧防水卷材高度以下螺栓打磨完成后打发泡胶,两端抹膨胀砂浆,最外侧刷两遍聚氨酯防水涂料刷。做法见下图:

(2)屋面墙体为砌体时,在屋面卷材防水以下部分采用C20混凝土浇筑。
(3)本工程过水洞处SBS卷材应伸入洞内不小于50mm,做完卷材后在过水洞内刷两遍聚氨酯防水涂料,隐蔽验收后做20mm厚DS砂浆保护层。
(4)出屋面管道四周应设防水附加层,防水高出屋面面层250mm,防水卷材收口处应用管箍箍紧后用密封膏封严,防水外侧做Φ200mm高250mm C20混凝土台(见下图)。

工程实例
(5)水落管下口设水簸箕,水落管下端弯头距地面或屋面150-200mm,水簸箕做法详见08BJ5-1,P23,节点(见下图)。

