你心中的豪宅应该长什么样呢?
按北京来说,亿元别墅就是豪华别墅的基本门槛,其他各种指标:地段、环境、景色、设计、建筑材料等等没有一个统一的定式。
我们一起走进亿元别墅俱乐部“北京庄园”,看一下这个号称“董事长为董事长设计”的别墅,究竟实力如何?
01、【项目详情】

【拿地时间】:2014年10月(历经5年对产品打磨)
【建筑风格】:为法式、意式
【建筑设计】:美国DAHLIN和WFA两家设计公司
【园林设计】:美国LII公司;
【室内设计】:法国的PYR和美国的BLD
【容积率值】:0.6
【占地面积】:17万㎡
【建筑面积】:10.78万㎡
【小区总户】:194栋
【交付标准】:满配精准交付
【户户泳池】:标准长25米的国标泳池
【供暖方式】:壁挂炉自采暖(地暖)
【房屋交付】:一组团交房时间为2020年10月
【物业公司】:待定
【物业管理】:18.8元/㎡/月
【产权车位】:4—8个/户
【销售价格】:8000万至1.7亿起
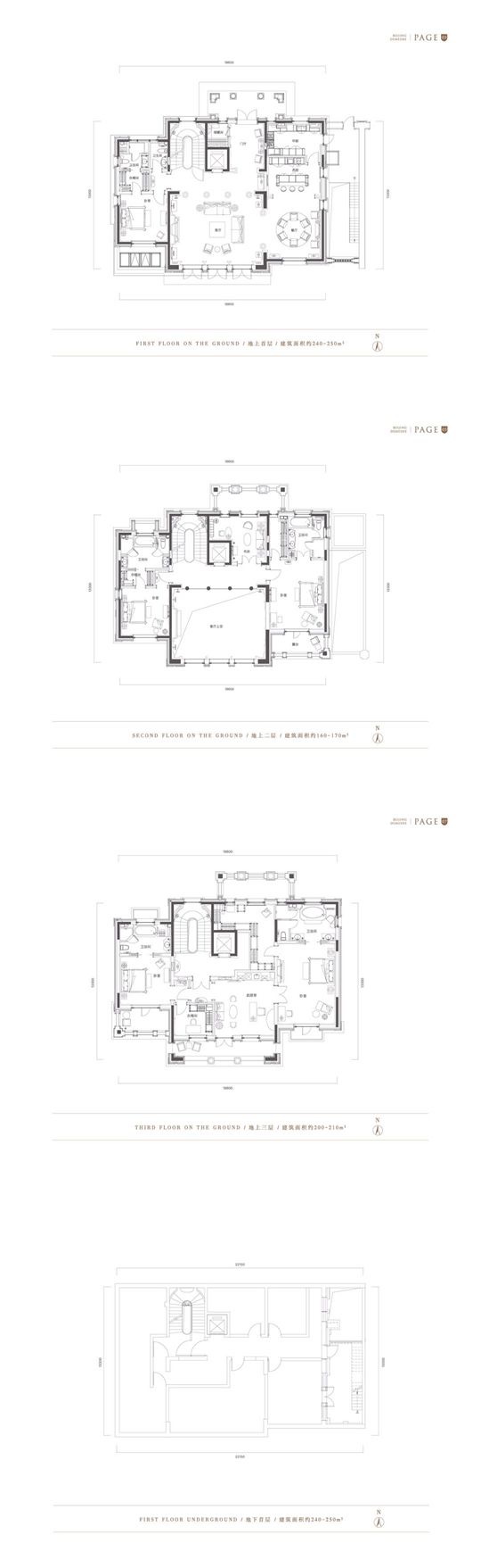
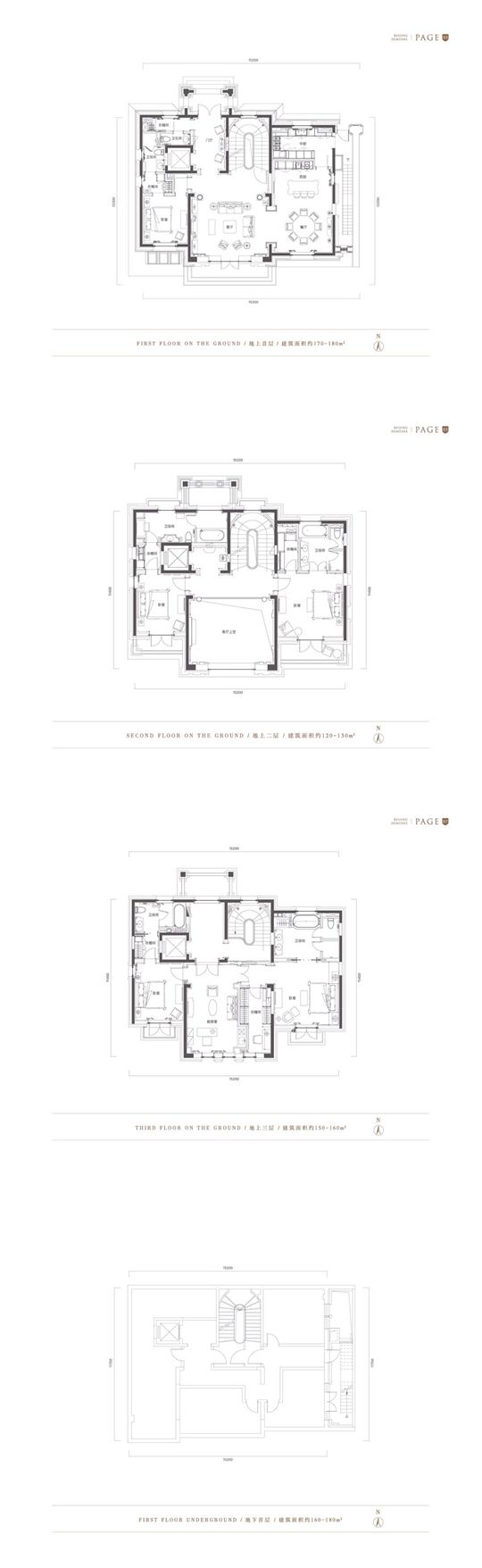
【花园面积】:300㎡-741㎡
【赠送面积】:阁楼以及地下空间均为赠送面积
【楼层布局】:5层(地上3层地下2层);意式户型无阁楼赠送;法式户型赠送阁楼
【楼层高度】:首层3.8米、地上二层3.5米、地上三层3.6米、阁楼2.75米(F1层3.6米、F2层4米)
【楼间距离】:17米-21米
【楼栋面宽】:A户型18.6米、 B户型15.2米、 C户型15.2米、D户型13.4米




02、【项目特色】

1、北京唯一0.6容积率的纯独栋精装别墅社区,很可能是北京最后一个全新独栋别墅。
2、董事长为董事长设计理念,200余个同质圈层客户,栋栋皆为楼王;
3、户型设计以短进深大面宽格局(14-18 ㎡)且能保证居室间间做到南北通透;
4、开创中国顶豪别墅“满配”精装时代,重新定义中国顶豪别墅价值标准;
5、每一栋别墅都是居所+会所的设计理念,地上三层为居住空间(动静分区),地下两层为娱乐休闲空间,每一栋房子均配置标准长 25 米的国标泳池,同时设:影音室、健身房、台球吧、雪茄吧、红酒吧,彰显业主尊贵身份;
6、庄园摒弃了以往别墅前二后三的花园设计,将花园回归到首层,提高了花园的使用率。原汁原味地还原了欧洲皇家园林景观,注重层次的丰富感。整体采用中轴对称的布局方式,营造出强烈的奢华感和仪式感,单套花园 300-741 ㎡;
03、【户型图】


04、【区位图】

北依燕山,临水为贵

北京庄园位于顺义区赵全营镇板西路与天承大街交汇处(京承高速第11出口往东1公里)
。眼前的燕山山脉蜿蜒曲折,宛若一条巨龙守卫着京师。而东边牤牛河、温榆河亦绕城流淌,最终造就这上风上水之地。
京畿要道,行宫福祉

北京庄园承袭天然的皇家“血统”,曾敕造600里御道上的首座帝王行宫——南石槽行宫。胸怀天下的康熙皇帝驰骋于600里京畿御道,凭借京城与承德两个政治决策中心,掌控着空前庞大的帝国版图。彼时,皇家遗址虽已不在,但是岁月从未遗忘这片藏风聚气之地。“天时”之选,“地利”之享,两者的稀世邂逅,终将成就值得历史篆刻的杰作。
05、【交通】
在交通上,3个红绿灯,直达中央别墅区;30分钟,抵达城市中心;
北京庄园毗邻京承高速,紧邻中央别墅区、首都机场空港经济区及未来科技城等多个产业集群,快速抵达望京繁华商圈。对于精装交付比例仅有5%的北京来说,大房子不多,好房子更少,能同时满足客户对产品和区域价值需求的亿级独栋更是少数。作为5%的其中之一,北京庄园基于理想和对别墅的深层思考,专为别墅阅历丰富者而生。

龙脉之北,紧邻中国最美高速之一京承高速11出口由北向南链接避暑山庄,APEC会议中心、北四环望京商务区、三元桥京密路升级完成后,将大幅改善城市东北方向交通环境,出行更为便利。

理由一、【黄金三法则】
北京庄园,以董事长20余年高端别墅置业、生活经验为积淀,提炼别墅空间规划的“黄金三法则”

理由二
全国唯一5间卧室,全部做到南北通透全配置套房
每间卧室套房都包含衣帽间、卫浴间、情景露台,部分主卧套房包含起居室、书房
“双主卧”的设计理念,在北京庄园的套房规格上得以体现。

理由三
全国唯一将25米国际泳联标准短道泳池做进别墅室内
北京庄园的功能空间,均按专业标准进行设计,包括整层泳池会所和按专业酒庄、影院标准打造私家酒窖与私家影厅。

理由四
告别前二后三把庭院全部还给地上
北京庄园,将庭院还给地上,成为自客厅延伸而出的户外社交场格局规整,方便使用和保养。

理由五
专业豪宅装修2 0 年
董事长20余年豪宅装修经验和裕地产北京精装交付面积第一
百人团队,跋涉全球,打造100对1的服务最大化保护客户时间和精力价值
理由六
一座珍藏世界文明的别墅装饰博物馆
数十个世界顶级品牌,十余个百年以上欧洲手工家私、饰品世家

理由七
如同别墅腑脏的机电间系统
北京庄园,尤其注重佣人生活区、机电间等支持空间的尺度
为各个机电系统规划各自独立的装载空间,并预留空间,便于日后设备的升级和增加选择美国ECOWATER、美国HONEYWELL等世界顶级品牌旗下顶级产品
以保证别墅的有序运转和居者健康
理由八
重现法兰西鼎盛时期的上层社会生活盛景
浓烈的凡尔赛风格、极致考究的装潢与的花艺陈设踏入北京庄园,如同穿越至18世纪的法国宫廷
在此之前,仅在巴黎宫殿级顶奢酒店-乔治五世四季酒店,能够体验
理由九
秉承“内外一致”的精装标准
按室内精装标准,装修地下车库、室外庭院和公共区域重写中国别墅史全成品精装交付的全新定义

理由十
中国首例 将意大利小料石,用于别墅社区内路面布设
3种规格,手工打磨,与米兰大教堂百年广场同矿开采
理由十一
中国首例大面积应用鱼肚白,装饰别墅室内
意大利卡拉拉地区限量开采,此前,仅在迪拜皇宫酒店等顶级酒店与国宾级接待场所,装饰性使用

理由十二
中国首例 用奢侈品级马赛克壁画装饰车库下行通道
以艺术大师梵高名画《阳光下的橄榄树》为蓝本,进行再创作
10年经验工匠,每人每天仅能拼贴1㎡

中国目前最好的顶豪别墅,没有之一

谨献别墅阅历丰富的亿级塔尖人士