引下线: 连接接闪器与接地装置的金属导体称为引下线。
雷击时引下线上有很大的雷电流流过,会对附近接地的设备、金属管道、电源线等产生反击或旁侧闪击。为了减少和避免这种反击,现代建筑利用建筑物的柱筋作避雷引下线,经过实践证明这种方法不但可行,而且比专门引下线有更多的优点,因为柱钢筋与木梁、楼板的钢筋,都是连接在一起的和接地网络形成一个整体的"法拉第"笼,均处于等电位状态。雷电流会很快被分散掉,可以避免发击和旁侧闪击的现象发生。
关于引下线,如下规定:
1、引下线一般采用圆钢或扁钢,其尺寸不小于下列数值;
2、 圆钢直径为 8mm;扁钢截面为 48mm2;扁钢厚度为 4mm;
3、利用主筋(直径不少于Ф16mm)作引下线时,按设计要求找出全部主筋位置,用油漆作好标记,按设计位置标高做好焊好测试点,随钢筋逐层串接至顶层,焊接出一定长度的引下线至接闪器,搭接长度不应小于6D,做完后请有关人员进行隐检,做好隐检记录;
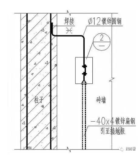
4、装在烟囱上的引下线其尺寸不小于:圆钢直径φ12mm;扁钢厚度为4mm,截面积为100 mm2;
5、所有引下线要镀锌或涂漆,在腐蚀性较强场所,还应加大截面积或采取其他防腐措施;
6、引下线的固定支撑点间隔不得大于1.5-2m,引下线的敷设应保持一定的松紧度,不能拉的太紧,以免热胀冷缩而拉断;
7、扁钢与扁钢搭接为扁钢宽度的2倍,不少于三面施焊;
8、圆钢与圆钢搭接为圆钢直径的6倍,双面施焊;
9、圆钢与扁钢搭接为圆钢直径的6倍,双面施焊;
为了减少引下线的电感量,引下线应沿最短接地路径敷设。对于建筑艺术要求较高的建筑物,引下线可采用暗敷设,但截面要加大。 由于建筑物的造型不同,不能做直线引下时,应注意弯曲开口处两点间的直线距离不得等于或小于弯曲部分线段的实际长度的0.1倍,一般弯曲处不用锐角尽量避免用直角。
引下线应装在人员不易碰到的隐蔽地点,以防接触电压的危害。
距地面2M以内的引下线,应有良好的保护,用瓷管或耐阳光的塑料管套住,避免人或动物触碰。
为便于检查避雷设施连接导体的导电情况和接地体的散流电阻,要在每根引下线上做断接卡子,断接卡子"规范"规定距地面最高为1.8m。暗装引下线也应在相应的地方做断接卡子接线盒。(利用混凝土柱钢筋做引下线时,不必做断接卡子,但必须引出测量线端子外露墙面)断接卡子必须镀锌,并保护接触面严密,接触面不得小于10 mm2卡接母丝直径必须大于8 mm,卡接母丝上应套有弹簧垫圈。


防雷引下线断接卡子
断接卡子作用是可将避雷引下线与接地体断开,以便有利于测量接地体的接地电阻值
欢迎大家加入我们的建筑电气设计交流群:310536733,与更多同行人士交流学习
点击~阅读原文~有视频的精彩讲解哦。