农村建别墅的话,还是二层最实用,外观大方,房间够住,造价不会太贵,普通家庭也能负担得起,不会有太大的压力。
今天就分享10套二层农村自建房,每套图纸都有详细的尺寸,赶紧来看吧。

户型编号:ZJ—756
占地尺寸:14m*9m
占地面积:132.67㎡
建筑面积:266.59㎡
总 高 度:6.9m


户型二

户型编号:ZJ—764
占地尺寸:12m*14.1m
占地面积:134.75㎡
建筑面积:312.44㎡
总 高 度:9.7m


户型三

户型编号:ZJ—772
占地尺寸:10.6m*11m
占地面积:106.97㎡
建筑面积:200.68㎡
总 高 度:9m


户型四

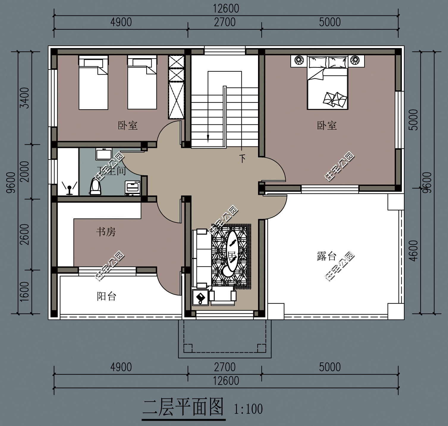
户型编号:ZJ-779
占地尺寸:12.6m*9.6m
占地面积:133.3㎡
建筑面积:241.12㎡
总 高 度:9.1m


户型五

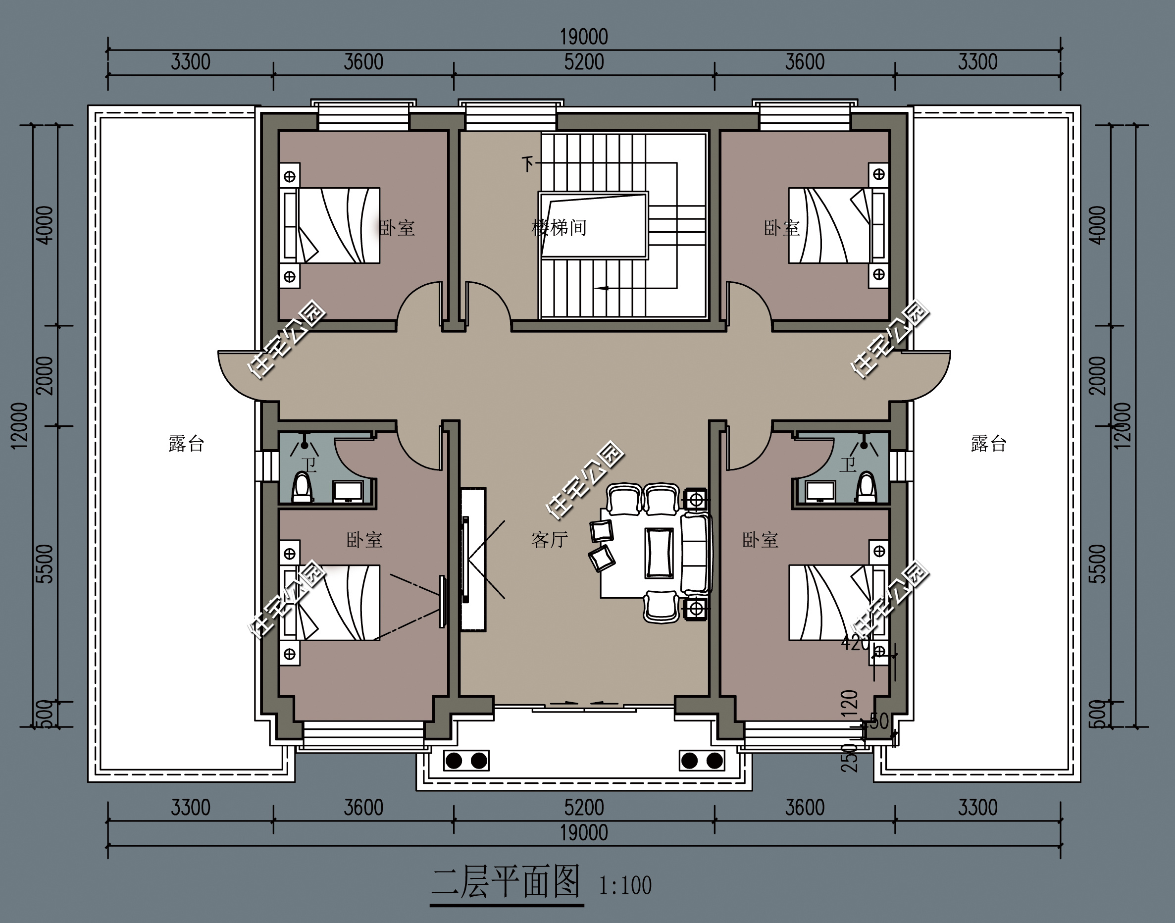
户型编号:ZJ-784
占地尺寸:19m*12m
占地面积:250.29㎡
建筑面积:419.41㎡
总 高 度:11m


户型六

户型编号:ZJ-785
占地尺寸:11.2m*14m
占地面积:150.79㎡
建筑面积:292.83㎡
总 高 度:10.4m


户型七

户型编号:ZJ-792
占地尺寸:14m*9m
占地面积:116.63㎡
建筑面积:217.56㎡
总 高 度:8m


户型八

户型编号:ZJ-794
占地尺寸:15m*12.6m
占地面积:169.66㎡
建筑面积:303.01㎡
总 高 度:9m


户型九

户型编号:ZJ-802
占地尺寸:20.5m*11.1m
占地面积:166.64㎡
建筑面积:330.05㎡
总 高 度:9.8m


户型十

户型编号:ZJ-823
占地尺寸:19m*9m
占地面积:192.5㎡
建筑面积:378.02㎡
总 高 度:9.8m


关注本号,更多农村自建房户型图欣赏,还有建房小知识,一手掌握。