据百房资讯小编了解,近日东丽区和河北区有新项目开启了新规划,最主要的是配套齐全,生活便利。相信这是众多置业人选择的首要条件。那么东丽和河北两个区域将会有什么样的"上新"呢?跟随百房资讯一起来了解一下吧,看看你喜欢哪个区域的规划呢?
此次两个区域项目的规划,可以说是配套非常齐全,给人们的生活带来极大的便利。而且不仅配套丰富,对于住宅的选择也非常多,本次两个项目规划总用地面积为81373.87㎡,约590套房源,可以说是别墅、洋房和高层应有尽有,对于你来说,会喜欢哪款呢?
东丽区华侨城地产项目A1地块住宅规划

图片来源于网络
据百房资讯小编了解,该项目规划总用地面积为54755.33㎡,容积率≤0.67,建筑密度≤19.70,绿地率≥34.60,绿地面积≥18945.34㎡。
从此规划数据我们可以看出,居住户数将会达到240,居住人口将会达到672人,并且从规划设计图我们也可以看出,该项目整体将会 盖建 49栋,其中包含别墅、洋房以及高层等产品。相信总有一款是你喜欢的。

图片来源于网络
东丽区华侨城地产项目A1地块配建规划

图片来源于网络
再来看看该项目的配套建设,也是非常丰富,足够给居住在此的人们提供便利。除了正常的居委会、社区警务室、箱式变电站、燃气调压站、供热站以及电信设备间和有线电视设备间等公共设施配套外,最便民的配套 属 :菜市场、居民健身场地的配套。

图片来源于网络
不仅如此,从规划项目图可以看见,该项目中还有幼儿园的配建,但这是A2地块的规划,但也是相当便民了,是不是呢?
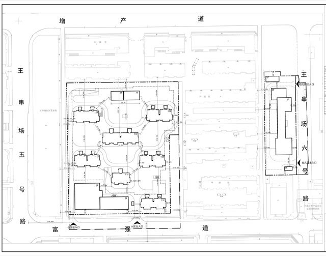
河北区王串场24段项目地块规划

图片来源于网络
该项目是天津市内项目规划,位于河北区王串场五号路与富强道交口。由于是市内规划,想必也是因为土地的原因,其规划体量不是很大。
其项目的容积率1.7,建筑密度≤30,绿地率≤35.该项目产品规划为小高层,都是11层到顶并且只有7栋楼,可以说是非常稀少。

图片来源于网络
但规划有一点比较好,就是靠近王串厂六号路一侧,规划有一所幼儿园,相信在此居住的家庭,送孩子上下学还是比较方便的。
对于以上两个区域的规划,你更喜欢哪个区域呢?其实每个区域都有它自己的优势,就像是东丽区,近年的发展可以说是突飞猛进,算是四郊的佼佼者,相信以后的发展会更好。而河北区,自不必说。毕竟是市内的项目,从地段、交通以及配套上来说,都是比较有优势的,毕竟属于成熟的区域了,如果是你,你会选择哪里置业呢?