北京,创业者心驰神往的一线城市
优惠政策吸引各路英才
有人有钱有项目,缺少好的办公场地?
公司设在CBD,租金太贵?
员工上班不方便?

公司建在开发区,地点太偏?没有地铁?
吃饭购物不满意?

那你肯定没有了解过丰台科技园!

毗邻地铁,紧靠万达,政策支持……
没错!我们贝壳菁汇创新生态圈就在这里

1600平方米的办公区等你入驻
精美装修、免费桌椅、茶室、空调、冰箱、隔断、前台一应俱全!

我们有三层办公区出租,话不多说,请看图


贝壳菁汇创新生态圈
盈坤世纪C座6层602室
面积:329m2
价格:5.3元/m2 /月
窗户朝向:西
最短租期:两年
交通:丰台科技园地铁站700米
空间:前台+独立办公室+会议室+办公桌椅+中央空调+冰箱+地毯

办公区

走廊及前台

会议室

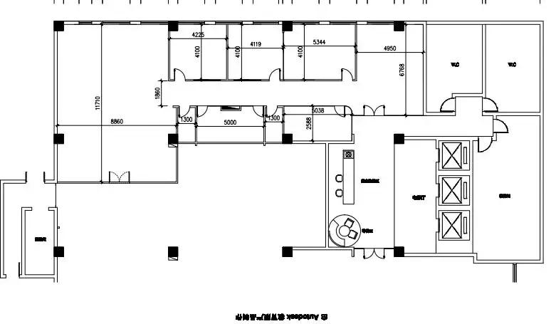
盈坤世纪C座12楼1202
面积:385m2
价格:5.2元/m2/月
窗户朝向:西
最短租期:两年
交通:丰台科技园地铁站700米
空间:共用前台+独立办公室+会议室+办公桌椅+中央空调

办公区平面图

办公室

会议室

走廊

我们能为你提供的服务
基础服务:工商注册、财税代理、法务咨询、公共会议室、路演厅提供
增值服务:人才招聘、知识产权服务、金融服务、资质申请、政策申报、市场拓展、媒体推广
活动培训:路演沙龙、讲座培训、项目推介、创新大赛、行业大咖分享会
☆☆☆☆☆☆☆☆☆☆☆☆☆☆☆☆☆☆☆☆☆☆☆☆☆☆☆☆☆☆☆☆☆☆☆☆☆
贝壳菁汇以空间为载体、以孵化为核心、以产业为基础、以金融为手段,为城市打造现代化特色的产业孵化器、产业园区、产业小镇、美丽乡村,帮助城市更新、产业升级,助推城市新旧动能转化,打造城市产业创新生态圈。
联系地址:北京丰台科技园盈坤世纪C座11层
联系电话:杨经理13001256950
官方网址:http://www.beikework.com/
微信公众平台:beikjinghui
☆☆☆☆☆☆☆☆☆☆☆☆☆☆☆☆☆☆☆☆☆☆☆☆☆☆☆☆☆☆☆☆☆☆☆☆☆
